查看完整案例


收藏

下载

翻译
A Unidade Industrial Bradco, localiza-se na zona industrial de Felgueiras, concelho de Castelo de Paiva.
A empresa encontra a sua génese na área da marroquinaria, contudo com o decorrer dos anos também alargou a sua atividade para braceletes e na área da marroquinaria: cintos, bolsas, pastas, porta-moedas, carteiras, sapatos, etc.
Atualmente trata-se de uma empresa notória por também trabalhar com marcas de renome.
Pretendeu-se com este projeto, sobretudo o aumento de produção e do número de funcionários, estimulando o emprego e economia da região. Tornando-se, desta forma uma Unidade Industrial mais autónoma e com total liberdade de crescimento futuro.
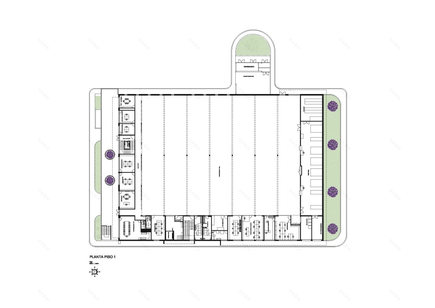
O edifício caracteriza-se por 2 pisos, tendo estes, na sua globalidade características diferentes.
Resume-se a uma forma pura, retangular em que “grosso modo” no centro se desenvolve toda a zona de produção e em três dos seus lados (norte, nascente e sul) as salas e gabinetes e outros espaços necessários ao seu correto funcionamento.
Em toda a zona da produção destaca-se a sua cobertura (dente de serra), provocando tramos de luz natural, constantes ao longo do dia de forma difusa sendo que a sua orientação é norte.
As salas da administração, orientadas a sul foram projetadas para o lado mais privilegiado da Unidade Industrial onde se concentra toda a massa paisagística que melhor caracteriza este terreno e território.
Por ser a posição mais privilegiada a nível paisagístico optou-se pela projeção de uma varanda em todo este lado de forma quer a privilegiar as salas acima referidas como também a proporcionar o seu usufruto aos clientes que ali façam uma visita e queiram ter um pequeno tempo de lazer/estar.
Ainda referindo a importância da varanda no edifício e em todo o cenário paisagístico que a envolve, tentou-se como que um “prolongamento da paisagem” fazer dois rasgos circulares na laje da mesma de forma a que a vegetação do piso de baixo se estendesse até cima. Há também uma ligação da mesma através de uma escadaria em pedra até ao piso de baixo.
O piso da cave é o piso da entrada principal no edifício. Coabita com dois espaços fundamentais: o hall de entrada e uma das salas de reuniões.
Ao contrário do piso de cima que ocupa toda a forma da implantação (retângulo), este ocupa apenas parte dele essencialmente por questões morfológicas. A nível solar coadjuva com o lado sul, nascente e poente.
A varanda também tem um papel preponderante no piso da entrada. Funciona como uma “pala” para este espaço. Um espaço de estar, de contemplação da paisagem, de distração, onde permanece um banco maciço em pedra, como que de um marco da paisagem se tratasse. Em torno do mesmo, uma zona verde pontuada por dois ciprestes que se elevam através de dois rasgos circulares comunicando com a varanda e ao mesmo tempo presenteando a mesma com mais dinamismo e diferentes tipos de luz.
Como pedido, desde o início pelo cliente, não se quis vincular a imagem da Unidade Industrial a um mero “armazém”, mas sim um marco arquitetónico que representasse a marca da melhor forma possível no concelho.
No alçado voltado a norte, sendo que o mesmo não tem qualquer tipo de abertura e que a entrada principal do edifício se faz pelo lado oposto (sul), optou-se pelo um alçado mais dinâmico e mais representativo da marca “BRADCO”.
Assim sendo funciona como que uma vitrine para quem ali passar. Recorreu-se também à pedra característica da região (granito) para revestir alguns troços de fachadas.
客服
消息
收藏
下载
最近























