查看完整案例


收藏

下载

翻译
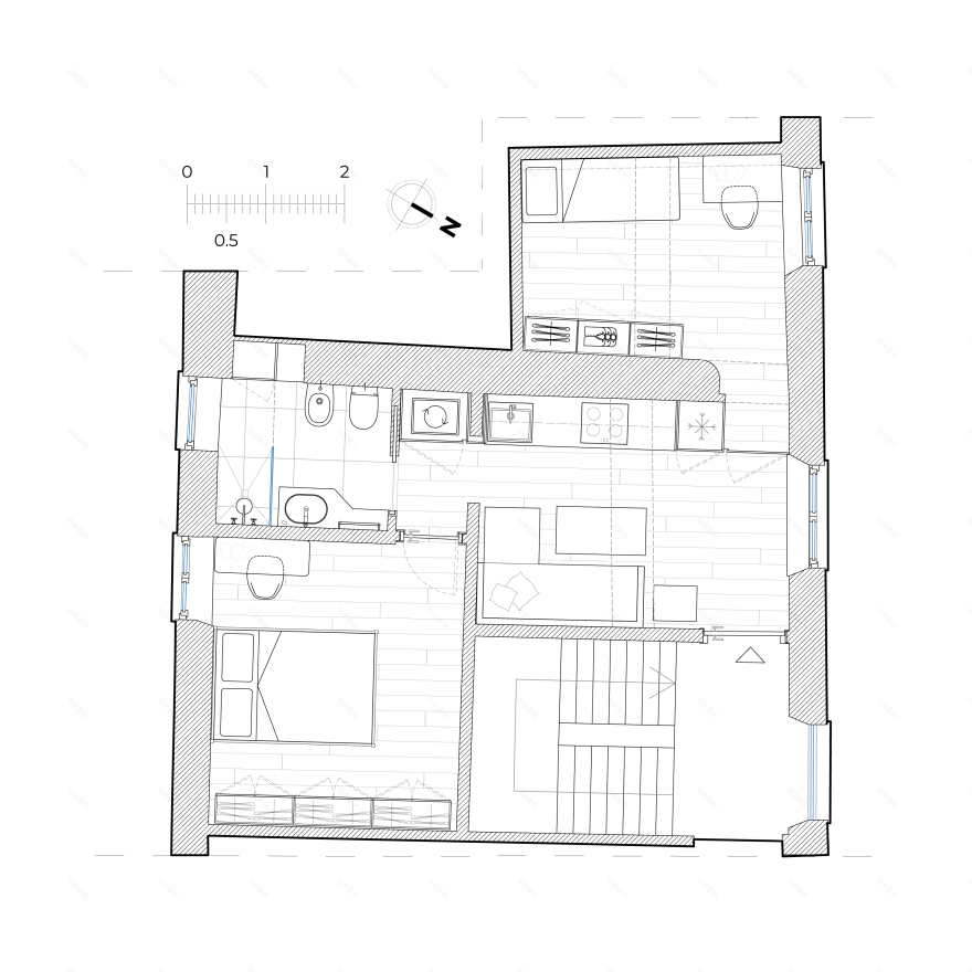
Questo piccolo appartamento, sito in uno storico borgo genovese, si trova appena fuori dal centro storico. Un vero e proprio nucleo urbano, con i suoi servizi, la sua gente, la sua identità, incastonato in una città metropolitana. Allo stesso modo questa abitazione raccoglie tutte le sue funzioni in uno spazio piccolo ma confortevole. L’ottimizzazione funzionale e spaziale sono state quindi le parole chiave che hanno guidato la fase di progettazione. Ogni angolo è stato sfruttato, riducendo la distribuzione al minimo. L’ingresso ospita sia la cucina sia il soggiorno e un’importante parete attrezzata caratterizza lo spazio attraversandolo in tutta la sua larghezza. La parete racchiude in sè una cucina funzionale, una piccola dispensa/lavanderia e un’anta a scomparsa che, sempre inserita nei moduli, cela un passaggio che accompagna alla prima camera da letto. La seconda camera invece rimane accessibile dal disimpegno.
Il bagno, è caratterizzato da toni caldi e luminosi per ovviare a una ridotta illuminazione naturale. Le pareti ed il soffitto color petrolio donano eleganza e carattere.
Le travi in legno (alberi di navi dismessi ed utilizzati nel campo delle costruzioni. Nulla temprava il legno come il salino!) sono state riportate a vista e sfruttate come distribuzione dell’impianto di illuminazione.
客服
消息
收藏
下载
最近















