查看完整案例

收藏

下载

翻译
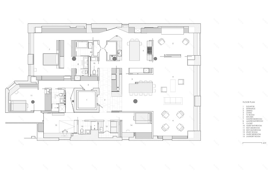
Located in Manhattan’s Upper West Side, this renovation combined two apartments to create a tranquil escape from the city for a busy family with two young kids. Spaces feel large and open, and circulation is designed to offer multiple connections between spaces, preserving a loft-like atmosphere. The architectural composition and finishes are inherently beautiful, but also serve as a rich backdrop for the owners’ artwork and furnishings; elements of the owners’ Korean heritage were also incorporated into the design.
The apartment is divided into three zones: communal living spaces, a generous master suite, and a children’s suite. Privacy is afforded through custom, oversized aluminum and glass pocket doors, which allow each zone to be separated from one another, or the entire apartment can be continuously connected, when desired. The children's suite includes two bedrooms, two bathrooms, and a separate play space, making it easy for the adults to entertain while the children play or sleep.
Custom millwork and built-in furniture enhance the organized layout while providing a discreet means of maximizing storage and eliminating clutter. Hallways are lined with full height cabinets, and bedrooms include built-in wardrobes. Window benches run the length of the living room and provide storage. A custom walnut sofa, dining table, and bookshelves are incorporated into the living spaces; kids’ bedrooms are outfitted with built-in desks and bunks; the study doubles as a guest room with a Murphy bed; and the master includes a built-in walnut bed with integral nightstands. In fact, the only elements that were not custom designed and built into the architecture are the sofas and chairs.
During demolition, a number of existing immovable mechanical and plumbing elements were discovered, creating opportunities for the architecture to respond to and embrace these conditions. The custom walnut dining table is built around an existing gas pipe; the vertical post seems to carve a slot for a light cove at the ceiling. In the children’s suite, a black steel-clad hallway angles and bends in a playful configuration to cleverly conceal an existing plumbing riser. Existing structural columns – refinished with a smooth concrete texture – float within large spaces, becoming purposeful elements within a cohesive composition.
The architecture also introduces instances of fun and whimsy: multiple secret doors were included, such as a cabinet that pivots to reveal a connection between the parents’ master suite and the children’s bedroom zone. A black steel-clad door panel nests into the surrounding black steel-clad walls, disguising its function to separate the study.
High-tech features are incorporated into a whole-house integrated control system, which automatically manages predefined settings. Depending on the season, time of day or activity of the occupants, the apartment can be easily transformed through the manipulation of lighting, music, motorized window shades, and temperature control; all of which can also be adjusted remotely through mobile apps on occasions where the family is traveling.
The cumulative effect of design decisions by the architects and clients creates a harmonious symphony of architectural design, epitomizing a modern residence.
客服
消息
收藏
下载
最近























