查看完整案例


收藏

下载

翻译
Casa W_G si trova a Montecosaro, a ridosso del centro storico, appena fuori le mura cittadine. Il lotto su cui sorge è un ritaglio di verde all’interno dell’edificato, ricco di ulivi e piante da frutto. Il nuovo edificio si inserisce in questo spazio in modo discreto, mantenendo integra la natura del luogo. Il giardino circonda interamente l’abitazione isolandola dall’intorno molto edificato.
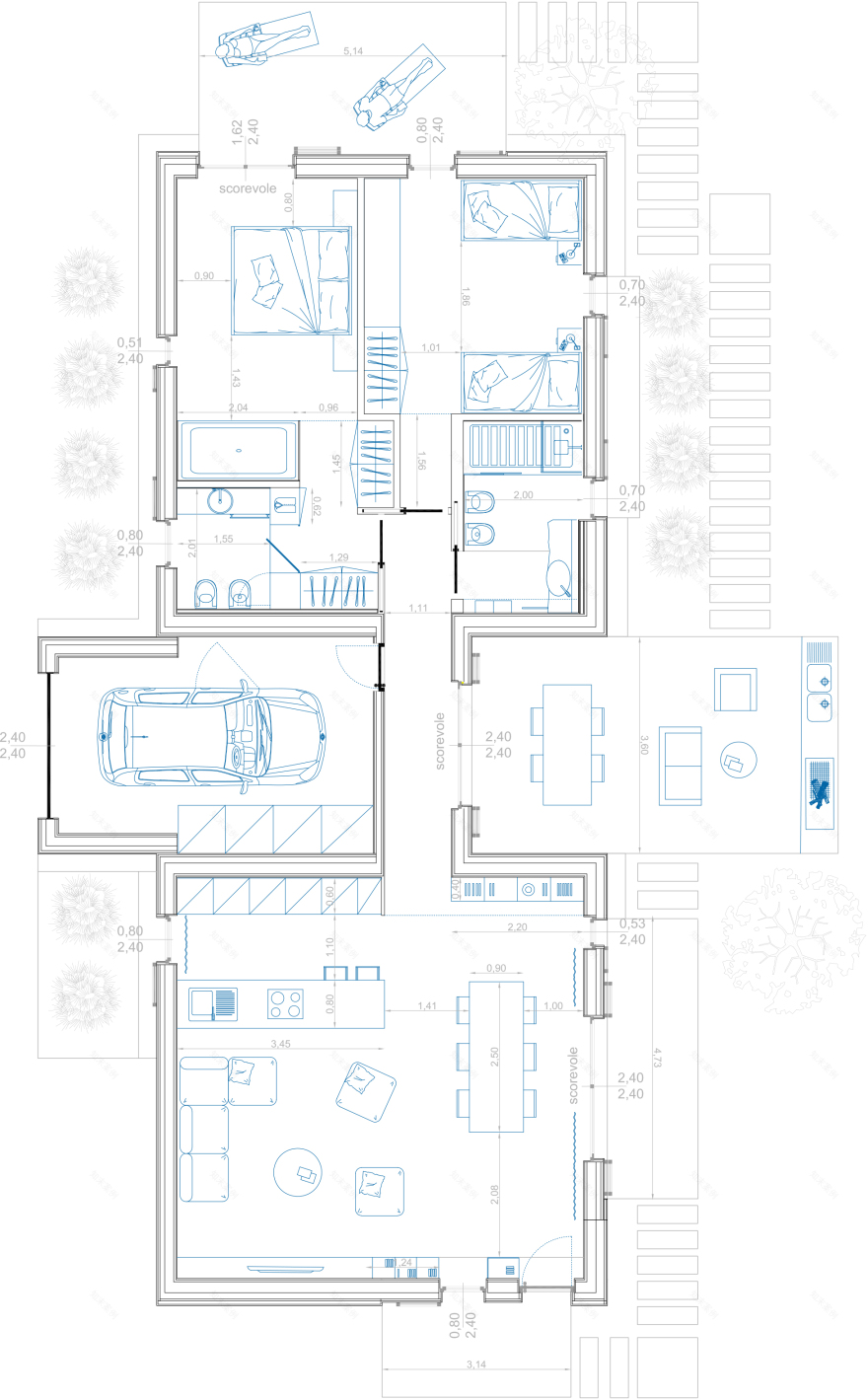
La casa si sviluppa su un unico piano e si compone di tre volumi ben riconoscibili dall’esterno; il blocco centrale del garage di color chiaro divide la zona giorno che affaccia sula strada dalla zona notte più intima che si rivolge dal lato opposto al centro storico, verso il giardino. Lo spazio centrale tra zona notte e zona giorno ospita un patio, una piccola stanza a cielo aperto per godere del giardino circostante.
Il lato sud est risulta essere maggiormente aperto sulla corte così da sfruttare al massimo la luce del sole. Delle pensiline in legno schermano i raggi del sole nelle ore più calde e sono predisposte per ospitare a scomparsa gli elementi per illuminazione e i binari per schermature solari scorrevoli.
L’interno dell’abitazione guadagna un’altezza considerevole al colmo del tetto in legno così da rendere gli spazi ampi ed ariosi. Le scelte di arredo rispecchiano il carattere della committente; una moltitudine di oggetti pregiati di differenti epoche arredano gli spazi in modo inaspettato, contrapponendosi alla sobrietà degli esterni. Solo varcando la porta d’ingresso si svela il mondo colorato e giocoso che caratterizza questi spazi.
La struttura portante è costituita dal sistema ISOSPAN, dei blocchi cassero in legno-cemento prefabbricati che permettono una grande velocità di realizzazione ed un’ottima prestazione dell’involucro edilizio. La copertura è un tetto in legno ventilato con gronda a scomparsa; il rivestimento in coppi integra l’edificio nel tessuto urbano esistente.
A livello impiantistico l’edificio risulta molto efficiente: sfrutta l’energia elettrica per il suo intero funzionamento; è stato di fondamentale importanza l’utilizzo dei pannelli fotovoltaici e solare termici. Il riscaldamento è a pavimento e sfrutta il preriscaldamento dell’acqua dei pannelli solari termici mentre il raffrescamento è ad aria con pompa di calore.
客服
消息
收藏
下载
最近



























