查看完整案例


收藏

下载

翻译
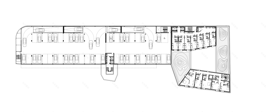
Situé en tête de l’opération de renouvellement urbain du quartier de Villejean, sur un axe majeur d’entrée de ville, le projet propose une architecture ancrée dans son époque : nous l'avons voulue claire, sobre, orientée et connectée. Si les bâtiments hauts ne constituent pas réellement une nouveauté dans ce quartier marqué par les années 1960-1970, la programmation du nouvel ensemble se distingue par une mixité inhabituelle (logements, activités, parking silo, maisons).
Au-delà de l’effet signal inhérent à la hauteur, l’enjeu architectural est celui de la cohabitation de fonctions variées, écartelées entre monumentalité et intimité. Compte tenu de ses proportions (haut de 50 mètres pour une longueur de presque 115 mètres) l’ensemble prend la stature d’un véritable monument métropolitain : si son appréciation lointaine participe à lire la ville, c’est surtout par la qualité de son ancrage, par l’animation et les transparences de son socle, par la lisibilité de ses accès qu’il apporte une nouvelle consistance à l’espace public.
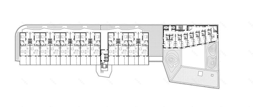
Notre proposition se lit à différentes échelles : à l’échelle de la métropole, la blancheur sculpturale de la tour la rattache aux grands objets de la ville. A l’échelle du quartier apparait la cohérence d’un ensemble contenu dans un thème de façade commun à tous les programmes, à celle du piéton enfin on perçoit le registre domestique des habitations (cadres de fenêtres, toitures en pentes, serres des maisons...)
Tous les appartements sont exposés plein sud, et orientés vers la ville historique. Composante principale du programme, les appartements étudiants ont été conçus autour de l’usage. Leur large fenêtre s'ouvre à l'ensoleillement ainsi qu’aux vues sur la ville historique. Dans la chambre, ces fenêtres projetées sont aménagées comme des alcôves, des espaces propices à la contemplation.
客服
消息
收藏
下载
最近

































