查看完整案例


收藏

下载

翻译
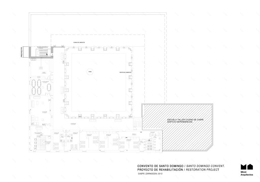
El edificio construido entre 1570 y 1771 por los padres Dominicos sufre su destrucción con 1809 en la guerra de la Independencia, suponiendo la desamortización su abandono y transformación posterior en hospital a mitad del siglo XIX y el derribo en 1970 de la fachada del convento con la adecuación del recinto para hospital mental, siendo por fin abandonado tres años más tarde por la comunidad de Santa Ana cerrando la Residencia y la capilla.
La obra de rehabilitación del Convento de Santo Domingo se realiza mediante una Escuela Taller y solo dispone de subvenciones anuales pequeñas para compra de materiales y sueldo del Jefe de obra, Oficial de 1ª que dirige y enseña las labores de albañileria a los aprendices,(alumnos) contando tambien con taller de Carpintería en la propia escuela dirigida por un oficial y ejecutadas las tareas por los aprendices(alumnos) .Los trabajos de instalaciones se contratan a empresas esopecializadas del lugar aportando las ayudas de la Escuela. Se termina la obra en 2012 con inauguracion de los príncipes.
Actualmente el edificio ampliado lo ocupa la Escuela Taller, proponiendo su labor como vehículo para la recuperación de este edificio emblemático de la historia de Caspe.
客服
消息
收藏
下载
最近
































