查看完整案例


收藏

下载

翻译
Il restauro della Basilica “Santa Maria della Vittoria “ a San Vito dei Normanni.
Al servizio del sacro
--
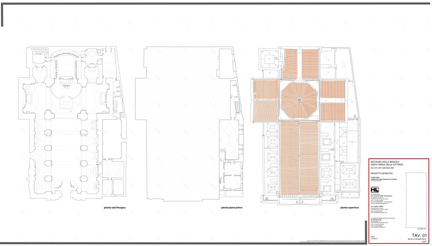
Una cattedrale simbolo di una vittoria, un patrimonio artistico che racconta la storia del nostro paese, un bene da tutelare, un edificio da conservare per la memoria della comunità e per tutto il territorio: il sistema AERcoppo® è stato utilizzato per il recupero della fragile copertura della Basilica di Santa Maria della Vittoria a San Vito dei Normanni.
Deve il suo nome alla vittoria nella battaglia di Lepanto e proprio nel 1571 venne interessata dal primo ampliamento, ma nel corso degli anni saranno molti gli interventi che aggiungeranno valore alla storia di questo luogo sacro. La Basilica di Santa Maria della Vittoria a San Vito dei Normanni in provincia di Brindisi racconta con la sua presenza, come avviene spesso in questi casi, la storia e le vicende del popolo brindisino. Una storia fatta di momenti difficili ma che ci ha lasciato una serie di capolavori disseminati lungo tutto il territorio pugliese che costituiscono oggi un patrimonio culturale e artistico di inestimabile valore. Questa basilica ne è un esempio eccellente con il suo carico di significati, con lo stratificarsi di epoche e con le opere straordinarie che custodisce al suo interno. Proprio per questo rappresenta oggi un bene da tutelare, un involucro fragile da preservare, un organismo edilizio che ha bisogno di investimenti, attenzioni e cure. Dalla sua realizzazione nel XVI secolo sono stati molti gli interventi che si sono succeduti. Come nel 1670 con il rifacimento del pavimento e tetto del coro e l’edificazione della nuova Sacrestia. Importanti lavori sulle murature e coperture sono stati condotti nel 1777, mentre anche all’interno venivano realizzati con marmi policromi l’altare maggiore e la balaustra. L’intervento che però ha radicalmente il volto della Basilica è quello condotto sulla facciata principale o meglio l’applicazione della nuova facciata settecentesca sul prospetto preesistente. Una nuova matrice compositiva che prende ispirazione da motivi architettonici dei grandi architetti napoletani: portale d’ingresso a “conchiglia” gioco delle bucature di forma rettangolare, lesene che danno ritmo alla proiezione dell’edificio verso l’alto supportato dal gioco delle rientranze dell’intera tessitura muraria. Altri interventi si susseguiranno nell’ottocento e anche agli inizi del novecento, alcuni dei quali molto contestati per una modifica radicale dell’apparato decorativo. Dopo l’ampliamento funzionale del 1950, negli anni ’80 e ’90 è stato restaurato il campanile così come sono stati “ripuliti” i quattro prospetti dell’edificio, mentre la copertura è stata interessata da soli interventi di manutenzione. Negli ultimi anni, purtroppo, i numerosi fenomeni di distacco dell’intonaco dalla cupola, dalla volta e dal transetto e le lesioni sulle murature, hanno testimoniato una sofferenza statica che ha richiesto interventi più consistenti.
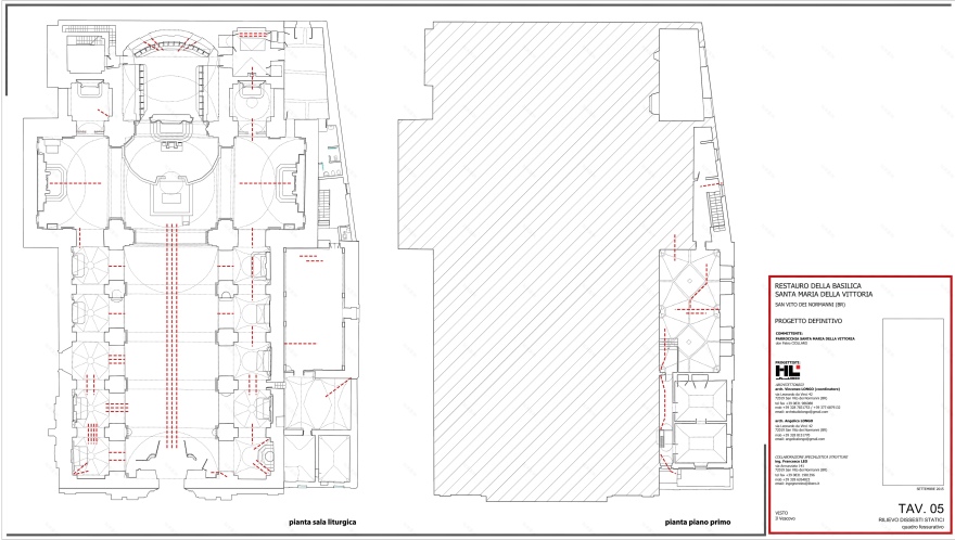
Stato di fatto e intervento sulla copertura
I lavori avviati nel Settembre del 2016 avevano l’obiettivo di consolidare la struttura di copertura e risanare l’intero pacchetto di cupola, navata centrale e transetto, anche per quanto riguardava le partizioni murarie. Le indagini condotte avevano per altro segnalato delle lesioni importanti all’altezza dell’innesto tra facciata principale e la copertura stessa, dovute probabilmente ai lavori sulla nuova facciata settecentesca che di fatto era stata incollata a quella precedente. Dopo aver rimosso la copertura è stato possibile constatare come in realtà le lesioni fossero dei veri e propri distacchi, che raggiungevano in alcuni punti anche i 30 cm di lunghezza.
Per quanto riguarda in particolare la copertura il manto superficiale era in gran parte danneggiato, molti dei coppi erano rotti e l’intero pacchetto di copertura versava in cattivo stato per il decadimento delle prestazioni dei materiali. Il Progettista e Direttore dei lavori, l’Arch. Vincenzo Longo, ci racconta le prime fasi dell’iter progettuale: “Dopo molti anni e superata la cronica difficoltà dell’assenza di fondi, siamo riusciti a intervenire sulla Basilica di San Vito dei Normanni. Abbiamo condotto indagini approfondite sullo stato delle pareti murarie e della copertura prima di sviluppare un progetto di riqualificazione e risanamento complessivo che potesse migliorare le prestazioni dell’involucro e mettere in sicurezza la struttura”. L’obiettivo principale del progetto è sottolineato dall’Ing. Francesco Leo, autore del progetto strutturale: “L’intervento aveva come linea guida quella di un complessivo e sostanziale alleggerimento della struttura di copertura, oltre alla ricerca di una ventilazione naturale che favorisse la conservazione delle splendide opere e gli affreschi sottostanti”. Prima di tutto si è intervenuto però sulle lesioni riscontrate: “Le lesioni erano in parte già state trattate da interventi di restauro precedenti con alterni risultati. Abbiamo utilizzato una malta cementizia a base di calce idraulica - continua Leo – che ci sembrava la soluzione migliore per le caratteristiche dell’edificio. Abbiamo evitato l’impiego di resine per l’alta temperatura che questi punti potevano raggiungere e per cercare di utilizzare materiali il più possibile naturali e vicini a quelli impiegati in origine per la realizzazione dell’edificio”. Una volta consolidata la struttura si è poi passati al ripristino della copertura, sempre nell’ottica della massima leggerezza: “Dopo aver rimosso lo strato compatto di calce naturale e inerti esistente, abbiamo ripristinato lo strato utilizzando argilla espansa. Sul massetto alleggerito abbiamo poi steso una guaina cementizia Kerakoll con funzione impermeabilizzante, ma in grado di assicurare allo stesso tempo la massima traspirabilità”. Si è poi passati al ripristino del manto di copertura: “Il sistema AERcoppo® ci è stato proposto dall’impresa esecutrice e dopo aver analizzato approfonditamente i vantaggi di questa soluzione, abbiamo deciso di percorrere questa strada – ricorda l’Arch. Longo - Il sistema ci permetteva infatti di evitare l’impiego di malte per fissare i coppi e di poter disporre di una struttura flessibile per la posa degli elementi. Inoltre l’areazione che era in grado di garantire AERcoppo® ci permetteva una migliore tutela degli affreschi sottostanti e, più in generale, una migliore condizione della copertura”. Dello stesso avviso anche Luigi Errico, referente della committenza che ha seguito da vicino i lavori e ha contribuito con testimonianze storiche anche nella fase d’analisi: “La soluzione proposta dall’impresa ci è sembrata fin da subito interessante. Riteniamo che sia anche nostro compito valorizzare laddove possibile l’innovazione tecnologica in edilizia e il sistema AERcoppo® non comportava spese superiori rispetto a quanto preventivato. Apparivano inoltre fin da subito evidenti i notevoli vantaggi per la copertura e sciolte le prime perplessità in merito alla durata delle prestazioni del materiale plastico, abbiamo poi proseguito con convinzione nella nostra scelta e i risultati ci stanno dando ragione. Nella fase di validazione della scelta è stato molto importante coinvolgere anche la comunità locale, alla quale abbiamo spiegato nel dettaglio il sistema”.
AERcoppo®, una soluzione intelligente
Ma come si è arrivati al sistema di AERtetto? Chi ha proposto questa soluzione e perché è stata utilizzata? I dubbi sono subito sciolti da Donato Ciccone titolare dell’impresa che ha eseguito i lavori: “Sono stato io a proporre il sistema. Una volta le tanto bistrattate fiere sono servite a qualcosa. L’avevo visto a Made Expo quest’anno e ho subito pensato che potesse essere la soluzione ideale per il nostro progetto. Volevo un cantiere e una soluzione pulita, leggera e flessibile senza l’utilizzo di malte e, dopo aver approfondito il sistema con i tecnici di AERtetto, dai quali ho avuto un’ottima consulenza, ho proposto la soluzione a progettisti e committenza”.
L’Arch. Enzo Longo conferma i vantaggi dell’impiego di AERcoppo® che erano stati preventivati in fase di progetto: “Dopo la stesura dell’impermeabilizzante abbiamo iniziato a posizionare i supporti. La soluzione ci è sembrata fin da subito vincente per la sua flessibilità, leggerezza, ma soprattutto per la capacità di garantire aerazione alla copertura. La copertura è così più sana e anche gli strati sottostanti possono godere di migliori condizioni anche durante il periodo molto caldo”. Ciccone entra più nel dettaglio della posa in opera della copertura: “Il sistema è molto semplice da posare. Leggero e flessibile ci ha permesso di assecondare il disegno della copertura. Le uniche difficoltà si sono presentate per la geometria della cupola ottagonale e per la differenza di diametro sull’imposta e in sommità, ma abbiamo risolto anche queste trovando soluzioni percorribili proprio grazie alla flessibilità di AERcoppo®. Siamo molto soddisfatti. La posa è stata veloce e sicura e pensiamo che la soluzione possa dare benefici anche in futuro”. Anche per la committenza l’investimento è a lunga scadenza, come conferma Errico: “Abbiamo ragionato come committenza anche in ottica futura e il sistema di Aertetto® ci garantisce una maggiore facilità di intervento successivo in caso di rottura dei coppi. L’assenza di malta permetterà infatti di rimuovere facilmente i coppi danneggiati e di sostituirli puntualmente in poco tempo. Inoltre una soluzione asciutta, come quella utilizzata, dovrebbe rallentare notevolmente il fenomeno di crescita di erbacce sulla copertura, permettendoci di risparmiare anche sulla manutenzione ordinaria”. Anche dal punto di vista estetico i risultati sono stati soddisfacenti come conferma Longo: “Abbiamo soddisfatto le richieste della Soprintendenza sul mantenimento dell’aspetto della copertura, recuperando laddove possibile i coppi originali non danneggiati e posizionandoli nella parte superiore del manto, mentre lo strato sottostante è costituito da coppi nuovi. In questo modo l’estetica della copertura è preservata e la Basilica di Santa Maria della Vittoria è tornata agli antichi fasti di un tempo”. La chiusura spetta di diritto all’Ing. De Marinis, Responsabile dell’Ufficio Tecnico della Diocesi, che ha contribuito al successo dell’intervento: “Siamo molto soddisfatti del lavoro svolto fino ad ora. Abbiamo seguito passo passo l’iter progettuale e l’intervento sulla copertura in accordo con la Soprintendenza, approfondendo tutte le scelte e la proposta dei progettisti di impiegare il sistema AERcoppo®. Le perplessità iniziali erano legata alla tenuta del sistema sotto l’azione degli agenti atmosferici e in particolare del vento, ma abbiamo avuto ampie rassicurazioni in tal senso e fino ad ora, non abbiamo avuto nessun problema. D’altro canto i vantaggi erano fin da subito evidenti. Leggerezza, facilità di posa e aerazione della copertura hanno fatto la differenza”. L’intervento si completerà con l’installazione della statua in terracotta policroma della Madonna, opera dell’artista brindisino Cosimo Giuliani, che sarà posizionata sul pinnacolo della cupola al posto della croce in ferro. Un omaggio esplicito alla Madonna della Vittoria del Tiziano conservata all'interno, un simbolo della rinascita della Basilica che parte proprio dalla copertura.
客服
消息
收藏
下载
最近

































































