查看完整案例


收藏

下载

翻译
Frammenti di un mondo esterno
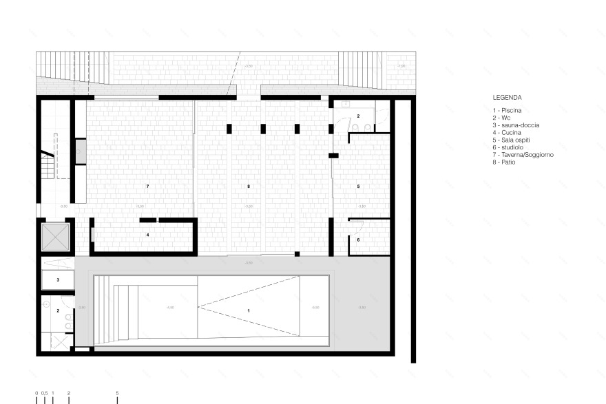
Indagare il tema dell’abitazione è un’esplorazione sul significato più profondo del rapporto tra l’uomo e l’ambiente. Il progetto parte dal riconoscimento dei valori di una realtà geografica molto specifica, nel parco della Sila, e partecipa di un sistema ambientale che conserva la scrittura primigenia del territorio calabrese, ancora in equilibrio con i caratteri dell’antropizzazione. Il progetto ambisce a intercettare gli elementi originari del luogo e condurli nella quotidianità dell’abitare. Il principio insediativo si fonda sull’idea delle abitazioni come dispositivi attivazione del paesaggio. Condizionato da una modellazione operata prima del progetto, il suolo viene articolato in terrazzamenti che si danno come podi di due plasticche scatole murarie. Il piano basamentale si presenta con una forte matericità, che dichiara la sua appartenenza al mondo geologico ed esprime il carattere topografico del progetto. La spazialità che ne deriva è quella archetipica e assoluta della cavità nella roccia, caratterizzata da una plasticità accennata e rarefatta. La scatola muraria poggiata sul basamento si presenta come una chiara manifestazione antropica, in rapporto dialettico con la natura. La connotazione plastica è sottolineata dal carattere chiaroscurale delle facciate, che anticipano l’organizzazione spaziale dell’interno. Le abitazioni si articolano attorno ad un vuoto centrale, che le attraversa e culmina con dei lucernai. La spazialità interna è sostanziata da un controllo della luce naturale, attraverso aperture e lucernai, che produce un graduale passaggio da una atmosfera più drammatica, fino ad una quasi totale immersione luminosa verso l’alto.In entrambi i casi la cavità interna della scatola muraria acquista un valore “fenomenico” in cui la metrica e il sistema proporzionale si fanno evidenti. Le abitazioni, così configurate, si danno ai loro abitanti come dispositivi da cui selezionare frammenti del mondo esterno.
客服
消息
收藏
下载
最近






















































































