查看完整案例


收藏

下载

翻译
A family of 5, a 5-bedroom apartment in a 20-year-old building – Tel-Aviv.
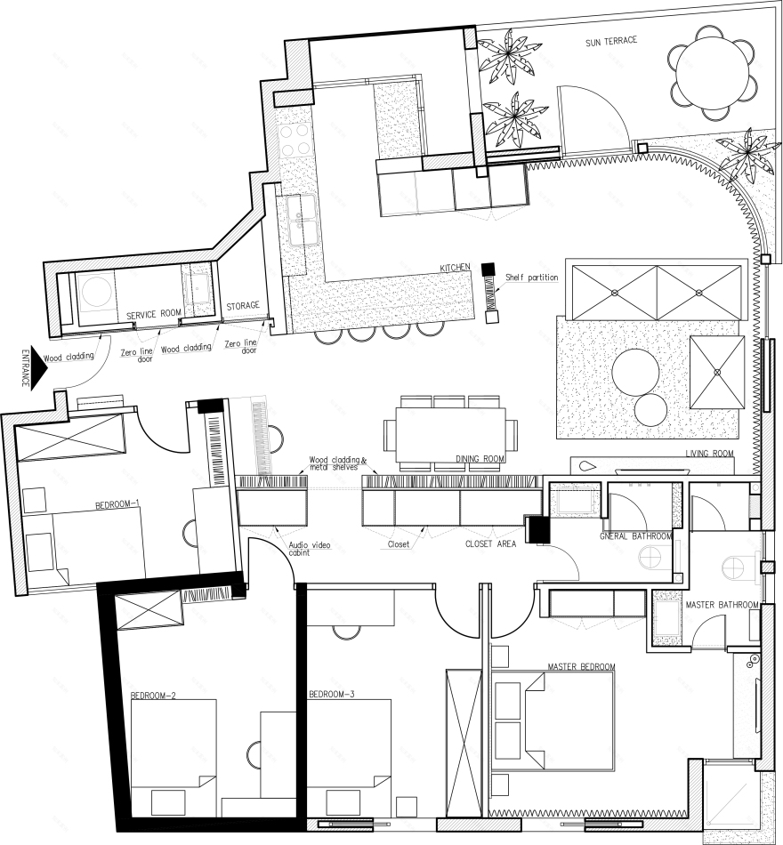
The 130 sqm apartment was dark, clouded, and did not get any sunshine in Their living room and kitchen were separated which blocked the light from entering the inwards.
The Family turned to me with a desire to open up space, create more storage solutions, and get more natural light in!
On a side note, as a designer and a literature enthusiast I noticed all the books were scattered around the house in all sorts of cabinets and dressers, I knew I had to do something about it!
Another desire was to have a light-colored apartment, the color black was not to be used.
To answer the challenges, I altered the kitchen angle to be opened to the living room. The kitchen counter is now parallel to the garage's wall and the kitchen island is the separator between the kitchen and the dining section.
I chose a white marble Calcutta material for the kitchen counter to create the connection between the light gray floor to the counter, The Calcutta material has veins that will help create a tranquil passage which will not take over other areas in the space.
Near the dining section, you can see a wall separating between the living room and the bedrooms, this wall was nothing but a regular wall, To create more storage space I took down the wall and installed a closet instead, I covered the back of the closet with wood a bleached oak finish, similar to the parquets in the bedrooms. To add depth, I added white thin metal shelves to the books the family had, they have a rich library.
The couch is layered with a light gray fishbone pattern, adjacent to it there are minimalistic round concrete tables
客服
消息
收藏
下载
最近




























