查看完整案例


收藏

下载

翻译
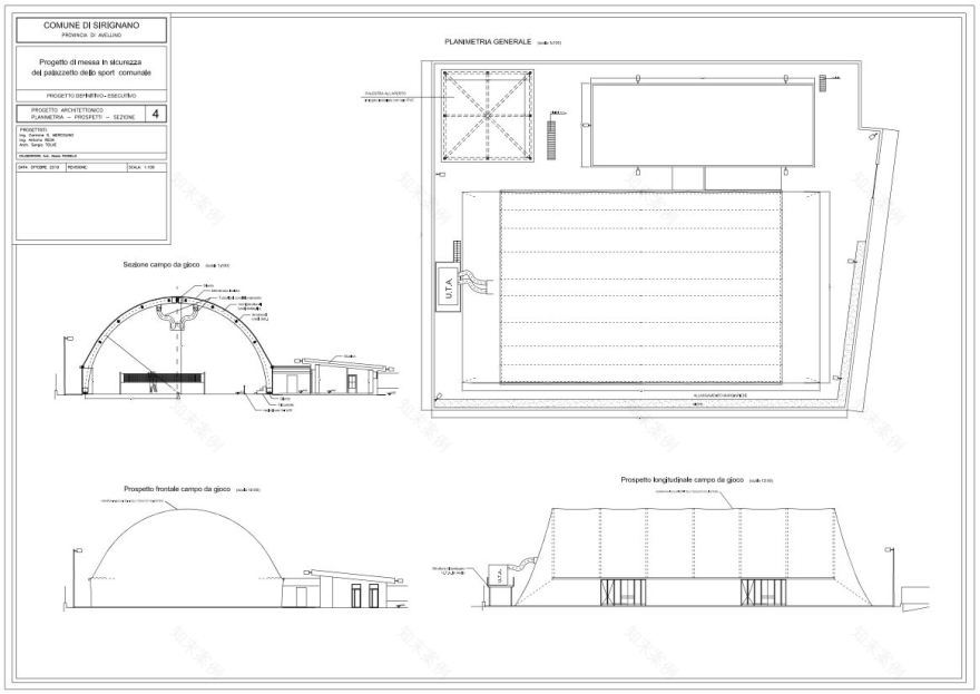
§ L'intervento principale previsto in progetto riguarda la copertura dell’intera area necessaria a consentire lo svolgimento dell'attività sportiva praticamente per tutti i giorni dell'anno e ad ogni ora del giorno ottenendo così una potenzialità elevata tale da soddisfare qualsiasi esigenza presente e futura, risolvendo definitivamente ogni tipo di domanda. L'impianto, non aperto al pubblico, avrà una presenza di non oltre 60 persone che assistono all'attività sportiva e quindi non esistono specifiche problematiche riguardanti l'esodo, le vie di fuga, ecc. e quelle previste sono ampiamente adeguate. Gli interventi previsti sono:
· scavo e rimozione della zanella esistente, realizzazione di fondazioni in c.a. su idoneo magro, costruzione di un muro in blocchi a vista di calcestruzzo colorati (per chiusura campo di gioco) alto 2.60 mi con cordolo di coronamento e pilastri in c.a. inseriti nella muratura;
· realizzazione di Copertura dell'Area di Gioco mediante
· rifacimento della messa a terra con corda di rame e dispersori a puntazza in pozzetto in cls,
· sistema di raccolta e smaltimento delle acque meteoriche (scavo, tubo in PEAD 200, pozzetti, griglie, ecc.);
· altre opere necessarie al completamento (allacciamento alla rete del gas cittadino con tubazione in acciaio zincato da 2.5 pollici ecc.);
Per quanto sopra esposto ed al fine di conseguire gli obiettivi che l'Amministrazione si è prefissata in termini di qualità e rapidità la struttura in legno lamellare, il telo in PVC isolato e l'impianto di ventilazione e riscaldamento/raffrescamento costituito da UTA a tutt’aria come appresso descritto con il destratificatore d'aria potranno essere affidati a ditta specializzata del settore.
Con la realizzazione degli interventi di cui innanzi si avrà la completa ristrutturazione e la totale efficienza dell'Impianto sportivo con enormi vantaggi per la collettività.
客服
消息
收藏
下载
最近










