查看完整案例


收藏

下载

翻译
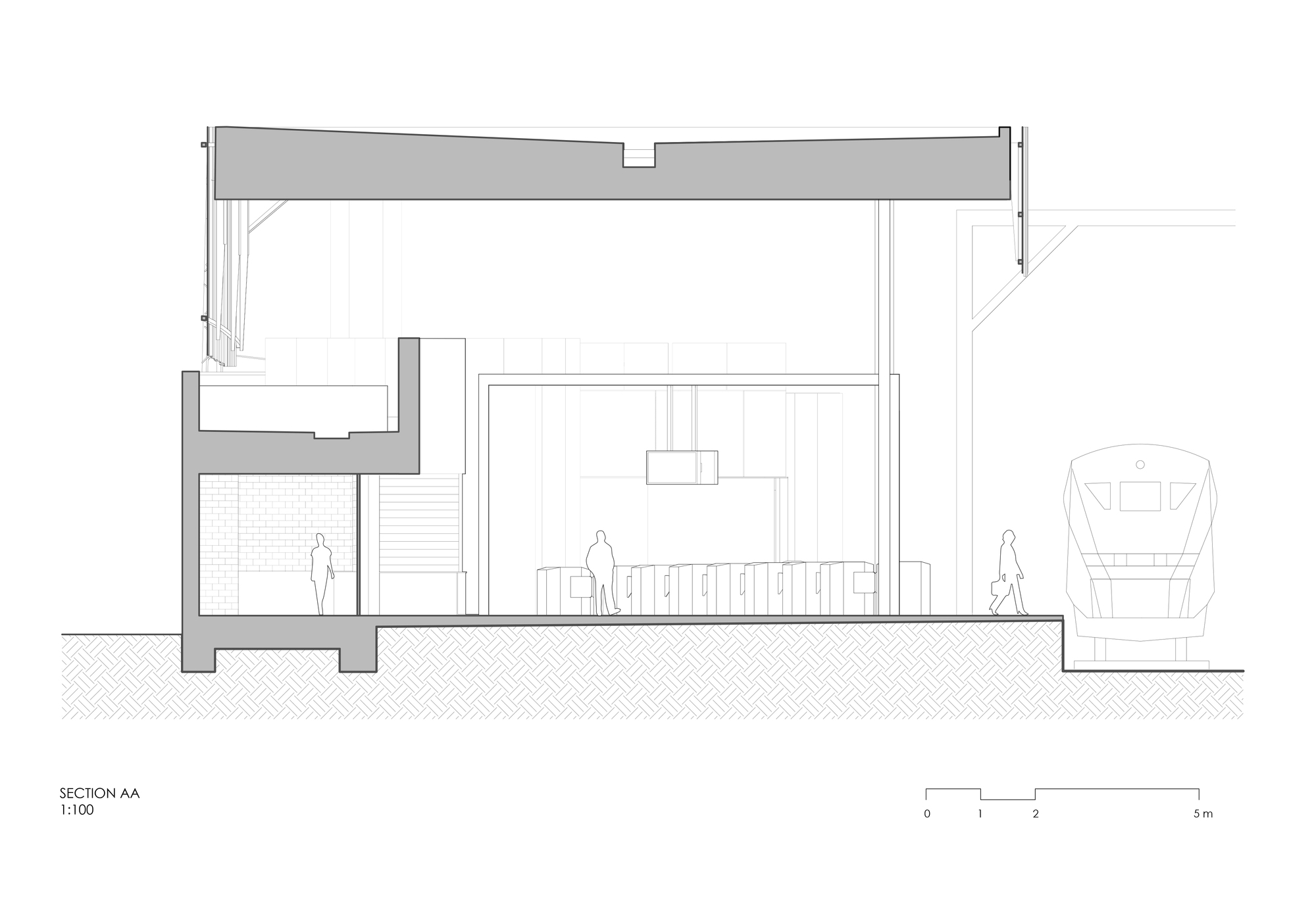
Frankston Station is a gateway to the Mornington Peninsula and the primary transport hub for the centre of Frankston. The project forms part of the Victorian State Government’s circa $6.9b. Level Crossing Removal project and was delivered by the North Western Program Alliance, with construction overseen by the Level Crossing Removal Authority. The Frankston Station project delivers the Office of the Victorian Government Architect competition brief that called for a building that could both satisfy the requirements of a functioning station and improve amenity for commuters.
Furthermore, the station also meets the need for a civic scale structure, that could respond to the context and revitalise central Frankston. The local community has a long and strong association with the station due to its location at the heart of Frankston.
Understanding this association and recognising the desire for a building that would speak at a social level to the diverse Frankston community drove Genton to design a station with civic conscience. The forecourt and geometry create a grand sense of arrival and recognisable back drop for meeting and events that is distinctly Frankston due to the continuous beach-inspired terrain and light ephemeral nature of the canopy screen.
▼项目更多图片
客服
消息
收藏
下载
最近
































