查看完整案例


收藏

下载

翻译
Concept. This project has three stages. The first one was the reconstruction of their old house. We did some cost calculations and propose them to build a new house with half volume and without any compromises.
Stage two: They find a nice plot of about 800 m2, they bought it and we start work on it. During the process, the investor managed to buy an adjoining plot with orchard and the total area of land was 3100 m2.
Now we started the third and last stage. That resulted in us deciding that it would be best to build in the middle of the orchard and have a view on the yard from every room in the house. The greenhouse was placed on the roof for several reasons: not to spoil the view from the house, saving money on the foundation construction, the use of residual heat from the house, and access to the greenhouse with the dry feet.
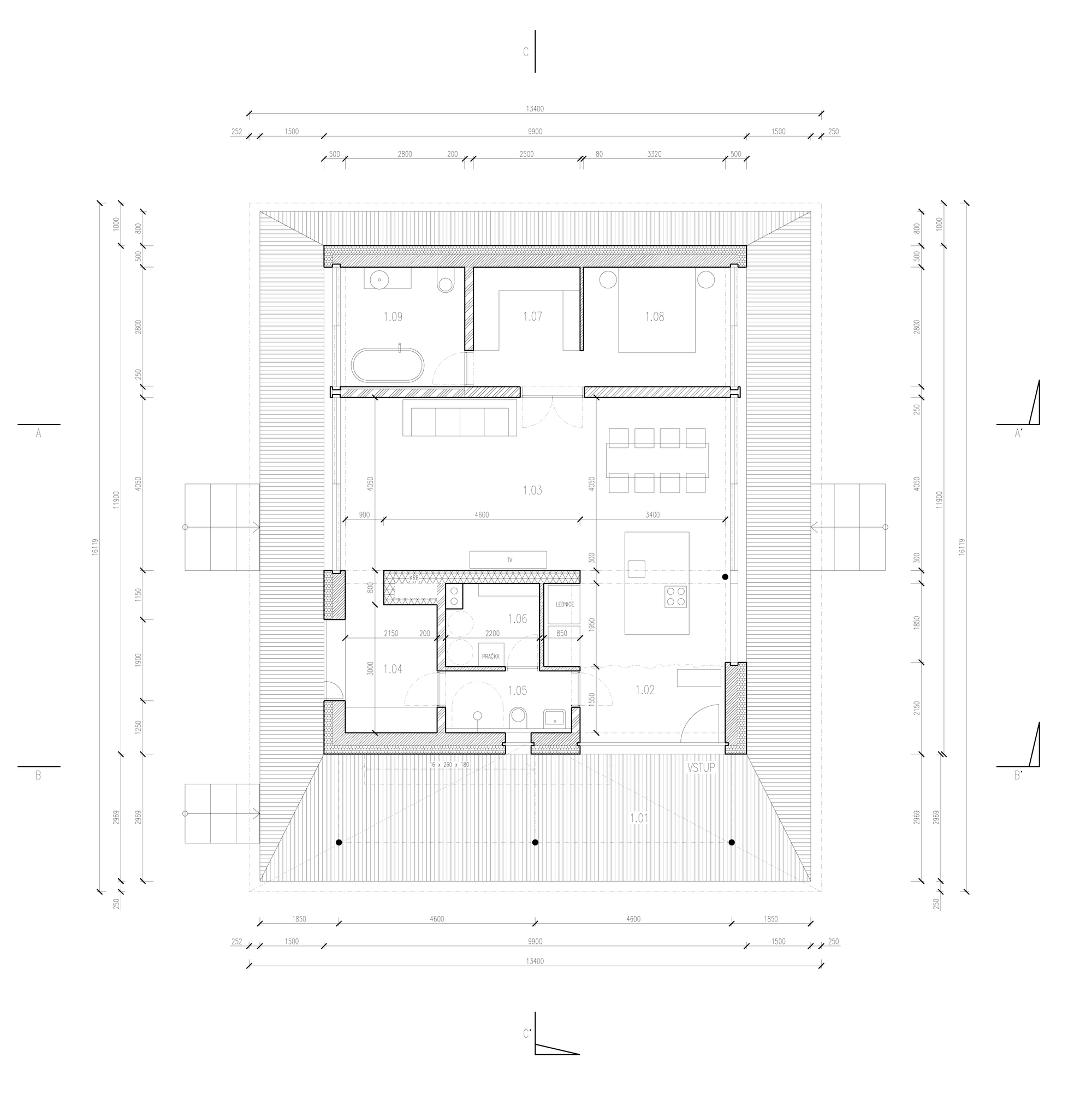
Layout. There is no typical hierarchy of the house. There is no one main entrance door and hall. You are directly entering the living area or bedroom. From the terrace, there is also a separate entrance to the greenhouse through a single-arm steel staircase. Around the entire perimeter of the house is a walk-on terrace that its entirely covered by the overhanging roof. Every room in the house can be directly accessed through terrace, thanks to sliding windows.
Construction. The house consists of two main parts: Residential on the first floor and a greenhouse situated on the floor above it. Both floors are structurally and functionally separated. The main load-bearing element of the lower part is the masonry wall complemented by steel columns bound by an exposed concrete bond beam. The ceiling is made of KVH profiles. The general aim was to keep the constructions visible, where and If possible. The structure of the greenhouse is made of steel profiles. The intention was to use the most subtle profiles for that purpose. The structure was mounted on site.
Materials. The building is designed as a low-energy brick house with a ventilated facade. The interior supporting accumulation wall is then lined with sandstone with a woodstove with exchanger. The facade is ventilated thanks to vertically laid larch planks, allowing air circulation. Larch is used in its natural form.
Windows are designed as aluminum with three-layered insulated glass/triple glazing. The frame color is natural aluminum. The greenhouse structure is steel – mounted with a white galvanized finish. 4-chamber hollow translucent polycarbonate is used for the greenhouse roof structure/ is used as roofing for the greenhouse. It’s not divided in length, making each individual board approx. 8.5m in length. The floor in the lower/ living area is an epoxy trowel, while the epoxy coating was chosen for the greenhouse.
▼项目更多图片
客服
消息
收藏
下载
最近





























