查看完整案例


收藏

下载

翻译
The office MM18 Arquitetura, led by the architects Mila Strauss and Marcos Paulo Caldeira, was responsible for the Fire Fighting Section (SCI)project of the Fire Department at Guarulhos International Airport.
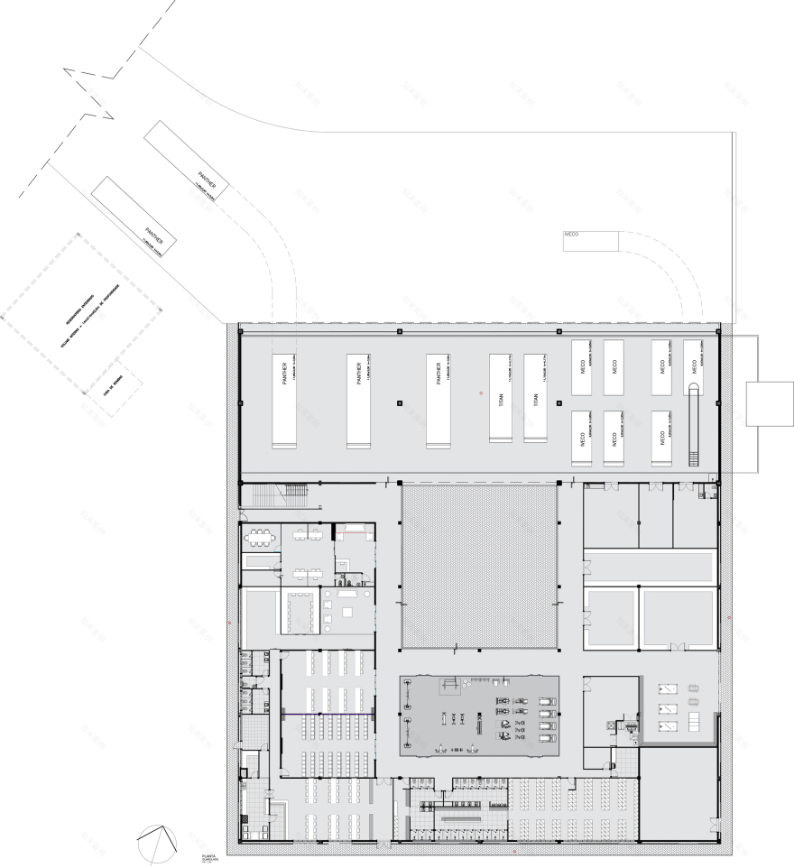
With the objective of preparing the firefighting station for eventualities with large airplanes, such as the Airbus A380, and to receive trucks and state-of-the-art equipment, the new space is in front of the main runway of the Airport.
The largest airport on the move in the Southern Hemisphere, where about 40 million passengers pass each year, Guarulhos Airport operates at the fire prevention level of category 10 - the highest level ever planned worldwide.
The program includes a study room, library, office, gym, rest area, cafeteria, parking for all fire trucks, a tower and a central courtyard where firefighters are trained in the open air, also available for first aid. In addition, a refueling area for the trucks is positioned below the scythe.
The project was quickly executed, it is all done in metallic structure and closed in cement board, highlighting the red color in the floors and walls, and also predicted a new street between the building and the airport, resolving the flows.
▼项目更多图片
客服
消息
收藏
下载
最近



























