查看完整案例


收藏

下载
房子,上皮涅罗斯,巴西
设计师:Galeria Arquitetos, Terra Capobianco
面积:464 .0m²
年份:2020
摄影:Nelson Kon
供应商:AutoDesk, B'Block, Casa Franceza, Deca, Lesco, Lumini, Luxes, Metalart, Nani Chinellato, Neogran, Normandia Marcenaria, REKA, Reclima, Rigasist, Segmento, Solepoxy, Tecnosaunas, Trimble, Tuboar, Uniflex
负责建筑师:Ana Terra Capobianco e Fernanda Neiva
设计团队:André Braz, Liliane Nambu e Lucas Leite
业主:Júlia Capobianco e Gustavo Meireles
施工:Schwartz Engenharia
金属结构:Stec do Brasil
景观设计:Giardino Planejamento de Exteriores
空调工程:Reclima
城市:上皮涅罗斯
国家:巴西
设计师描述 | Designer description:
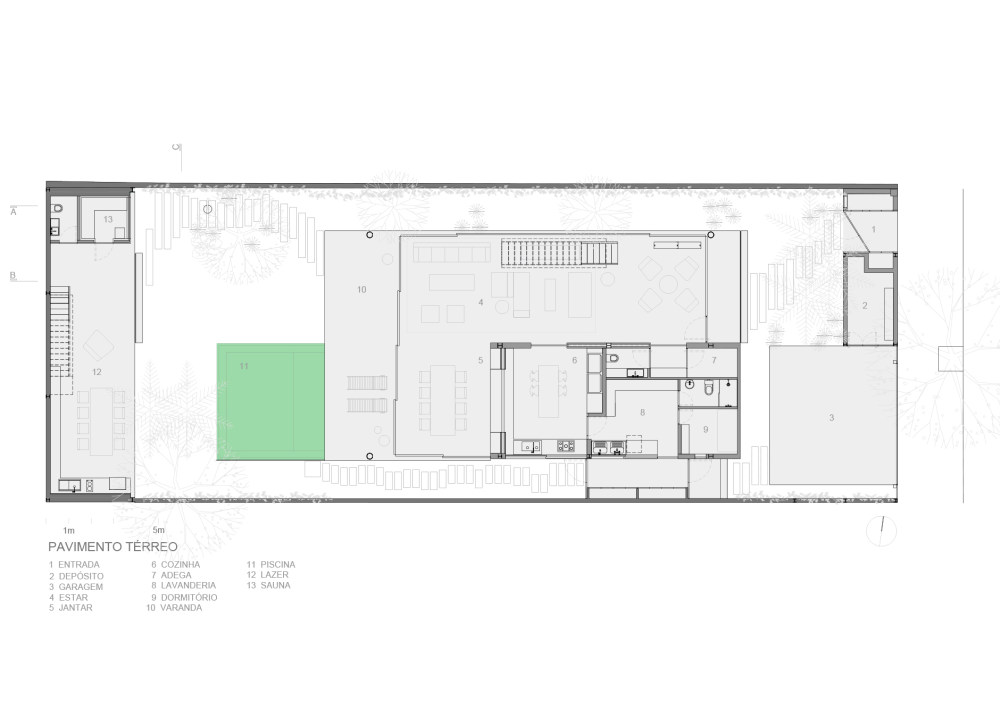
A implantação da Casa Treliça parte de um programa de necessidades de aproveitamento máximo da ocupação do terreno delimitado pelos recuos obrigatórios do regulamento que desenha os lotes residenciais da região de Alto de Pinheiros em São Paulo.
Partindo do senso comum de implantação, o exercício arquitetônico inicia na concepção estrutural. A intenção do projeto foi resolver com poucos elementos uma construção rápida e seca, em estrutura metálica, laje steel deck e fechamentos em steel frame. Além da racionalidade dos sistemas construtivos a arquitetura procurou produzir um espaço amplo e totalmente integrado com a paisagem circunscrita no lote de 533,35 m2. Para isso, foram projetadas três treliças metálicas, duas nas extremidades longitudinais do volume principal, permitindo um vão de 15 metros contínuos livre de apoios na área social e a terceira no sentido transversal da largura total do terreno configurando o volume suspenso da edícula de 14 metros de vão livre.
As salas de estar e jantar podem ser completamente abertas com painéis de correr de vidro permitindo total integração com a varanda, piscina e o jardim. Um caminho projetado com pisadas de concreto moldado in loco percorre o jardim até a área de lazer, com sauna e churrasqueira localizados sob a treliça da edícula. O aproveitamento visual do terreno é ininterrupto, menos de 1/5 da área do térreo possuem vedação opacas o que produz uma sensação de amplitude potencializada pelo pé direito de 3 metros do pavimento térreo.
Uma escada metálica conduz ao primeiro pavimento onde a treliça é revelada a contraluz do material translucido thermoclick. Uma sala comum distribui para as quatro suítes; duas delas projetadas de forma flexível a servir inicialmente para o casal, com dois banheiros e dois closets e uma sala intima além do dormitório. Na edícula o primeiro pavimento abriga a sala de ginásticas e a suíte para hóspedes.
Os dormitórios são face leste e oeste com venezianas em ripas verticais de pinus autoclavados e carbonizados para garantir durabilidade e resistência as intempéries. Na fachada norte o thermoclick garante resistência térmica além de agilidade de montagem com painel autoportante de encaixe macho e fêmea. O thermoclick é repetindo na fachada sul. As quatro faces delimitam um volume único retangular de fachada dupla, desmontável e eficiente.
O acesso as coberturas técnicas se dão pelas claraboias. Sobre a edícula o aquecimento solar da piscina e o volume principal é coberto por placas fotovoltaicas além dos demais equipamentos, sistema de aquecimento solar e caixas d’água, sendo uma destinada exclusivamente aos vasos sanitários abastecida pela agua de reuso da cisterna de 20 mil litros enterrada sob a garagem da residência. A residência também conta com irrigação automatizada para o jardim proveniente de água da chuva. A casa foi certificada pelo Green Building Council Brasil, referência nacional em construção sustentável, conforme diretrizes estabelecidas no GBC Brasil Casa no nível prata.
项目完工照片 | Finished Photos
设计师:Galeria Arquitetos
图片©Galeria Arquitetos
语言:葡萄牙语
客服
消息
收藏
下载
最近






























