查看完整案例


收藏

下载
2018年3月,我们接到南粤古驿道新驿站的设计委托,广东省建筑设计研究院有限公司城市建筑工作室(UAD)一直通过“三师下乡”志愿服务保持对广阔的乡村区域,特别是贫困乡村的关注,希望以专业技术回馈社会,而驿站的设计工作就是非常好的契合点。
Mei-Ling Post Pavilion is located at South China Historical Trail. In March 2018, Urban Architecture Design of GDAD was commissioned of designing a new post pavilion at the historical post route. Different sections of the route were found at the rural areas of Guangdong. As a design group with social responsibility, we focus the countryside through the voluntary service of “Architects, Planners and Engineers to the Countryside”. This project was a good entry point for us to make contribution to the rural areas with our knowledge and design.
▼项目鸟瞰,aerial view of the project ©凯剑视觉
新驿站的创作从选址到设计都得到非常高的自由度,设计从对南粤古驿道的价值发掘有益、对周围居民有益、乡土环境里的在地性与呼应历史的传统性三个维度出发。
We had a high degree of freedom during the design process. The design has three major starting points: benefiting exploring the value of historical trail and local community, localization of the rural contexts, and making dialogue with the local history and traditions.
▼梅岭驿站鳞次栉比,叠级上升的屋顶,overall of the project ©凯剑视觉
南粤古驿道是指广东历史上用于传递文书、运输物资、人员往来的经济交流和文化传播重要通道,是拥有特殊文化资源集合的线形或者带状区域内物质和非物质文化遗产族群,并且串联起了广东省60%左右的贫困乡村。随着国家的发展和对文化遗产的重视与复兴,对贫困乡村的扶持,对南粤古驿道进行了系统性的修复与价值发掘。我们希望选址可以整合旅游资源,经过多次现场勘查,比选了韶关南雄市的南粤古驿道——梅关古道附近的几个地方,最终选址于梅岭古村。
▼南粤古驿道梅关古道分析,site analysis ©UAD
South China Historical Trail was an important trade (post) route for economic and cultural communication in ancient Guangdong, people used it to travel, convey supplies and documents. Nowadays, it is still an important route to connect different cultural resources and heritages, about 60% of impoverished villages in Guangdong are located alone the track. With supporting the impoverished villages and emphasizing the cultural heritage, the track has been systematic restored and explored the value.
▼梅岭驿站西北侧,the northwest side of the project ©凯剑视觉
▼青砖墙与木构屋顶形成清晰的虚实对比关系, the brick wall and the wooden roof form a clear contrast ©凯剑视觉
从梅关关楼到梅岭古村,保存了整个梅关古道中最完整的古驿道本体,其中1200米与梅关关楼一起成为了国家级文物保护单位,还有一段500米左右的古驿道本体不在其内。所以我们选址在梅岭古村的村头,游人停车后经过梅岭驿站循古驿道上山,沿途参观司马第、下马碑廊等古迹,最后到达梅关景区入口小广场,与现有旅游主线路接通,使梅关古道的旅游资源更加丰富厚实。
▼选址分析,location analysis ©UAD
▼轴测分析图,axonometric diagram ©UAD
The site was initially chosen from several positions near Meiguan Historical Track, Nanxiong, Shaoguan, We hoped it could integrate tourism resources. After several on-site visit and careful considerations, the entrance of Mei-Ling Historical Village was selected. The track from Mei-Guan (Pass) to the Mei-Ling Historical Village remained intact. A 1,200-meter-long track with Mei-Guan (Pass) have become a national cultural relic protection unit. After parking, visitors can begin their journey to Mei-Guan Historical Track through the Mei-Ling Post Pavilion. Along the way, there are Sima Di, Xiama Beilang and other historical sites, finally arriving the entry plaza of Meiguan Scenic Area.
▼从牌坊望梅岭驿站,保留了村民小卖部并创造了村民聚集的灰空间,some of the original building is preserved where villagers can be gathered around ©凯剑视觉
具体的位置经过反复斟酌修改,最终确定在现有民房之前的景区停车场兴建,选择不拆迁民房而减少扰民。未来这里可能成为梅关古道景区的主要入口,同时考虑了把驿站扩建为游客服务中心的可能性,游客旅游线路的加长,为沿街居民的收益也提供了可能性,以此兼顾当地村民、游客、景区管理方三方的需求。
▼分析动图,diagram gif ©UAD
The pavilion would help the track connect to main tour route and enrich the tourism resources of Meiguan Historical Track. After careful consideration, the pavilion was finally determined to be built at the scenic car park in front of the existing residential area. As this spot might become the main entrance of the scenic area, the pavilion has considered future-proofing, it has the potential to expand to a tourist service center in the future. The extension of tourist route might increase the income for residents along the street, to coordinate the demand of three parties: the local community, the tourists, and the management office.
▼屋顶小青瓦与玻璃细节,blue tiles and glass details on the roof ©凯剑视觉
▼45°折角小青瓦坡屋面单元,details of the roof ©凯剑视觉
新驿站的使用功能是比较简单的,只需要承担古驿道管理、综合服务、交通换乘等功能。因此如何体现乡土环境里的在地性与呼应历史的传统性是设计重点考虑的出发点之一。我们保持对自然谦虚内敛的态度,以“有用”为基本设计准则,通过对乡土建筑语境与传统建筑的转译,采用现代单元式的设计手法,以等差模数制为组合逻辑,结合了当地传统的青砖、灰瓦、原木等材料,在梅岭古村村头设计了一座具有民居聚落形态特色,与自然相融的单元式驿站。
▼屋顶模块单元形式分析,roof pattern analysis diagram ©UAD
The pavilion has some simple but important tasks, the daily management of historical track, tourism services, traffic transfer service, etc. How to reflect the regional characteristics in rural context and how to response the traditions in history become some major concerns of the design. Starting by maintaining a modest and restrained attitude towards nature and taking “usefulness” as the basic design criterion. We try to adopt modern modular design methods through the translation of vernacular architectural contexts and traditional architecture, and then apply the results into equal-difference modular system as the combinational logic. After the translation, we combine the outcome with traditional local materials such as blue bricks, gray tiles, timber, etc. Finally, a modular style pavilion with traditional and local characteristics, also integrate with nature, was established.
▼以750mm模数组合的钢木单元形成统一又丰富的空间,Steel and wood units combined with 750mm module form a unified and rich space ©凯剑视觉
▼从梅岭驿站望梅岭牌坊,viewing the historical structure from the project ©凯剑视觉
▼光映斑驳的镂空青砖墙,Light effect on the mottled hollow brick wall ©凯剑视觉
▼钢木单元木檩条细节,details of the ceiling ©凯剑视觉
希望以此,让人们感受到建筑是作为自然的一部分而存在的。在驿站下休憩间,能感受到阳光、清风、山林,唤起人们对自然的感知能力。
We hope visitors consider the pavilion as part of the natural environment. When using the pavilion, they could imagine they are inside the nature, sensing the warm of sunshine, the breeze of wind, the sound of mountains, and the smell of forests.
▼夜景鸟瞰,aerial night view ©凯剑视觉
▼夜景,night view ©凯剑视觉
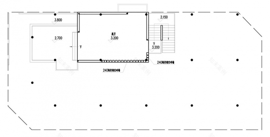
▼首层平面图,ground floor plan ©UAD
▼二层平面图,upper floor plan ©UAD
▼立面图,elevations ©UAD
▼剖面图,sections ©UAD
▼细部详图,construction details ©UAD
▼项目更多图片
客服
消息
收藏
下载
最近




































