查看完整案例


收藏

下载
浮游一生,每个人都在探寻生活的意义。但唯有真正的遵从内心,平常以待,才能参透生活与艺术的真谛。
家居空间的打造,实则是一次内心剖析,也是关于生活方式很重要的一次选择。
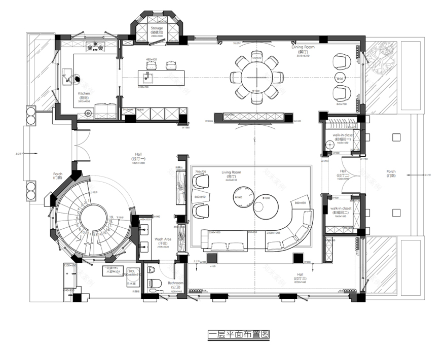
一层庭院
居者所向往的,是一处能安静下来的天地,是一种悠然的生活。如林语堂先生在《生活的艺术》的一书中所说:“要享受悠闲的生活只要一种艺术家的性情,在一种全然悠闲的情绪中,去消遣一个闲暇无事的下午。”
而我们做的,便是从庭院、外观、结构、色彩、产品及其细节,不断优化,细细研磨,去构建居者心中的悠然情境。为此,不惜花费四年时光。
一层客厅
设计以享受“慢生活”为出发点,将现代时尚和纯粹自然诉诸于空间,为崇尚自由,追求品质生活的居者,传递一种无拘无束的自在生活方式。
一层客厅
在客厅,设计上充分保留了空间的敞阔感,大面飘窗似自然的取景框,将四时之美摄入家中。朝可看流霞春光,暮能听鸟鸣群响,家与自然之间,随心切换,在俗世之外,随心悦我。
一层客厅
沉静低调的高级灰底色中,棉麻、皮革、大理石、金属之间的配合相得益彰又饱含生趣。当光一寸一寸地落于空间,神秘感与序列感也由此产生。
一层客厅
光影游戏中,轻灵而充满节奏韵律的弧线,串联起居者日常里有关美、有关格调、有关体验的故事。
一层西厨
弧线的动感与活力,让同一空间的开放式客厅、餐厅、厨房和吧台之间更加充盈饱满,也让居者在这种具有动势的秩序中萌生出生命的感受。
一层餐厅
一层餐厅休闲区
弧线也化身为串联所有空间的旋转楼梯,赋予空间浪漫的遐想。大理石阶梯仿佛琴键般,拾阶而上似乎便会敲响灵动的乐章。
旋转楼梯
过道装置
弧线的外在烘托,映射自在与悠然的内质,将空间视感与整体品质提升到绝佳状态。
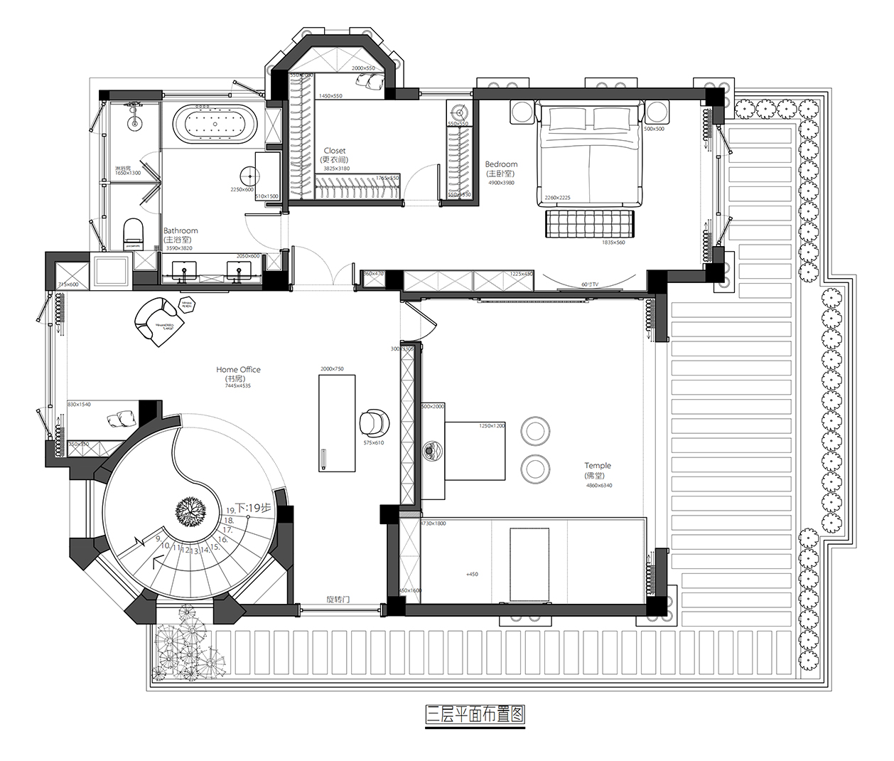
三层书房
简洁是一种豁达,回应着人们内心的那片空旷与安宁。设计通过空间的轻盈化解身心的束缚,让居者汲取更多的能量与养分。
三层主卧
光透过轻柔的纱幔,滤过炽热和寒冷的两极,留下恰到好处的暖意。在日落晨昏里,美与宁静自然生发。
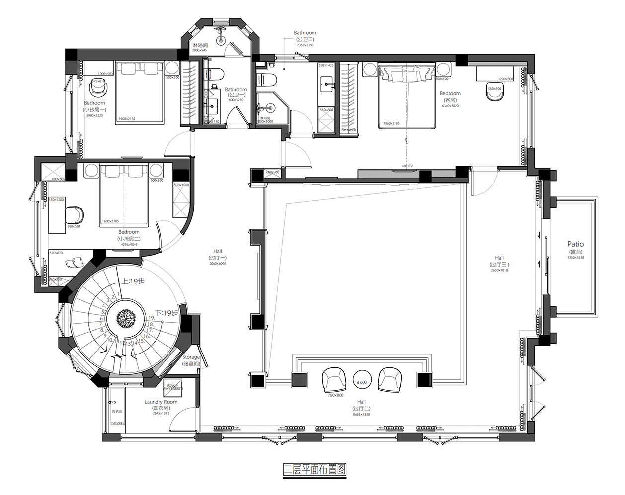
二层卧室
负一层从功能的拓展,全屋智能植入,追寻现代美学,呈现丰富的品质生活方式。
负一层影音室
负一层水吧区
露台庭院呼应自然的引入,将身居繁华、心归自然的空间体验展现得淋漓尽致。在缓慢而宏大的时光里,那一份悠然在澄澈的心中。
三层露台
项目地点:福建 福州
项目名称:名城港湾别墅
主创设计:俞燕琴
参与设计:卓成涵,曾祥胜,张林叶
项目面积:800m2
完成时间:2020年
设计单位:品川设计
施工单位:品诚施工
软装陈设:大观软装
官方网站:
客服
消息
收藏
下载
最近












































