查看完整案例


收藏

下载
每一对夫妻,都有着属于自己的相处模式,两人的相处模式也决定着家的样子。
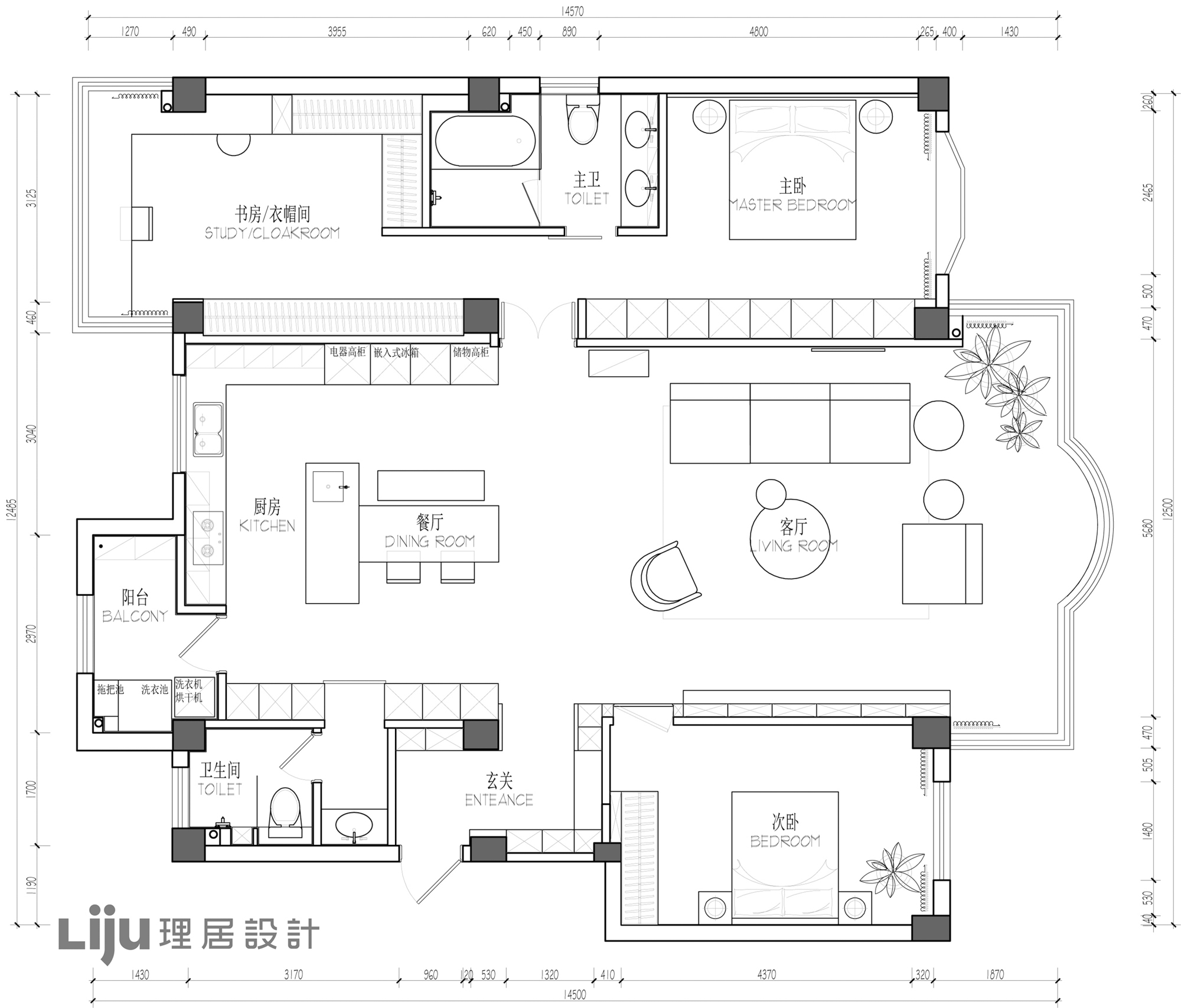
本案布局重点在于重解房屋结构以贴合屋主需求。原本
162㎡四室的大户型改为夫妻二人居住的二居室大宅,将一间次卧释放出来以扩容餐厨,打通了整个LDK一体化空间。在风格中,注重材质在空间中的质感表达,以光影层次表达氛围,构建生活场景。
从充满仪式感的玄关进入家里,灯光与略显低矮的天花板形成一个暗色调氛围空间,以欲扬先抑的手法营造归家的心情切换之地。黑白挂画与圆拱形穿衣镜在相互反射中,以二维视角展现出三维效果并扩大空间纵深。
水泥森林中流露出的自然气质,碰撞出暗色调空间中的绝妙质感。加上与多疤结原生橡木质地的块面运用增添一份精致中的粗狂,赋予空间质感更深层的表达。
房屋向内一侧完全属于屋主两人,充满仪式感的双开门后,集合书房、衣帽间、主卫与卧室的总统套间式卧房,满足了男主人在家办公的需求与女主人大量服饰包袋的收纳需求;另,原生活阳台纳入使用扩大了主卫,达成女主人希望有个浴缸加双台盆的愿望。
客服
消息
收藏
下载
最近


















