查看完整案例


收藏

下载
柱宅(建筑师自宅)位于上海市区一栋高层住宅楼内。大楼具有区别于常规商品房的鲜明特征:框架结构构件粗大,外窗尺寸统一。设计试图挑战住宅室内设计中对柱子的偏见——它常被作为多余的、干扰的部分。设计探索了两根结构柱的可能性,将它们从多余物的角色中解放出来:房屋自身的空间与结构特征变得可读;结构要素通过模棱两可的处理获得新的效果和意义
▼空间概览
暴露在客厅中心的柱子,延伸出四个象限的使用功能,配合均匀的外窗,提供了望向起居空间的全景视角。一侧的镜面不锈钢,模糊了柱体过大的尺寸。设备与管道被压缩在柱子北侧,包覆以较低的白色吊顶,与南侧混凝土顶棚的原始高度形成对比。水泥与白墙的变化,构成望向尽端的洞口。固定家具的材料为:桦木多层板、不锈钢、生铝板,形成不同纹理和反射度的层叠。
▼起居室全景视角
▼立柱限定出空间
▼镜面不锈钢,模糊了柱体过大的尺寸
▼水泥与白墙拼接
▼餐厅
▼厨房
▼不同材料形成不同纹理和反射度的层叠
▼走廊
主卧与次卧之间的柱子,成为连接过道与两个房间门洞的一部分。相互交叠联通的洞口呈现出模糊的多义性。穿梭于房间的过程,就是走过柱子的深度。
▼主卧与次卧之间的柱子
▼主卧
▼次卧
作为城市中密集的、被局限的住宅,对诗意的追求显得无关紧要。重要的是如何把框架处理得灵活并能支撑个体独特的生活方式。就好像在制作一个画框,而非画面本身。
▼轴测图
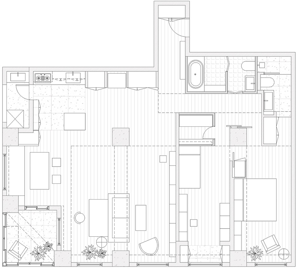
▼平面图
室内设计:合尘建筑
设计团队:陈昊,胡琛琛
项目地点:上海市长宁区
建筑面积:180 m2
项目周期:2019-2020
摄影师:朱清言
客服
消息
收藏
下载
最近





















