查看完整案例


收藏

下载
始于设计/ 赋于色彩
项目地址 :姑苏铭著
项目面积 :420m2
设 计 :CHUN YU 空间设计
设计主创 : 梁春雨
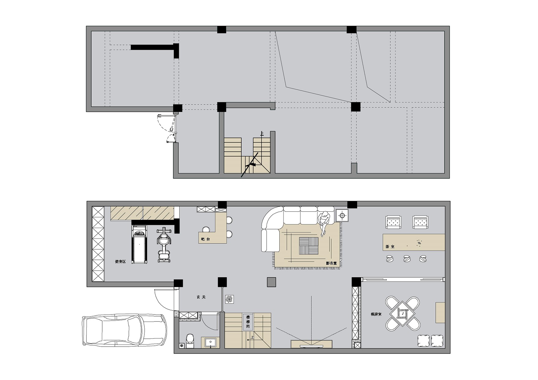
地下一层
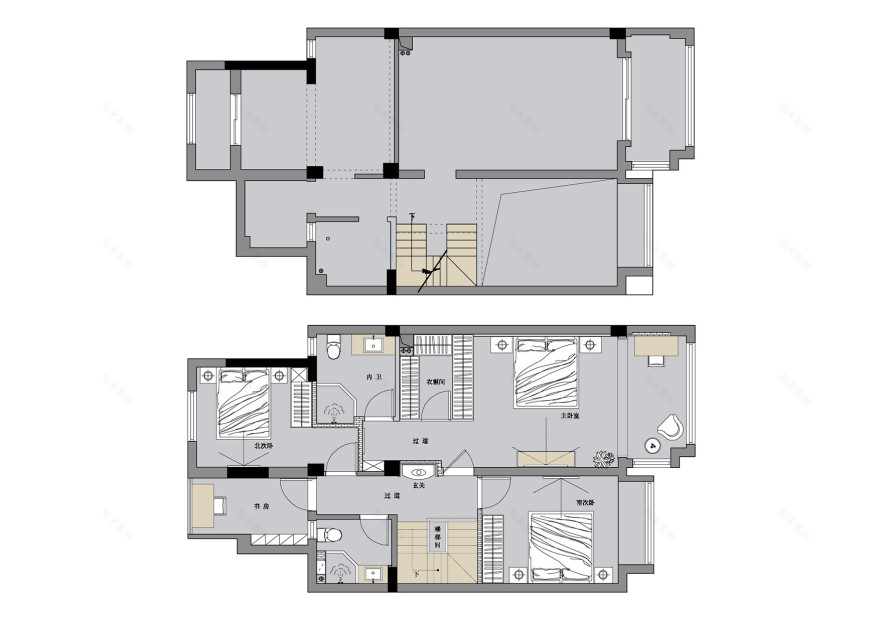
夹层
一层
二层
一层门厅处房门做了隐形门和护墙板,这样进门不会显得突兀。
扩大了原有厨房空间,
把部分餐厅空间纳入进来。
为了解决卫生间空间问题,把原有台盆位置挪动至过道,
做了干湿分区的功能。
楼梯道做了方管隔断,避免了进门见客厅的风水问题,
电视背
景和餐厅背景都做了原创设计,满足储物与审美为一体。
夹层其实是5.5米提高空间隔出来的一层,增设了保姆房、休闲区域、书房、
衣帽间、卫生间,没有做完全封闭,将其地下室联通做了天井处理,既满足
了采光和通风的功能,也大大增加了空间层次感。
地下室借用天井空间,做了一整面沙发背景,增加视觉冲击力,
还增设了健身区、棋牌区、茶室、吧台、影音室功能
三层主卧将北卧室和南阳台打通,将整个空间都连贯起来
客服
消息
收藏
下载
最近
















