查看完整案例


收藏

下载
丨用故事堆积起自己的家 丨
屋主需求:
本案是在原硬装的基础上做软装设计,书房拆除了原硬装与客餐厅相隔的墙面,使空间合二为一,阳台摒弃掉原硬装的移门,使整体空间做开放式设计。 客户喜欢简约风格,对储物要求比较高,所以阳台那边做了一个地台在增加储物的同时可以提升氛围感。整体以黑白灰色调装饰,暖橘色点缀与白色纱幔呼应,营造一个简单、柔和的居住空间。
△一楼平面布置图
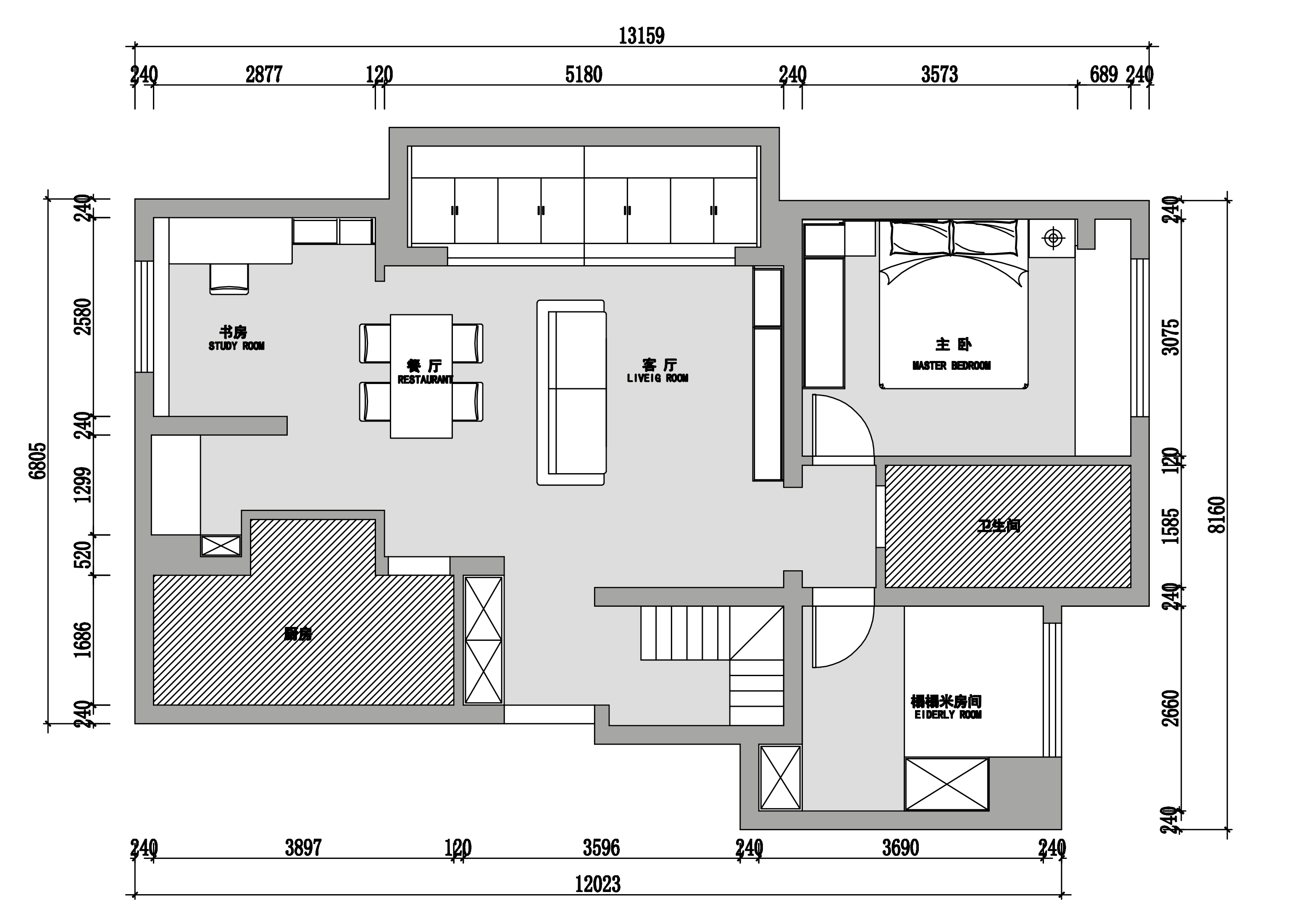
△二楼平面布置图
客餐厅
为使整体空间更加通透、开阔,打通了书房与客餐厅分割的墙面,拆除了原硬装阳台的移门,使客餐厅、阳台、书房同处于一空间,以墙面为界分置不同的功能空间。
客厅主体为黑白灰色调,暖橘色装点空间,为空间增加活力、温馨。电视柜选用柜体设计,与空间比较融合,又增加了整体的收纳功能。
书房打通墙面,开放式空间不显压抑,与餐厅相邻也为办公、学习氛围营造无限可能。
主 卧
主卧没有多余的装饰,整体选用深灰色为主色调,整体沉稳大气。床头背景墙为深灰木饰面板做分割设计,内嵌灯增加室内的暖色。
次 卧
次卧选用暖色调装饰,背景墙的暖橘色与白色纱幔呼应,为房间加上了一层柔和的滤镜,营造一个放松、温馨的休息空间。
次 卧
该空间整体以柜体为主设计,靠床沿设等高榻榻米,空出床头空间做展示柜设计,既增加了储物空间,也可以作为客房使用。马卡龙绿点缀使视觉上减少枯燥,更显美观。
作品名称
丨染尘
工程地址
丨劝学里
设计风格
丨现代简约
户型结构
丨三室两厅一厨三卫
房屋面积
丨125㎡
软装设计
丨内舍软装-陈书萧
软装造价
丨15w
来自群组:
内舍整体软装
客服
消息
收藏
下载
最近

















