查看完整案例


收藏

下载
岁月就是用经历写的一本书,人生这场戏就是你的剧本。不管宿命如何,用一颗真实的心,做自己生活的主角,用真实和善良来演绎完美的生命!
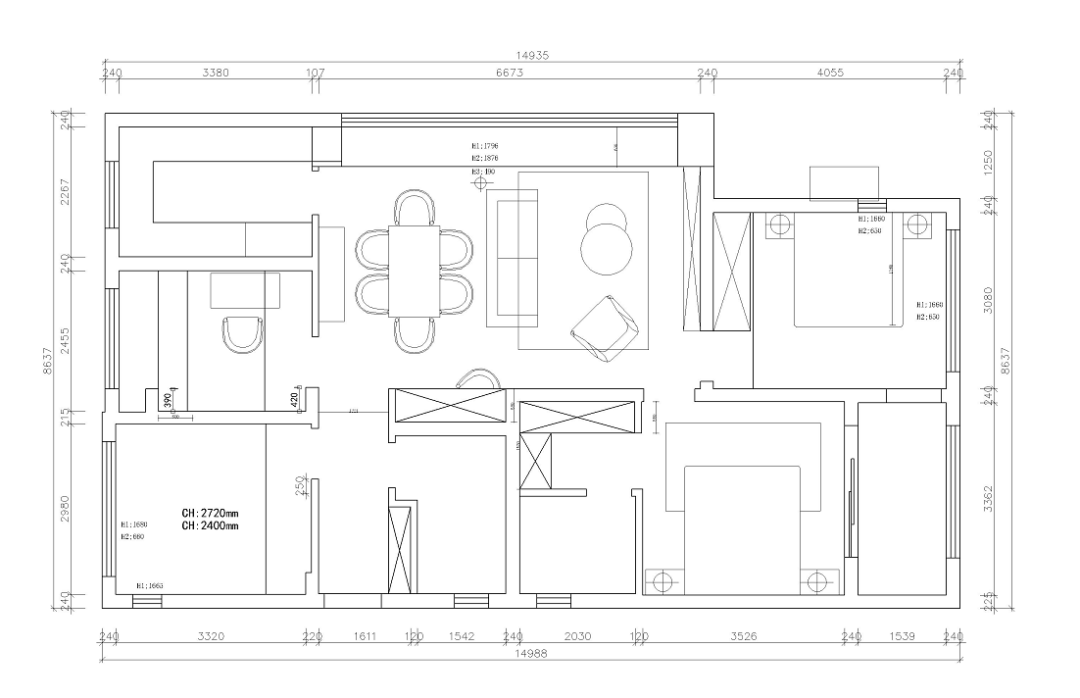
△平面设计图
设计理念:在和屋主沟通中也了解到屋主喜爱阅读并且希望拥有相对开放的空间,所以在客餐厅的布局上我们打破了常规格局:整面落地玻璃大书柜、投影仪、餐厅旁划出的办公区,所有的别出心裁都是为了和主人更好的契合。
在配色上了解到屋主比较钟爱黑白灰的配色,所以在该案的设计上采用了大面积的黑白灰配色选用了橘色的调色,让整个空间低调大气的同时更为活泼生动。
客餐厅
因为屋主更希望有一个开放式的空间可以兼具休闲与阅读的功能。与传统的客厅不同,在这里没有电视背景墙,而是在吊顶顶部安装了投影仪;没有沙发背景墙,营造一个开放式客餐厅;通体大面积的飘窗,打破了常规的布局。所有的刻意安排只为与你的契合。
沉稳厚重的灰色沙发在整体橱柜的黑色镜面和墙画的映衬下,使整个空间极具摩登色彩。橙锗色的单人椅以及高挑的金属三角摆件更为都市生活增添一份时尚的活力。
书桌不一定非要局限在书房,客厅的一角,即是休闲放松的天地,又是别具一格的装饰。
晶莹的水晶石吊灯在艺术摆件的呼应下,为整个家注入艺术的灵魂。
主卧
卧室中,巧妙地使用黑白灰,可以达到简洁、时尚、现代的效果。略带烟水气息的烟灰色作为墙面装饰色,宁静素雅。冰川灰作为墙面的辅色,低调不失优雅。
明度深浅变化的灰色系让整体空间更显层次,仿佛一位有内涵有智慧的成熟女子,充满永恒和知性的魅力,让人深陷其中。
次卧
天空灰一直都有种水墨的气质,古朴大气,用来作为墙面装饰色彩,包容性极强。优雅素净的床品映衬墙上的老照片挂画,意境复古深远,特别适合偶尔作为老人房的选择。
点缀的黄昏蓝色、鹧鸪色的装饰画框和床头柜,随意摆放的精致饰品,让空间层次感更丰富。
书房
书房简单的米色榻榻米,冰川灰色的墙面,一抹活泼的橙色,仿佛置身于满目银白的旷野,感受旭日东升的纯粹世界。
【作品名称】:遇见西雅图
【工程地址】:西雅图
【设计风格】:现代
【户型结构】:住宅
【常住人员】:青年小夫妻
【房屋面积】:119 m2
【软装设计】:内舍设计·叶婉倩
【软装造价】:16 W
【软装家具】:成品家具、定制家具、灯具、窗帘、墙布饰品挂画等
客服
消息
收藏
下载
最近















