查看完整案例


收藏

下载
ECHAN DECORATION
进入这个静谧空间时下着淅淅沥沥的小雨
& 色彩的绝妙平衡 繁与简的适度平衡
这是一次凌冽的相遇
设计 / ECHAN亿城
软装 / 正梵家居
项目地址 / 兴化温泉公馆
设计时间 / 2019年
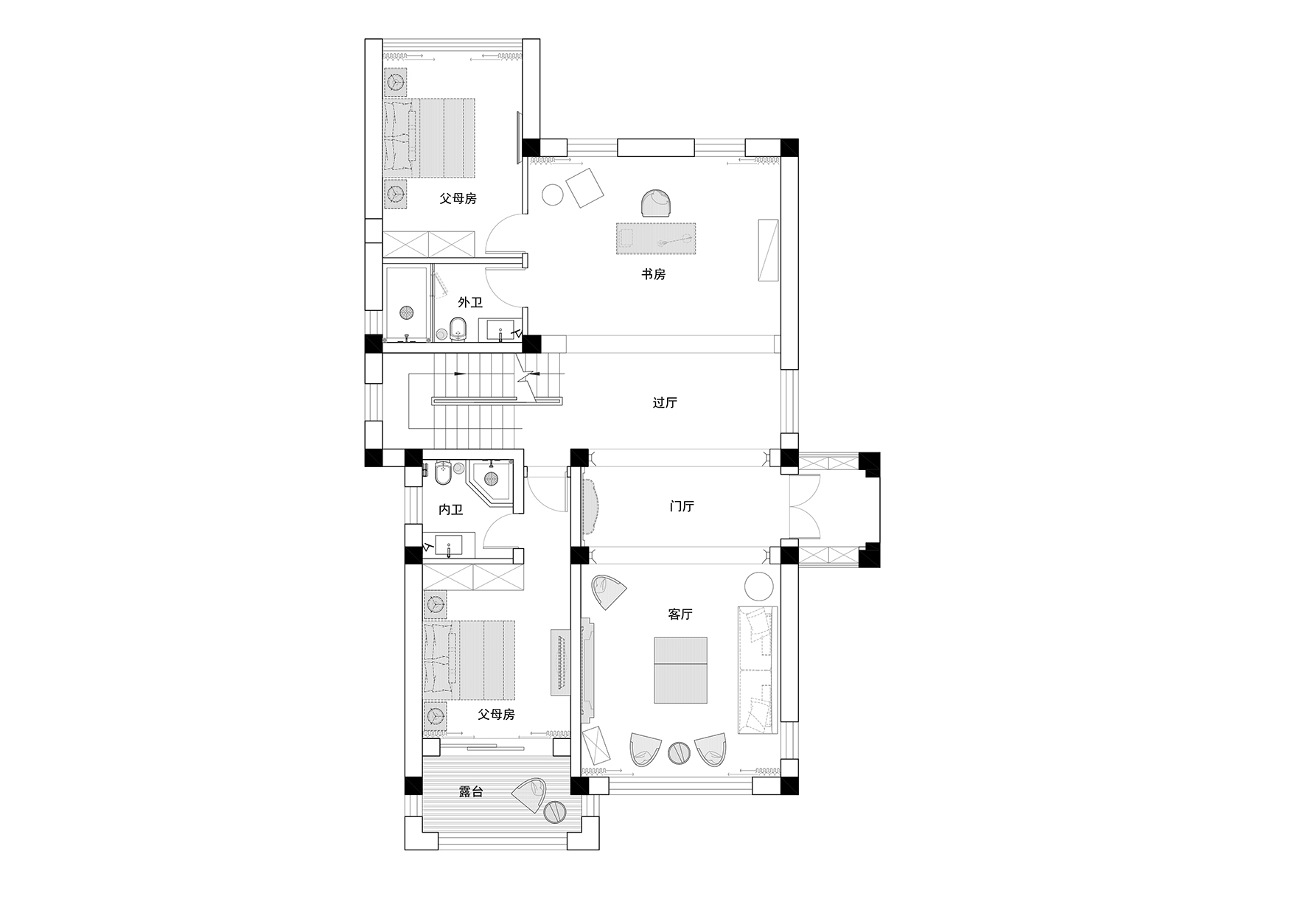
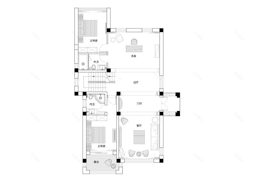
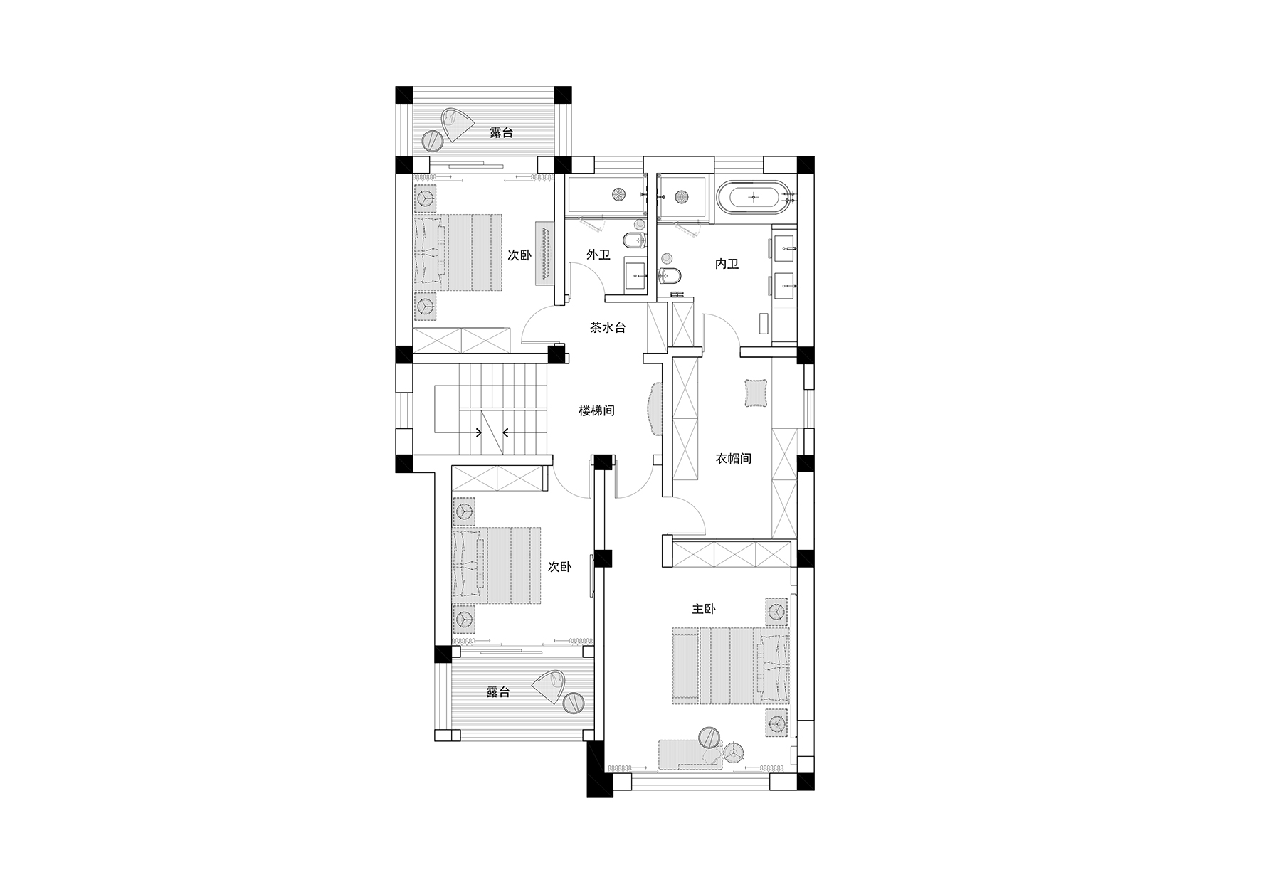
平面布置图 / Floor Plan
1F
2F
-1F
01
PHOTOGRAPH
1F
02
PHOTOGRAPH
2F
03
PHOTOGRAPH
-1F
封面
亿城装饰 | ECHAN DECORATION
在小小城市中
找寻着一点
与众不同
我们
一样
400-106-3699
客服
消息
收藏
下载
最近

































