查看完整案例


收藏

下载
说在前面
这个房子是一个婚房,前期预算不是很充足,但是业主又是颜值控,对于美感的东西还是特别的在意,希望自己的小家还是经过精心设计的,无论是功能还是美感要达到一个平衡。所以这套案子的难点就是预算跟实用还有美感的平衡,不过这套案子做完之后我们还是很欣慰的。
下面这个是装修完之后业主写的一段话“我曾经一度担心施工过程中会出现各种问题,乃至起初并不相信设计师在装潢过程中能起到的作用,但在太太的坚持下,对比了南京大大小小的工作室,看了很多设计师的作品,选择了最适合自己的,也庆幸没有选错,对我和太太来说,这样的结果甚至超越了我们对极简北欧风格的预期。
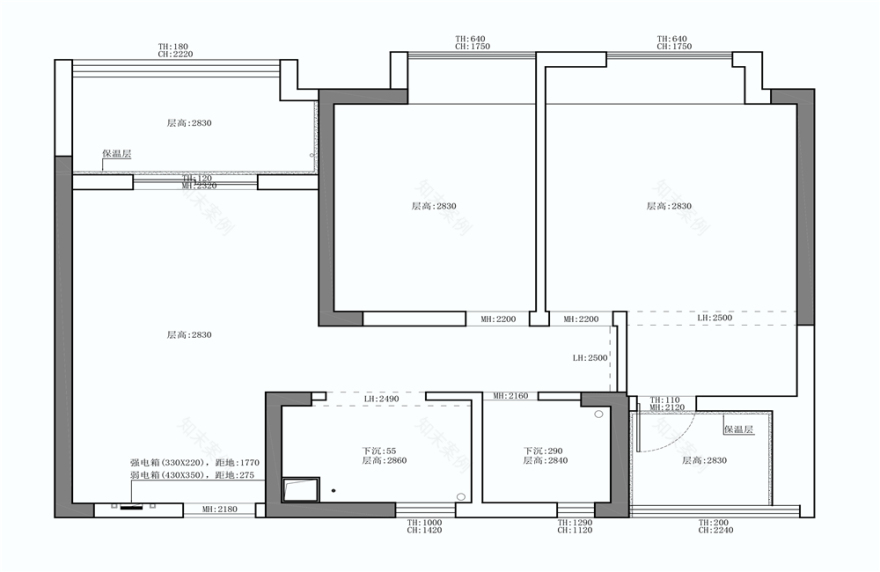
户型图
这是一个非常常规的小三房的户型 业主要求1.客餐厅的空间要更大一些。2.厨房跟卫生间特别小,但是还是希望卫生间能有一字型的淋浴房。3.冰箱、蒸箱、烤箱、烘干机都需要。4.主卧室比较大怎么能把主卧室的面积更加合理运用。5.主卧室需要衣帽间。功能上主要是有这以上这些方面的要求,其实就是风格上,业主喜欢现代风格的居家环境,但是还是希望有一些色彩或者材质上的变化。
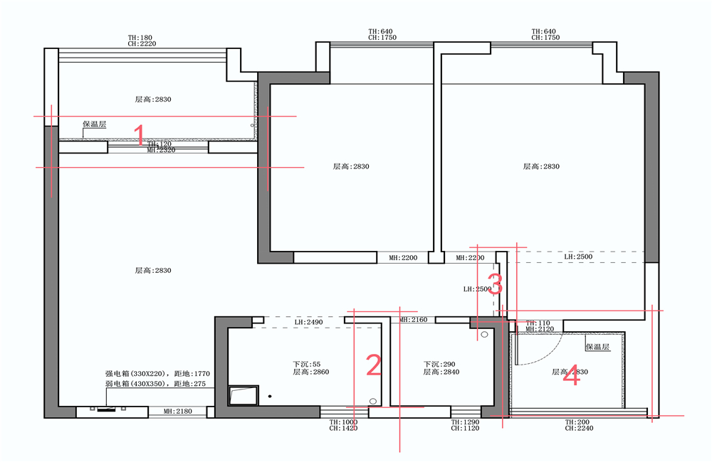
平面布置图 基于业主的要求户型做了以下几点改动 1.我们把阳台跟客厅之前移门拿掉,利用空调外机位凸出的部分,加设隔墙让这个区域形成一个宽度为70cm的凹腔,刚好可以放置一个洗衣机加烘干机。但是整个空间还是联通在一起的,客厅想比较原始结构,增大了很多。 2.将过道跟次卧室之前的24公分厚的墙敲掉,将冰箱、蒸箱、烤箱全部放于此,还有一部分的储藏柜,弥补厨房收纳空间的不足。3.因为业主的硬性要求,淋浴房必须要一字型的,所有我们将卫生间的台盆的部分伸一些到厨房,占用了20几公分的厨房面积,厨房这边形成了凹腔刚好可以将地暖的锅炉卡进去。4.利用主卧室跟次卧室之间的隔墙,我们做了双面柜子,一面是主卧室这边用,一面是次卧室来用,从立面看起来,两面也是非常的整体,充分利用空间。5.北边的墙体敲掉之后,这个空间我们做了一个步入式衣帽间的的设计,在空间外面做了4扇玻璃移门,衣柜直接是敞开的,这样便于收纳且方便找衣服。
玄关
玄关其实也就是餐厅去,但是我们做了一组高柜。
客厅
客厅原始开间是3.4米,为了增加客厅的储藏空间,我们将电视柜做成了一整面收纳柜的形式,柜门结合开放柜一起,然后在颜色上也做了分色处理,两个L型组成,让整面的柜子不至于呆板。电视可以挂在墙上,也可以放在柜子上,40公分深的柜体其实是可以很多客厅的储物问题了,比如零食,生活中的纸巾收纳,还有一些清洁用具的收纳,收纳非常强大。然后右边我们做了开放柜的设计,主要是考虑方便,生活中的随手物品都可以放到这边来,书籍、碟片等等等。。。。。
为了增加空间中的其他色彩元素,茶几我们选择了好多,最终还是决定用这款。
主灯的设计,没有用传统的明装筒灯或者射灯,在这个空间里,还是希望有一些线条的元素,那其实这个灯有三个灯头,方向都是可以变换的,光源可以根据业主不同的需求来改变。
沙发小边几,这个狮子可是业主最爱的小物件,因为业主两口子都是狮子座的。
客厅看像餐厅的角度。
摇摇椅,小乐趣所在。
餐厅
餐厅的小景,这张照片应该是最美的一张了。生活当中可能摆放的不会这么整齐,但是这里我要讲一下这个圆桌,这个是一个1米直径的圆桌,放了4把椅子,对于正常的3口之家其实这么大的餐桌的是最合适,1.35米1.5米的直径真正用起来是很不方便的,不好夹菜了,除非中间加转盘。那还有桌面材质,是大理石材质的,对于打理来说也是很方便。
厨房
厨房的布局,因为卫生间占用了一部分厨房的空间,厨房变的很小,L型的橱柜布置的时候尽量将水槽往左边布置,能腾出一些切菜的台面,好在外面有一个高柜做为补充。由于巧妙的把锅炉藏起来了,那窗户边还增加了一个吊柜。颜色用了灰色白色,干净清爽。
卫生间
改造的后的卫生间变的特别的舒适啦,很宽大的一字型的淋浴区,还做一个比较大的储物壁龛,台盆的宽度是80公分。刚刚好卡在里面,对于小空间来说每个尺寸都卡的刚刚好。
卧室
作为婚房,三室略显冗余,索性将紧挨主卧的第三个房间改造成衣帽收纳间,并利用长虹玻璃移门作为空间屏障。 同时在次卧,借助飘窗台设置写字桌,并借来部分主卧空间用作衣帽柜。
从卧室看像衣帽间的空间,四扇长虹玻璃的移门。
蓝色墙纸,橙色小牛皮床。
灯光打开之后温馨感满满啊
来自群组:
云行设计-邢芒芒
客服
消息
收藏
下载
最近


















