查看完整案例


收藏

下载
项目名称:日本-I住宅
位置:日本
设计公司:NAO
摄影师:花冈伸一
在计划的地点周围,房屋,租赁公寓,公司建筑物,工厂,集装箱存放区等杂乱无章。另外,可以假设建筑物将被隔离。在这种情况下我第一次站在计划的地点时,我感到自己不想主动向周围环境敞开大门。另外,客户也不希望采用开放式的构建方式。结果,一个主题是“内在外开”。另一个主题是“物理上和感官上都很大的空间”。这也是客户的要求。从这两个主题开始,我们以“将其关闭到外部并在内部提供很大的空间”的概念开始设计。
日本-I住宅内部实景图
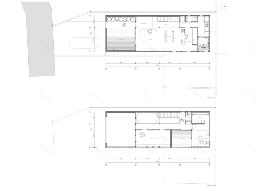
日本-I住宅平面图
日本-I住宅剖面图
客服
消息
收藏
下载
最近









