查看完整案例


收藏

下载
项目名称:葡萄牙Alto de Vila 365住宅
位置:葡萄牙
设计公司:Terra Arquitectos
设计团队:Maria Ferraz Pereira,MariaJoãoLobo,Vera dos Santos Martinho
摄影师:JoãoMorgado
这座独立式住宅被插入Foz Velha- Porto的城市建筑中,力求在其历史遗迹与当代风格之间找到平衡。从外立面延伸的特征,即根据现有的外立面保存并修复低层的外观,再到采用自己的正式语言的较高层。从墙上伸出的钢环不仅用作滴水边缘,而且还用作按时间顺序排列的结合元件。考虑到空间不足,迫切需要提高场地的建设能力,垂直增加建筑物的长度。房屋仅由一个宽大的立面组成,两侧是两个盲目的外墙和一个后墙,内部空间可能会短暂地流入一个小露台。该框架的前提立即导致了中间楼层的结构,以促进房屋的最高社交空间的上升。宽敞的天窗与悬臂式楼梯相结合,突显了这种垂直感,这似乎从一开始就吸引了用户。主要使用木材的私人空间被隐藏在这条道路上。尽管存在这种纵横交错的分布,但空间之间的交流仍然是恒定的,客厅和厨房之间的视觉关系通过中间露台得以加强,在中间露台中,钢质元素成为中心,从而建立了通往外部世界的过滤器。
葡萄牙Alto de Vila 365住宅内部实景图
葡萄牙Alto de Vila 365住宅立面图
葡萄牙Alto de Vila 365住宅剖面图
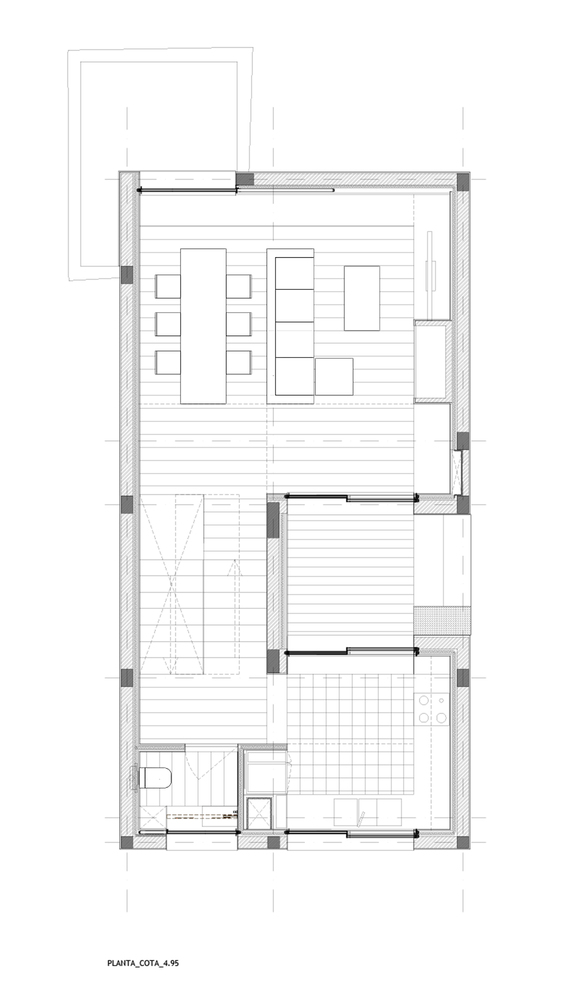
葡萄牙Alto de Vila 365住宅平面图
客服
消息
收藏
下载
最近
















