查看完整案例


收藏

下载
项目名称:瑞士Gartenstrasse住宅楼
位置:瑞士
设计公司:Durren Architekten
摄影师:马丁·维特威尔(Martin Wittwer)
这座面向年轻人和年轻人的新公寓楼靠近Sarnen市中心。它包含五个楼层的九个中小型公寓。坐落在非常狭窄的地块上,毗邻火车路线,因此需要精心设计平面图并倾斜垂直轮廓,使建筑物具有雕塑感,为公寓提供充足的自然光线并享有周围群山的壮丽景色同时让居民拥有足够的隐私权和冷静感。由混凝土地板,内部砖墙和木质外墙组成的混合建筑受益于不同材料各自的优势,并为公寓内部提供了良好的居住环境。外墙的木板上涂有特殊的颜色,其中包含精细的金属粉末,可以预见随着时间的流逝,木质表面会出现天然的银色光泽,而彩色涂料会慢慢洗掉。 凭借高度的隔热性,地热加热和太阳能电池板的使用,新公寓楼为萨尔嫩市中心的致密化做出了可持续的贡献。
瑞士Gartenstrasse住宅楼外部实景图
瑞士Gartenstrasse住宅楼内部实景图
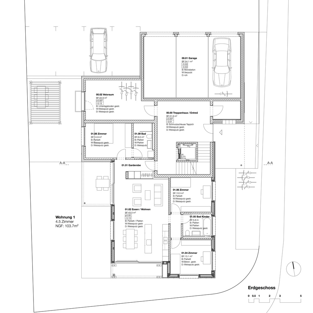
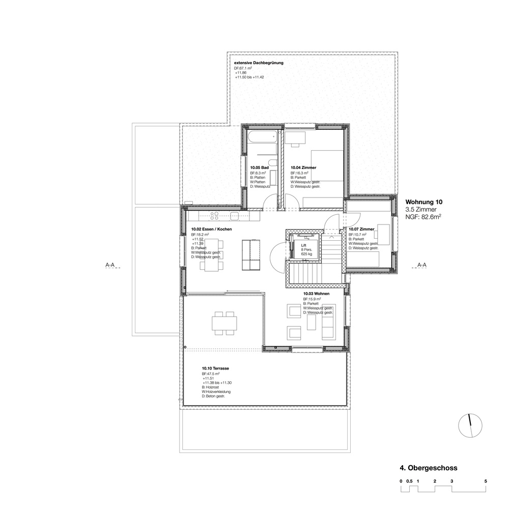
瑞士Gartenstrasse住宅楼平面图
瑞士Gartenstrasse住宅楼剖面图
瑞士Gartenstrasse住宅楼立面图
客服
消息
收藏
下载
最近






























