查看完整案例

收藏

下载
项目名称:泰国B屋
位置:泰国
建筑师:套件设计建筑师
摄影师:比尔辛诺伊
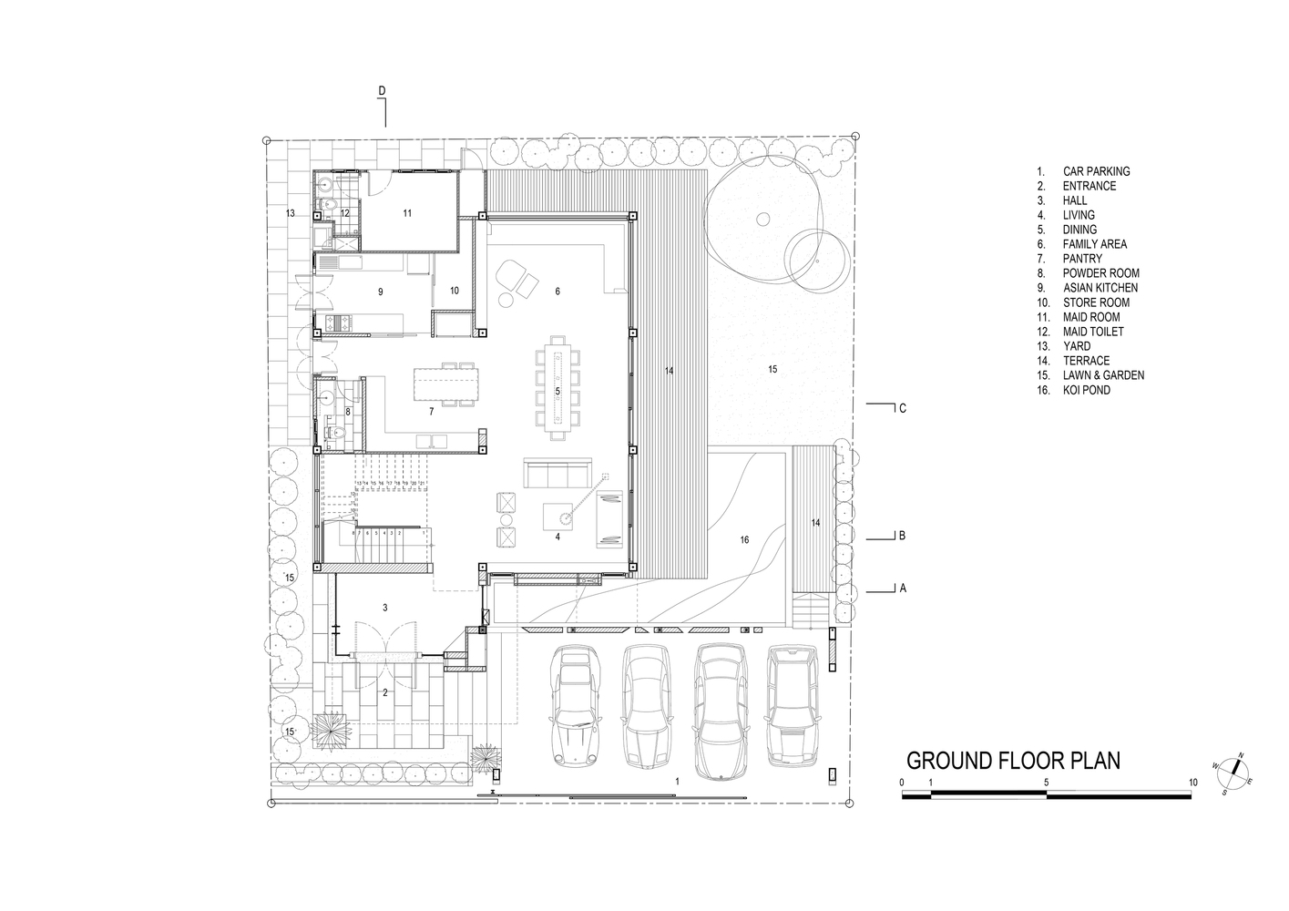
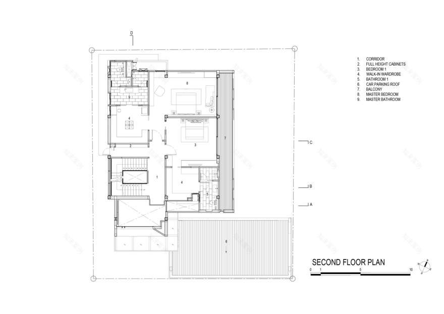
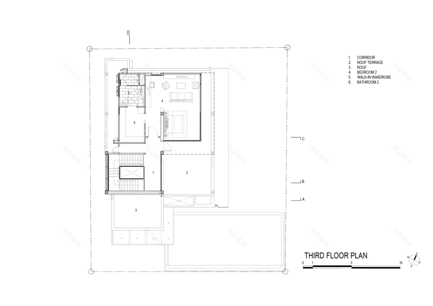
这所房子位于曼谷郊区。320平方米的土地与主要家庭住宅相邻。这所房子是为一对已婚夫妇及其子女设计的。空间规划的背景思想基于风水学,但是建筑陈述必须表达现代主义。三层楼高的建筑采用简单的盒子几何形状,并具有沿着二楼阳台滑动的木屏风的功能。木屏风被用作遮阳和隐私屏风。当您进入两倍高度的门厅区时,可以看到L形的锦鲤池,这将导致宽敞的起居,就餐和家庭空间。客厅给人以房主的感觉。空间连接到汽车门廊,正门,锦鲤池和草坪外,和楼梯,2 次地板。带有岛台的储藏室位于用餐区旁边,但位于背景中。细木工是深色木质层压板和白色大理石台面。两个无框玻璃窗让自然光进入家庭区域。建造了L形的木制海滩,为儿童游乐区创造了空间。光滑纤细的楼梯采用钢结构建造,胎面采用柚木精加工。无框玻璃栏杆营造出明亮感,并可以直通楼梯大厅和房屋。在2走廊第二地板从楼梯大厅连接,并且也与门厅的双高度体积,为了看到当客户到达。主卧室和一个共同的卧室是在2 次地板。主卧室墙饰有浅色木质层压板。主卧室与步入式衣橱相邻,有独立的干湿区域,并具有自然通风。
泰国B屋外部实景图
泰国B屋内部实景图
泰国B屋平面图
泰国B屋剖面图
泰国B屋立面图
客服
消息
收藏
下载
最近



























