查看完整案例


收藏

下载
项目名称:比利时HOEV房屋
位置:比利时
设计公司:STAM architecten
用混凝土结构建造的HOEV项目令人惊讶地开放且温暖。房子的设计考虑了家庭的未来,因为主卧室和浴室位于底楼。主要功能位于房屋的后部,因此,其位置应确保在不妨碍邻居进入的情况下获得最大的阳光照射。对于立面材料,选择了混凝土和木材以进行现代和永恒的诠释。作为可持续解决方案,建造了一座混凝土建筑的低能耗房屋。该房屋具有很高的绝缘价值,并且结构是完全气密的。主要功能位于房屋的后部,因此,其位置应确保在不妨碍邻居进入的情况下获得最大的阳光照射。对于立面材料,选择了混凝土和木材以进行现代和永恒的诠释。作为可持续解决方案,建造了一座混凝土建筑的低能耗房屋。该房屋具有很高的绝缘价值,并且结构是完全气密的。狭窄优雅的窗户以微妙的方式创造了与街道的联系,因此可以在不损害房屋私密性的前提下进行有趣的互动。此外,开放式计划在房屋内的不同区域之间建立了很多联系。家具作品完美地融入了建筑,而空隙则使空间变得引人入胜且流畅。
比利时HOEV房屋外部实景图
比利时HOEV房屋内部实景图
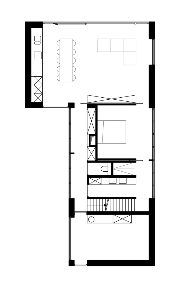
比利时HOEV房屋平面图
比利时HOEV房屋剖面图
比利时HOEV房屋立面图
客服
消息
收藏
下载
最近



























