查看完整案例


收藏

下载
项目名称:智利Parque Arboleda住宅小区
位置:智利
设计公司:Izquierdo Lehmann
该项目由一套住宅建筑和房屋组成,位于4公顷的绳索上。地面上方的建筑表面集中在该物业的东西边界,使得从其周边街道直接进入建筑物。因此,土地的中心没有建筑,没有任何街道可以穿过。这使我们可以在中心建造一个平坦的公园。该公园由景观设计师胡安·格里姆(Juan Grimm)设计,在草地上包括落叶和多年生树种,例如智利橡子,东方飞机和默特尔绉纱。该项目包括:-一组28座房屋,位于土地的上部,由7个正方形的块组成,每块包括4个在地面层成“ L”字形的露台房子,每层两层,一个绿色的屋顶。这些房屋的屋顶与地形相连,成为公园的一部分,可作为游客的通道。业主的停车场和入口位于房屋的较低楼层,您还可以从那里参观娱乐区。该区域位于房屋和公寓楼之间,在两个覆盖整个花园的绿色露台下。这些露台上方是一栋6层楼的独立建筑,共有12套公寓。
-一套206套公寓,分布在约150 m的2栋建筑中。每个建筑都长,没有接缝,有7个建筑地板,高出地面2层。这些建筑物的形状是连续的内部13米长条形,没有柱子或结构墙,每隔380厘米沿其整个周边以刚性框架支撑。这种结构的剖面和立面排放成“ Y”形的圆柱,位于公园楼层的两个免费建筑底漆地板上,并允许每760cm到达2个由圆柱调节的地下地板。相当于3个停车场。该条以锯齿形折断,并在断裂处形成建筑物的垂直循环,并且仅包含接触地面的墙壁。这些由锯齿形设计在平面上形成的折痕使建筑物在水平方向上变得僵硬,在公园内创造出独特的空间,并且一眼就能看到建筑物的整体视野。根据客户要求的尺寸和围护要求,将公寓布置在此自由楼层上。-4层高的基座建筑,是该建筑的住所。该建筑位于地面底部,地面平坦,可独立进入。
在这个广场下,有一层地下停车场,因此可以独立于项目的其余部分配置出入和使用区域。该项目是按照一系列可种植和步行的大型平坦露台开发的,该露台在自然地形的水平下建有公园。建筑物位于自然高度的下方和上方,但从未位于同一楼层。屋顶在住宅公园公园的水平。该建筑到达地面,到达位于地面底部的具有独立通道的平坦广场。在这个广场下,有一层地下停车场,因此可以独立于项目的其余部分配置出入和使用区域。该项目是按照一系列可种植和步行的大型平坦露台开发的,该露台在自然地形的水平下建有公园。建筑物位于自然高度的下方和上方,但从未位于同一楼层。
智利Parque Arboleda住宅小区外部实景图
智利Parque Arboleda住宅小区内部实景图
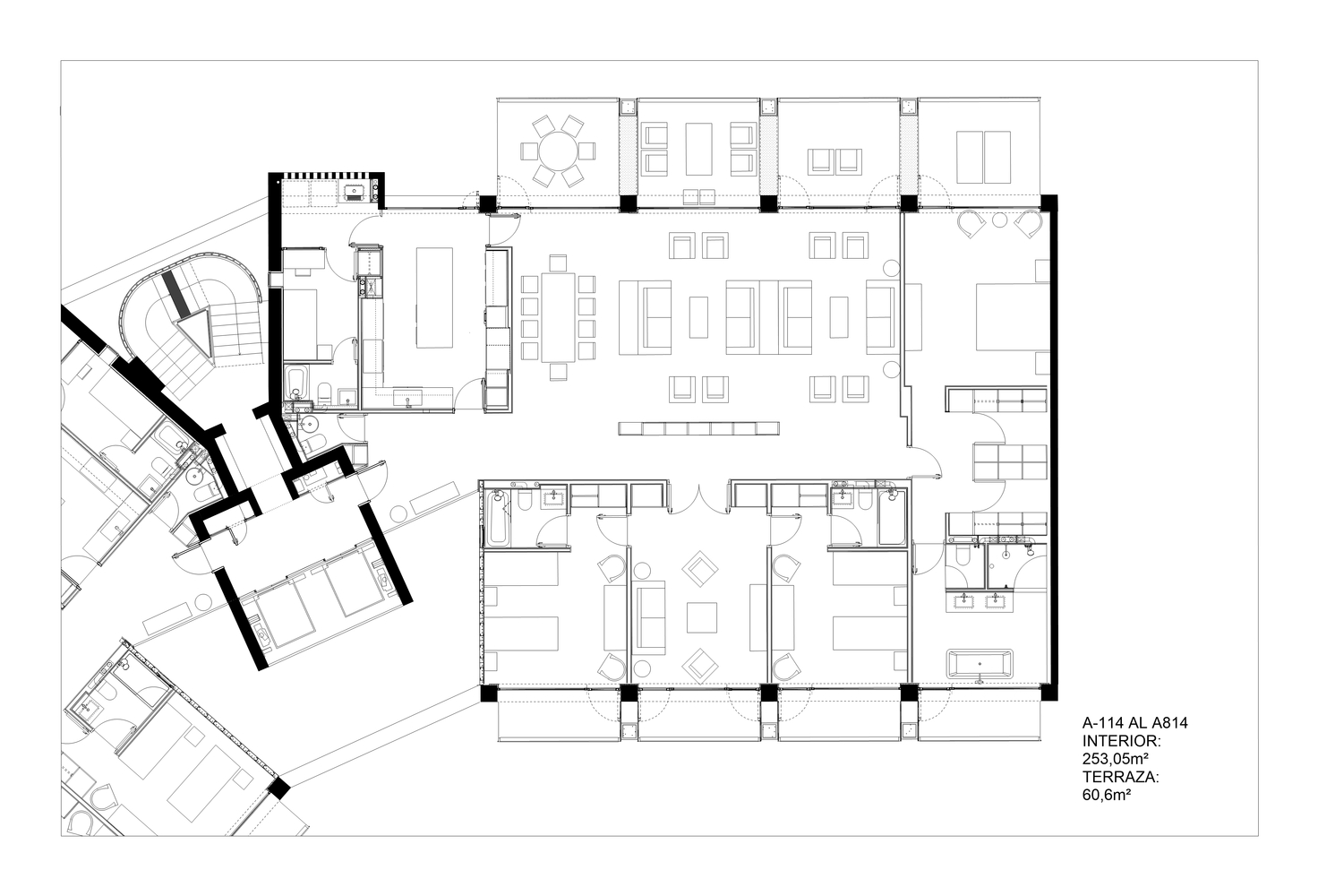
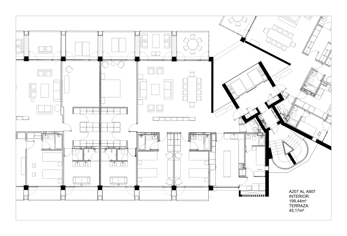
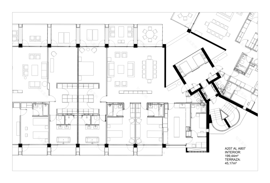
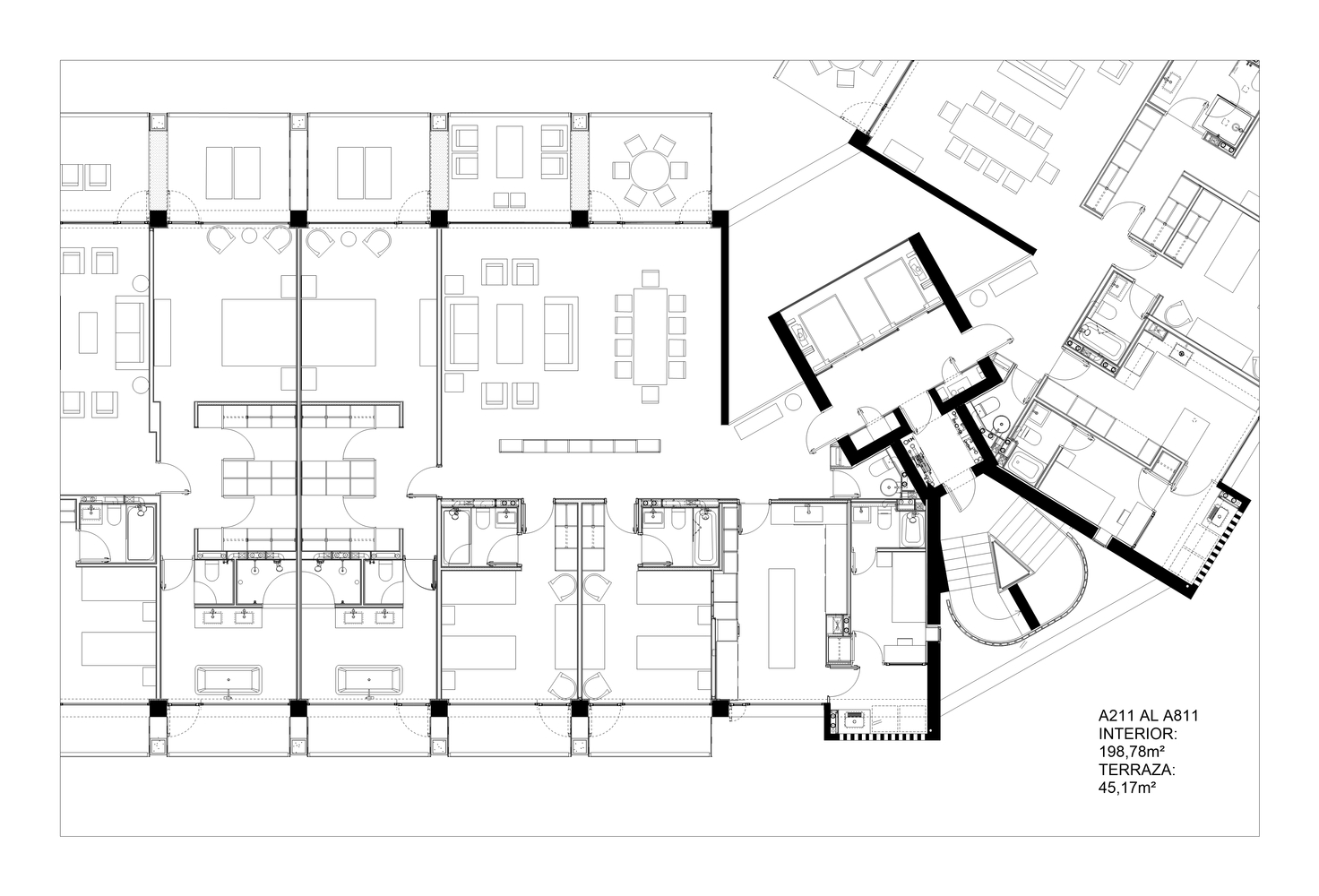
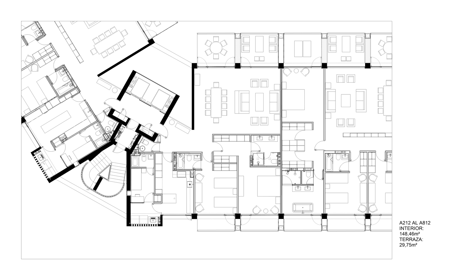
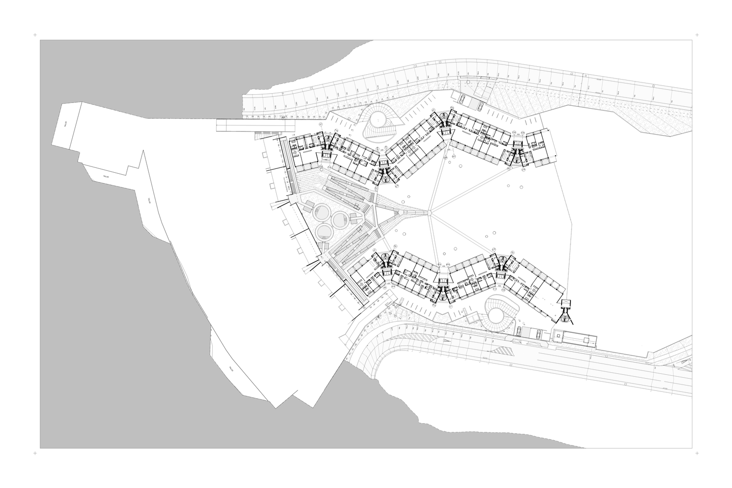
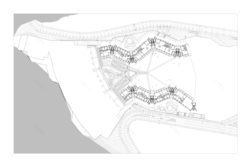
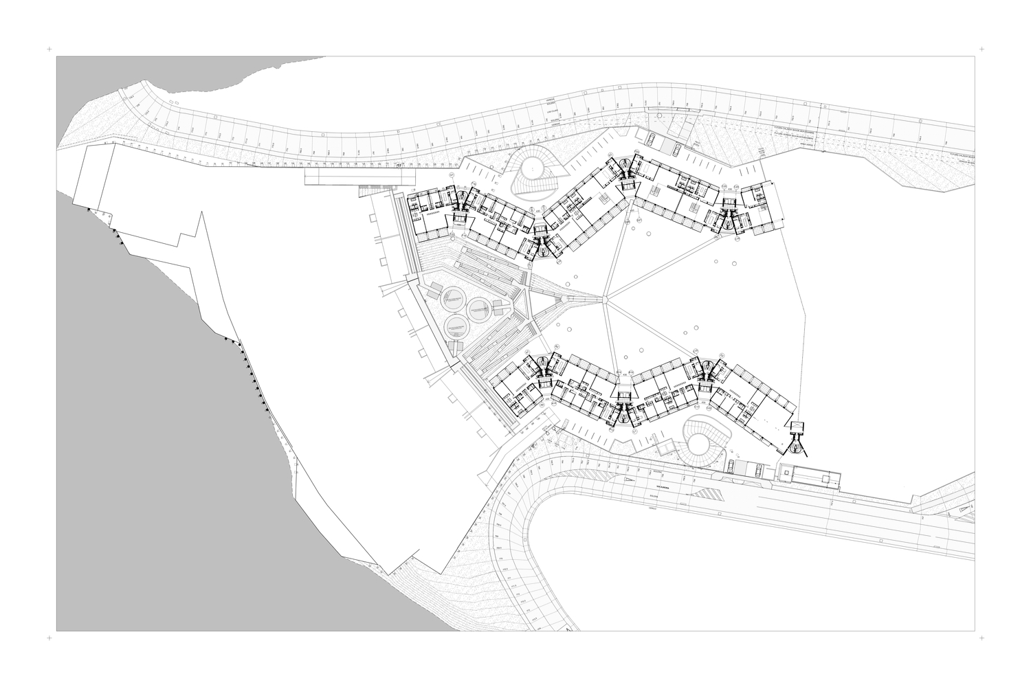
智利Parque Arboleda住宅小区平面图
PLANTA_PISO_3
智利Parque Arboleda住宅小区立面图
客服
消息
收藏
下载
最近








































