查看完整案例


收藏

下载
项目名称:阿根廷AER La Pampa住宅
位置:阿根廷
设计公司:Cubero Rubio
AER La Pampa项目位于Donado Holmberg线性公园的Villa Urquiza街区,周围是异质城市景观,这是快速发展的环境和当前类别开发的结果-AER La Pampa项目是一栋中等密度的住宅建筑。它距传统的Belgrano R街区仅几步之遥,Belgrano R街区是高质量的住宅区,与大型绿地相接。它由两个体积组成,四个体积与零水平相分离,彼此相对,并通过半隐蔽的走道相互连通,从而使该建筑体具有前卫的设计和出色的发光度。它的实现不仅允许利用环境和土地的优点,而且还可以产生公寓大楼通常不存在的情况。这些公寓与主要房间直接相关,具有较大的扩展空间,并具有良好的照明和通风条件。
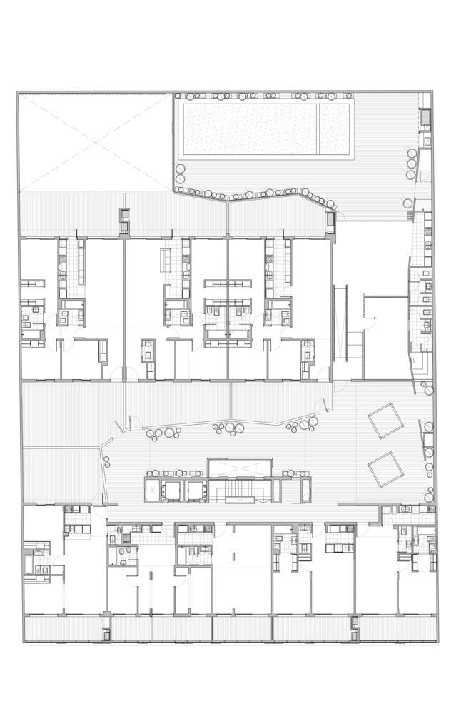
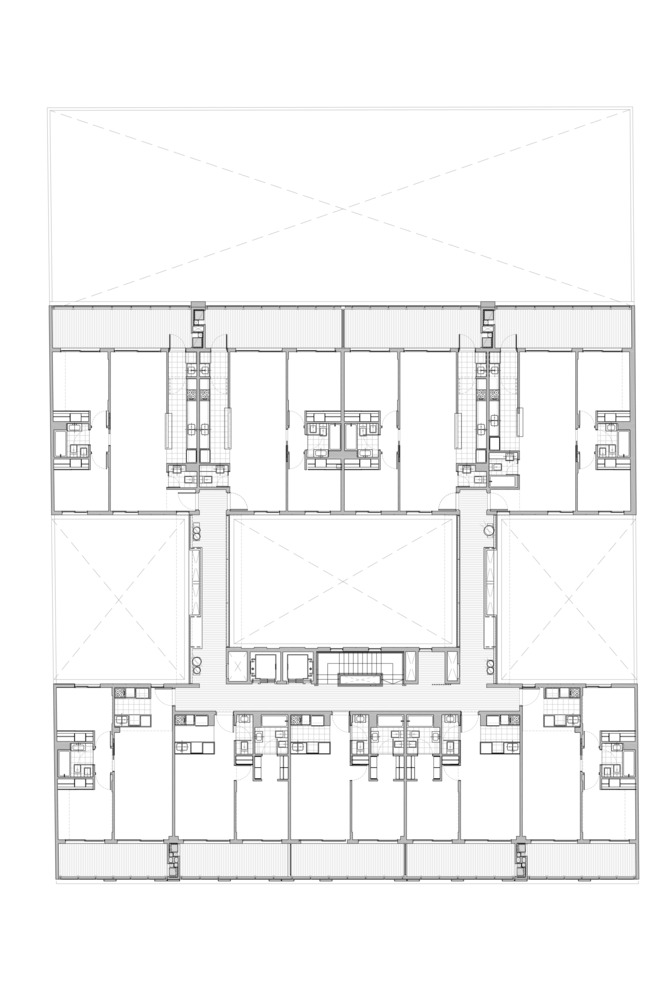
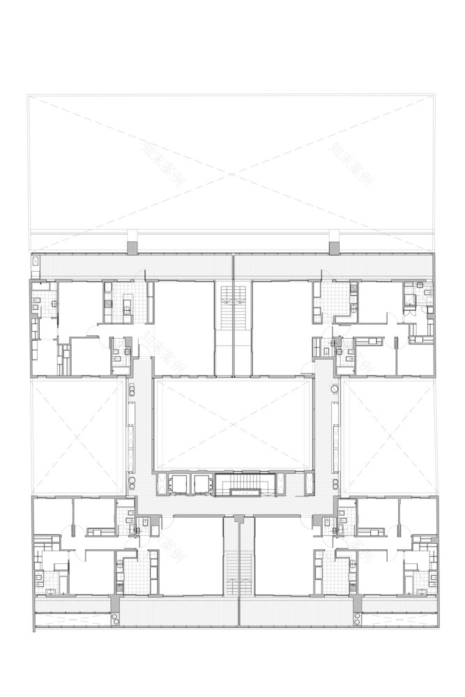
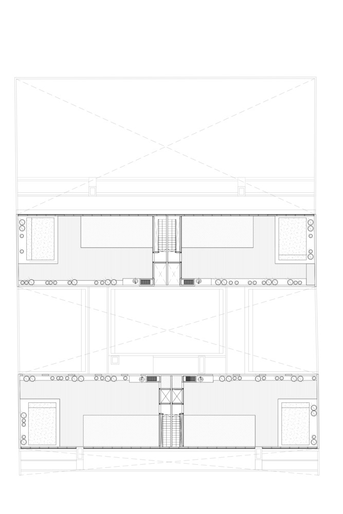
每个块都由以下部分组成:四层,用于容纳住房计划,共有29个单元,1、2、3和4个房间;和自己的带游泳池和花园的露台。底楼有40个有盖车库,有3个未发现。以及通往街道的商业场所,将全部具有步行和车辆通道。一楼是建筑物的常用区域-男孩的游乐场,健身房,桑拿浴室,更衣室,带烧烤架的SUM,成人和儿童的室外温水游泳池,日光浴室。整个建筑群由一个构成“城市空间”的中央露台和两个侧面露台组成,并由人行道的循环系统交叉和雕刻。这个空间在组织访问房屋的系统时,压缩了两个块之间的间隔。每个部门都有一个独特的个人收入,通过半覆盖的桥给人以俯瞰公共空间的感觉,这在一种与城市的日常生活截然不同的氛围中产生了生活感,同时提供了独特的身份。阳台和露台是所有单元的增值功能,具有宽敞的比例和现代材料。
主立面是由“ Acero Corten”材料制成的设计,再加上阳台的玻璃栏杆和通道的体积,谈到了作品与城市空间之间的虚拟边界关系,从而在单位中产生了隐私。这是一种用化学成分制成的钢,这种钢的氧化具有某些特殊的特性,可以保护用这种材料制成的零件免受大气腐蚀,而又不会失去其机械特性。钢材的氧化要在六个月的时间内进行,然后及时进行抵抗,以提供适合该场所动态的光洁度。
阿根廷AER La Pampa住宅外部实景图
阿根廷AER La Pampa住宅外部夜景实景图
阿根廷AER La Pampa住宅内部实景图
阿根廷AER La Pampa住宅平面图
客服
消息
收藏
下载
最近




























