查看完整案例


收藏

下载
项目名称:美国住宅塔楼
位置:美国
设计公司:Hill West Architects
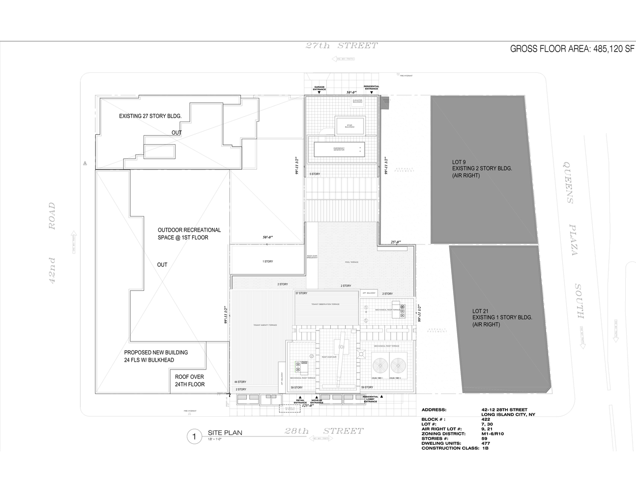
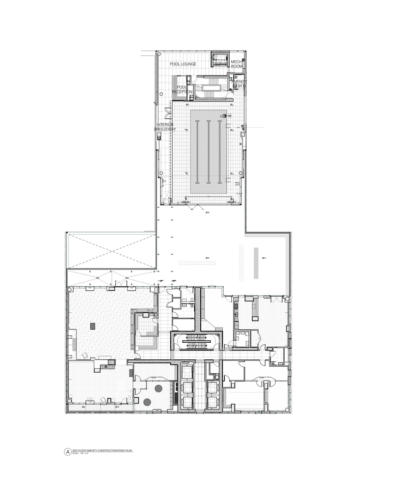
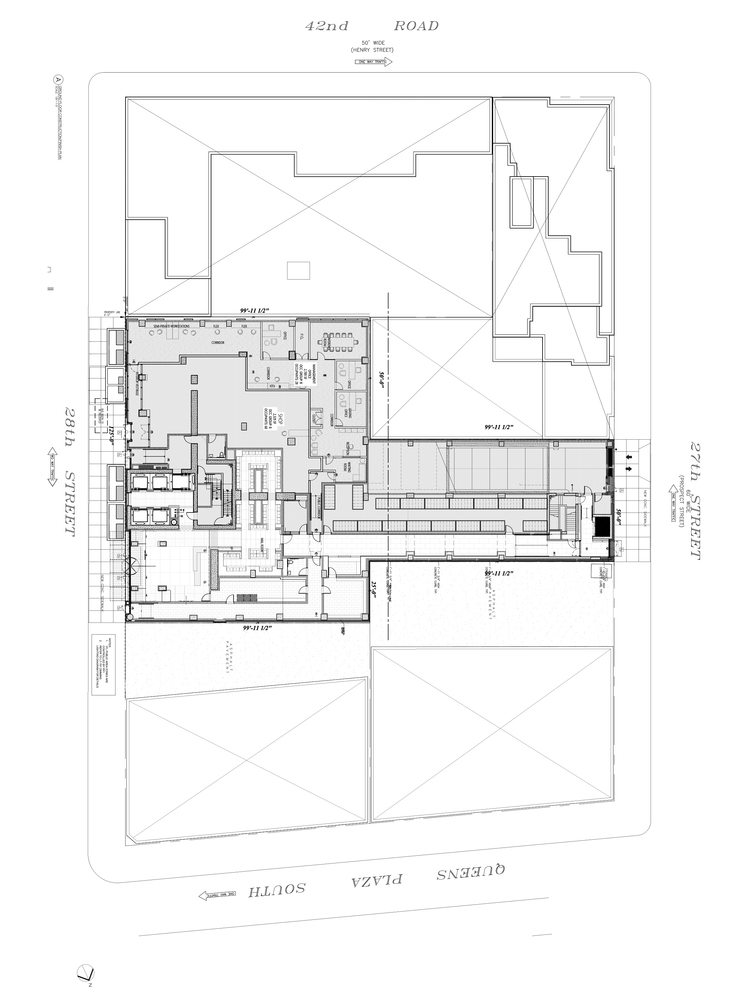
长岛市的28住宅大楼由Hill West Architects和Whitehall Interiors设计,是皇后区最高的住宅楼之一。这座57层高的租赁住宅由两个相连的区域组成:位于28街的塔楼,包括451个住宅单元;以及位于27街的稍小建筑,专门用于容纳设施,包括游泳池、健身中心、水疗中心、桑拿浴室和瑜伽室。两个部分通过带顶开放式天桥在二层连接,共用一个多功能的屋顶平台。平台设置了Nanawall系统,使得平台可以在夏季向游泳池开放。塔楼的整体被分解为小体量,以强化一个细长的体量表达。彩釉玻璃和带有多种不同颜色和图案的多孔玻璃面板相结合,创造出建筑体量以滑移、动态的方式向上移动的形象,位于大厦58层的观景平台享有令人惊叹的曼哈顿东部的天际线景色。Hill West与Whitehall一直致力于在蓬勃发展的社区中创造最具影响力的住宅建筑,在这一领域占据领先地位;两者的合作创造了玻璃美学,并为规模和高度树立了新的先例。
美国住宅塔楼外部实景图
美国住宅塔楼外部夜景实景图
美国住宅塔楼内部实景图
美国住宅塔楼平面图
美国住宅塔楼立面图
美国住宅塔楼剖面图
客服
消息
收藏
下载
最近


















