查看完整案例


收藏

下载
项目名称:泰国Baan Nonthaburi住宅扩建
位置:泰国
设计公司:Plan Architect
摄影师:Chitsanupong Ploythanachot
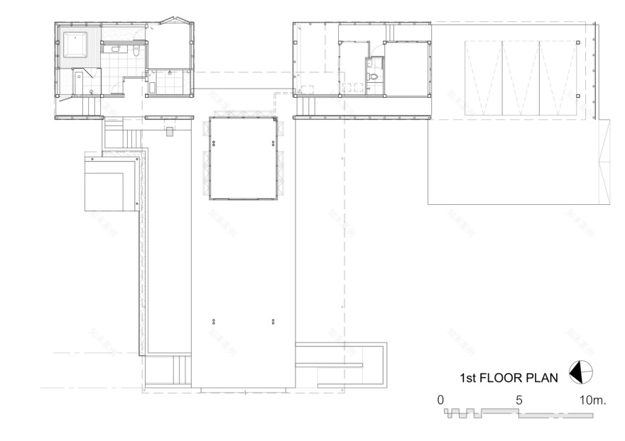
该建筑是在现有住宅基础上的扩建,其主要作为体育场馆,包括游泳池、健身、桑拿、浴室、室外淋浴、服务区和停车场。建筑的布局被设计为与原住宅的中心庭院相连。泳池边上的木质平台与现有的庭院平齐并在平台末端设有健身房。左边的功能空间被设计在场地边缘的另一侧轴线上,不仅最大化了泳池平台的视野,还将功能空间与周围的自然融为一体。健身房后的另一个庭院分隔了抽水马桶区和服务区,也使得健身房融入景观之中。考虑到泰国的热带气候,泳池平台还需要大型屋顶来遮挡雨水和阳光。柱子之间需要安装玻璃墙体来保证平台的全景视野。主要的材料是板条,让部分自然光能够通过缝隙,营造出一种自然与住宅融为一体的感觉。屋檐也是半透明的设计,使得自然光能够穿过板条天花板,营造出过渡空间。这些特点彰显了建筑的简约性,营造出建筑与周围建筑及自然的融合感。
泰国Baan Nonthaburi住宅扩建外部实景图
泰国Baan Nonthaburi住宅扩建外部夜景实景图
泰国Baan Nonthaburi住宅扩建内部实景图
泰国Baan Nonthaburi住宅扩建平面图
泰国Baan Nonthaburi住宅扩建剖面图
泰国Baan Nonthaburi住宅扩建立面图
客服
消息
收藏
下载
最近


















