查看完整案例

收藏

下载
项目名称:美国杉树与石小屋
位置:美国
设计公司:Mago Architecture
杉树与石小屋位于纽约格林县,始建于1800年。它位于哈德逊河沿岸的卡茨基尔山脉。该地区拥有着丰富的农业历史——卡茨基尔村曾经是一个大型粮食市场,在宜里运河建设之前,纽约州西部的大部分商业活动都要途径格林县。如今,这里的经济主要依赖旅游业和大量的夏、冬季游客。在被完全清理、开发与建造度假小屋之前,这片未曾被触及的约50英亩(0.2平方千米)土地被私人收购。为了与该地区的乡村环境和农业历史保持一致,大部分的场地仍然保留着未经开发的林地,保护了该地区的现有生态,并支撑着当地的狩猎产业。为了鼓励小型私人产业的发展,已经被清理过的区域将被重新利用,成为以苹果园和玉米田为主的农业用地,作为小型农场运营。这片土地宽敞、私密,清理过的区域被小心地隐藏在靠近高速公路的密集树林之后。旅馆则坐落在沿地区北部边缘延伸的山丘一侧。它的选址出于清晰观景的需要:周围的群山,尤其是南部的滑雪场。房屋设计采用了农舍典型的谷仓风格。建筑底部由与整个建筑内的相同青石建造而成,并将建筑固定在周围环境中。垂直的杉树壁板与周围树木的垂直度相协。
巨大的垂直窗户为整个结构提供了漂浮、空灵的感觉。山丘以南几英亩的地区已经清理完毕,可以欣赏小苹果园、玉米田和钓鱼池的景色。天然生成的巨大青石在清理过后被留在了田地里,以反映结构之重,并整个与场地结合。内部装饰经过了精心安排以充分利用场地特点。客厅的双层高天花板有宽大的窗户和充足的光线,并能由此一览无余地欣赏到周围景色。东侧的窄垂直窗户与相邻的树木线条相互呼应。整个房屋的窗户都经过了精心定位,以保持与外部的流畅连接。走进建筑,人们也走进了一系列线性排布的窗户中间:通往露台的窗户,坐落在楼梯底部的通高窗户,和一个中央上方的天窗。谷仓风格的元素贯穿了整个建筑:内部的沉重木材装饰线条,青石壁炉侧的木梁,和像曹棚一样悬挂在主要生活场所上方的主卧室。在谷仓门中间的大窗户前,人们可以俯瞰起居室,也可以远眺整片场地。
美国杉树与石小屋外部实景图
美国杉树与石小屋外部夜景实景图
美国杉树与石小屋内部实景图
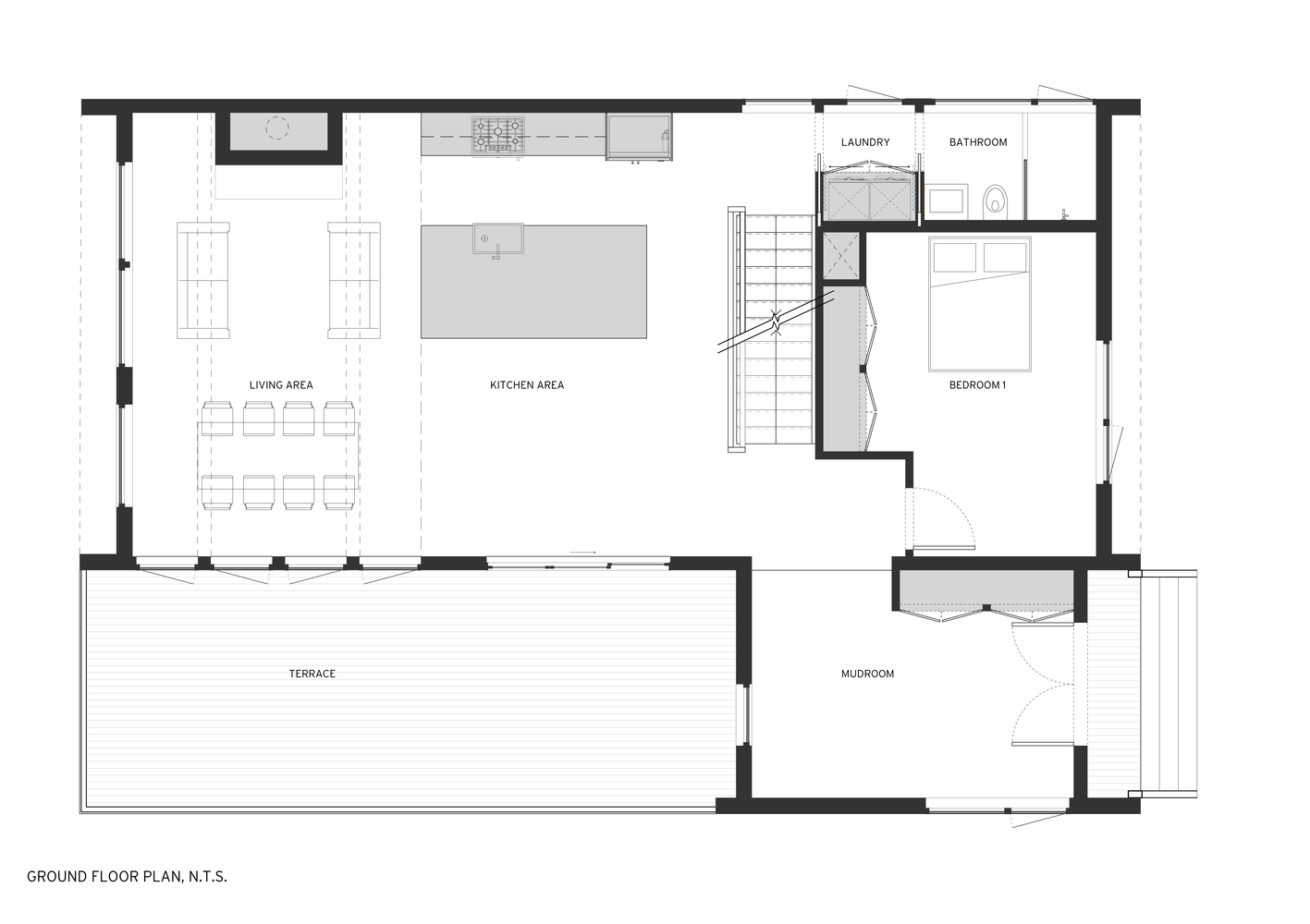
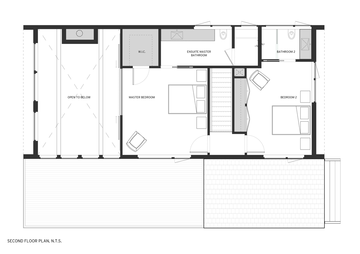
美国杉树与石小屋平面图
客服
消息
收藏
下载
最近


















