查看完整案例


收藏

下载
项目名称:美国Rothe Amundson 住宅
位置:美国
设计公司:Salmela Architect
摄影师:Paul Crosby
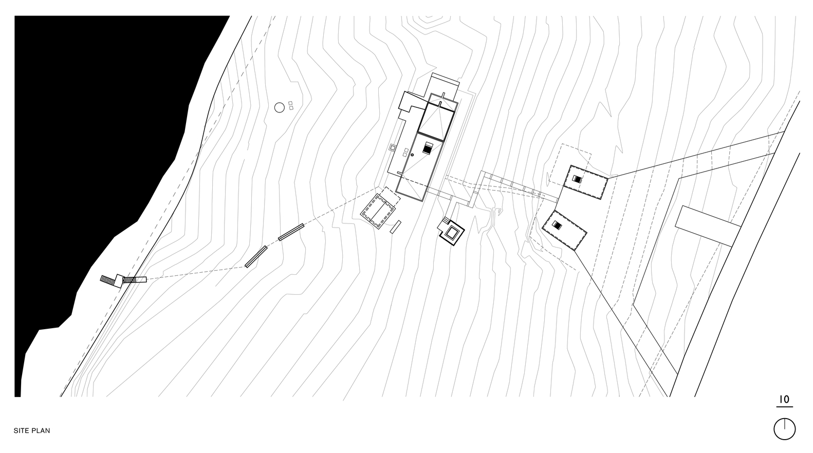
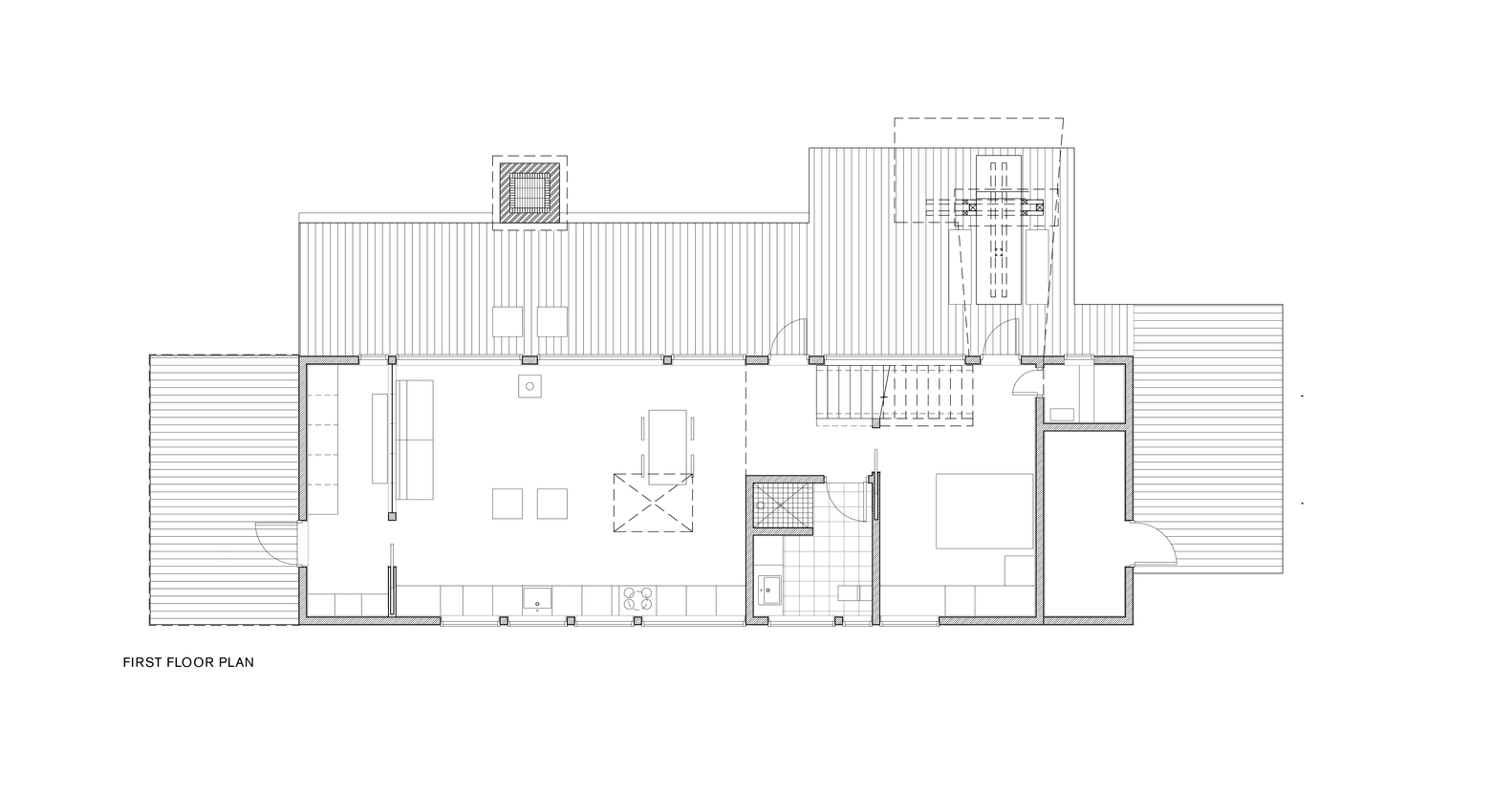
本项目的两间新建的外屋形成了一道通往场地的入口,同时限定出了一条下山的通道,通向场地中的一系列建筑。场地左边是一间玻璃屋顶、立面由雪松木板搭建的屋外厕所兼户外淋浴房。再往下走,主建筑入口门廊的悬挑屋顶与一旁修复后的老木屋相互呼应,两者只有几步之遥。以上这三个入口要素(外屋、淋浴房与悬挑屋顶)在设计中受到了同等重要的对待。这反过来又营造了一种独特的,新旧建筑之间的时间对比,同时衬托了这些建筑物之间的功能关系。进入木屋,前厅有一个带隔断的宽阔的落地窗,引向建筑的主要区域——主生活空间。主生活空间与屋后朝向湖畔的露天平台相连,这里还有充裕的窗户视野可以看到山上的景色。一扇天窗提供了一个第三方向的光源和交叉通风口。
生活空间里有一张定制的沙发、餐厅桌椅和红色楼梯,楼梯通往楼上楼下的卧室并将其分隔。一层有一间连接到露天平台的桑拿浴室,上层有一块呈不对称结构的的高架支撑楼板。建筑室内墙壁和天花板都采用的是当地加工的白杨木,而可加热地板用的是天然的黑色石板。室外表皮由黑色 Richlite 材料(一种向压缩再生纸灌注苯酚树脂制成的人工合成材料,又称“合成乌木”)和天然的陈年雪松组成。该项目既是一个整体,也是一个半成品。业主 Peter 和 Gail 是半退休的医生,他们对土地修复充满热情,对设计有着强烈的好奇心,并且愿意参与设计过程。他们买下了这块几十年前就已被砍伐的土地,目的是把它恢复到当地原生态的白松林状态。他们一直在记录和帮助本地植物的生长壮大,致力于从入侵的植物物种中恢复这片场地。当他们聘请我们来帮助实现愿景时,Peter 已经修复了一个现有的原木桑拿浴室,并把它改造成了一个小屋。
我们的目标是提供一个充满阳光的避世之所,同时把维护成本控制在最小,以适应现有的结构配置,以便让客户有尽可能多的时间来追求他们的志趣。项目中一个特别重要的贡献来自我们客户的建议:使用装满了砾石的木盒作为梯级,来铺设从车库通往山下主建筑群的台阶。该项目的目标和最终结果是抓住客户对设计的兴趣、对文脉的保护心切、对环境可持续发展的愿景,并创造一个充满阳光的舒适的场所。
美国Rothe Amundson 住宅外部实景图
美国Rothe Amundson 住宅内部实景图
美国Rothe Amundson
住宅平面图
美国Rothe Amundson 住宅平面图
美国Rothe Amundson 住宅立面图
客服
消息
收藏
下载
最近
























