查看完整案例


收藏

下载

翻译
Gow Hastings Architects designed the Welland Student Commons as a gathering space for socialization and studying at Niagara College in Welland, Canada.
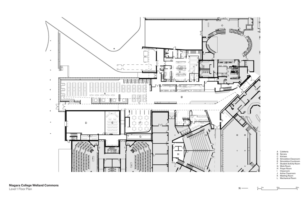
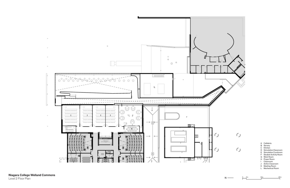
Surrounded by the natural beauty of Ontario’s escarpment, Niagara College Canada is a rural community college focused on applied arts and technology. Gow Hastings Architects were asked to augment the college’s 1970s-era Welland Campus by creating a Student Commons — a 35,000 sf two-storey hub with enhanced amenities that establishes a welcoming heart for the student community. The double-height addition breathes life into the campus with new classrooms, a new welcome centre, a food court and retail space, a student activity room, and spaces for learning, study, and collaboration. The project also includes a new, north-facing entrance, a bold wayfinding/branding program, and extensive glazing that enables natural light and external views to uplift the daily student experience.
As the Student Commons is only one of two dedicated student spaces on campus, the team created a design which encourages varied experiences and social interaction — a key factor contributing to health and well-being. Central to the space are super-scaled LED monitors and a gas fireplace that give the space the feeling of home. According to Ryan Huckla, Executive Vice President of Niagara College’s Student Administrative Council, “The new Student Commons has enhanced the student experience and improved the campus for all of us here at Niagara College. It is a warm, welcoming environment for students to relax, enjoy a bite, socialize, and create lifelong friendships.”
Playful details reinvigorate the campus’ visual identity, including customdesigned pendant lights shaped like X’s and O’s, whimsical circular LED lights that break up the ceiling, and large-scale supergraphics that are visible from inside and outside the building. The oversized lettering, chevrons, and dots applied to the Commons’ fully glazed expanse give the college an instantly recognizable brand.
Throughout the space, tinted green glass partitions and inset dark porcelain tiles define the seating areas, creating niches suited to both studying and socializing while also offering privacy. Durable and modern seating options include Corian furniture and back-lit oak benches that appear to float above the floor. Moving through the hall, an event space communicates with the rest of the commons via oversized white pivot doors, reminiscent of an open-air cafe. Blue felt acoustics panels above the pivot doors inlaid with ultra-thin diagonal integrated LED lights add a rich sculptural quality that demarcates the gathering space. Wood paneled walls and ceilings also absorb sound while adding a natural, biophilic element. High above the food hall, a stream of clerestory mirrors reflect daylight into the soaring, spacious corridor, ensuring the space is bright and airy all year round. High curtain-wall glazing and floor-to-ceiling windows, combined with mirror finishing, create meaningful connections to the landscape.
On the exterior, the lantern-like addition is carefully sited to provide easy links to transit and student services, while providing the college with an alternative entrance and clear drop-off zone. A tall soffit canopy clad in cedar spills into the building, acting as passive wayfinding. Iron spot brick adds warmth and anchors the entry corridor to the main student space. Floor-to-ceiling curtain wall glazing draws daylight inside and creates views to the outdoors, while also giving passerby glimpses of student activity within. Curved, perforated metal panels are a welcoming gesture that also hide the campus’ main shipping and receiving zone. The panels read ‘Niagara College Canada’ and provide a bold backdrop for the new exterior plaza, giving all students and visitors a sense of place and point of pride.
Architect: Gow Hastings Architects
Design Team: Phillip Hastings, Valerie Gow, Jim Burkitt, Hugo Martins, Franz Greenwood, Allan Banina, Stephen Wenzel
Photography: Scott Norsworthy
18 Images | expand images for additional detail
客服
消息
收藏
下载
最近




















