查看完整案例

收藏

下载

翻译
Bourke and Bouteloup Architects designed a space where learning happens by doing at the Deakin University School of Medicine, Optometry Clinic in Waurn Ponds, Australia.
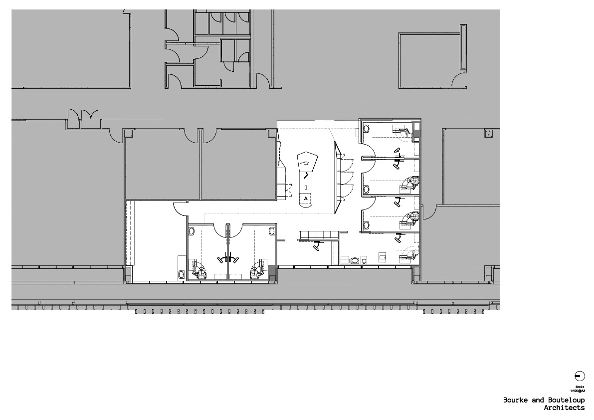
The new Deakin University School of Medicine, Optometry Clinic at Deakin’s Waurn Ponds campus combines learning with an accredited optometry practice. The facility provides an alternative model of education where optometry students are able to learn within a real world environment and interact with patients.
The project features a centralized learning zone with a retail display area, six clinical consultation spaces, a Clinical Discussion Room for students and supervisors, and a Clinical Research Room.
The walls and ceiling of the main display area are clad with bamboo panels, tying the design with the adjacent foyer as an extension of the public space. The panels are perforated with an array of circles of varying sizes, referencing the Ishihara test and defining the space. Services including lights and sprinklers are integrated into the perforation pattern creating a warm envelope as an entry to this health education facility.
Architect: Bourke and Bouteloup Architects
Photography: Tom Ross
11 Images | expand images for additional detail
客服
消息
收藏
下载
最近













