查看完整案例


收藏

下载
Chile Maiten housing
设计方:Cristian Hrdalo
位置:智利
分类:居住建筑
内容:实景照片
图片:31张
摄影师:Guy Wenborne, Cristian Hrdalo
这是由Cristian Hrdalo设计的Maiten住宅。这是一座乡村度假别墅,位于智利南部地区的奥克泰港附近。该项目区位优越,坐落于Llanquihue湖边,可俯瞰Puntiagudo、Osorno以及Calbuco等火山。场地的绿化在越靠近湖泊的方向则越狭窄,两边茂密的森林形成了明显的边界,湖边还有一道沙滩。
客户是一户大家庭,有8个子女及12个子孙。建筑师的方案是将功能划分成几个较小的房屋,赋予子女家庭或宾客以独立性,而Maitén住宅被视为宾客房屋的共享空间,并设有一间主卧室以及三间儿童卧室。该住宅的共享空间布置在面湖第一线,而房屋则布置在后方区域,并将中央的共享空间设计成两层通高,其通透性保证了住宅后方区域的面湖可视性。
译者:筑龙网艾比
From the architect. Maitén House is a country holiday house located on the southern region of Chile near Puerto Octay city. On the shores of the Llanquihue Lake, overlooking the Puntiagudo, Osorno and Calbuco volcanoes This plot of green pastures becomes narrower while descending towards the lake, bounded between two streams with impenetrable forests of Ulmos, with a beach at the lake shore.The clients have a very big family, 8 children’s and 12 grandchildren’s, our proposal was to fragment the program into several smaller cabins, giving independence to the families of the sons or guests and then the Maitén House was conceived as a common space to shelter the guest of the cabins and with a master bedroom and 3 rooms for single children’s.
The position of the house in the first row to the lake left to common areas and cabins in a rear area, which is why it was designed taking all private areas towards the ends, leaving a double height with the common areas in the center giving a transparency to the back of the house. This connection to this “Back” is enhanced by burying the first floor, access, parking and services.Materiality of local agricultural buildings present in the region , with solid skirting, wooden facades ajar ventilate and illuminate , metal roofs that eventually oxidized blend in with autumn woods and sunsets. Materials which in Maiten House are being reinterpreted to work in harmony with the landscape.
智利Maiten住宅外部实景图
智利Maiten住宅外部夜景实景图
智利Maiten住宅内部实景图
智利Maiten
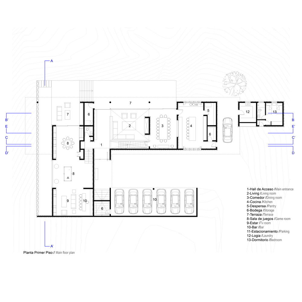
住宅平面图
智利Maiten住宅平面图
智利Maiten住宅剖面图
智利Maiten住宅立面图
客服
消息
收藏
下载
最近

































