查看完整案例


收藏

下载
America Through walls of residential
设计方:Mobile Office Architects
位置:美国
分类:居住建筑
内容:实景照片
图片:14张
摄影师:Tyson Ellis
这是由Mobile Office Architects设计的穿墙住宅。该项目位于圣伊内斯山山脉与太平洋相接的地方,可俯瞰圣巴巴拉城市风光以及海峡群岛美景。建筑师首先根据这里的陡坡地形进行了非常慎重的规划,并利用了两个现有的狭窄平台确定了建筑形式。设计通过这两个方向不同的平台创建了一个中央庭院生活空间,该空间有着开阔的视野面对着大海和岛屿。位于上坡顶的两个几何式空间组合在一起,确定了整个建筑在场地上的位置。在后面,是一堵开放式的多孔墙壁,它让建筑和周围环境之间的边界显得更加的模糊。
译者:筑龙网艾比
The Crossing Wall House, designed and built by Mobile Office Architects (MOA), is sited where the Santa Ynez Mountains meet the Pacific Ocean, overlooking the City of Santa Barbara and the Channel Islands.The parcel's steep grade necessitated careful site planning and guided the building form as it utilized two narrow existing terraces. The two differing orientations of the terraces are expressed by two geometric grids that come together in the homes central living space and open the home to views toward the ocean, islands, and lowlands. Two crossing retaining walls at the upslope side express the two project geometries and define the project’s position on the site. At the back, one wall takes on an open and porous techtonic blurring the boundary between the constructed environment and the wild chaparral landscape.
The primary living space acts as an indoor-outdoor pavilion; opening fully at the back to the entry courtyard and to a deck at the front with downslope views beyond. The raw corten steel and concrete exterior material palette was developed to create a building that ages with the landscape and responds to localized threats posed by wildfire and wood-eating termites.The project utilizes passive solar, thermal mass, passive ventilation, and solar hot water strategies to produce a fluid indoor-outdoor environment that operates at high levels of energy efficiency.
美国穿墙住宅外部实景图
美国穿墙住宅外部夜景实景图
美国穿墙住宅内部实景图
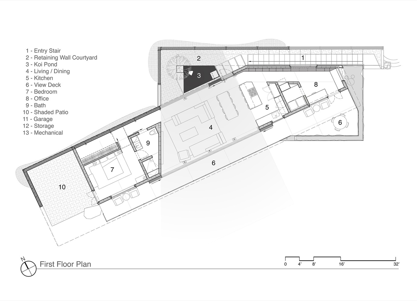
美国穿墙
住宅平面图
美国穿墙住宅平面图
美国穿墙住宅立面图
客服
消息
收藏
下载
最近
















