查看完整案例


收藏

下载
America Fort Worth Moretti Residence
设计方:Norman D. Ward architect
位置:美国
分类:居住建筑
内容:实景照片
图片:28张
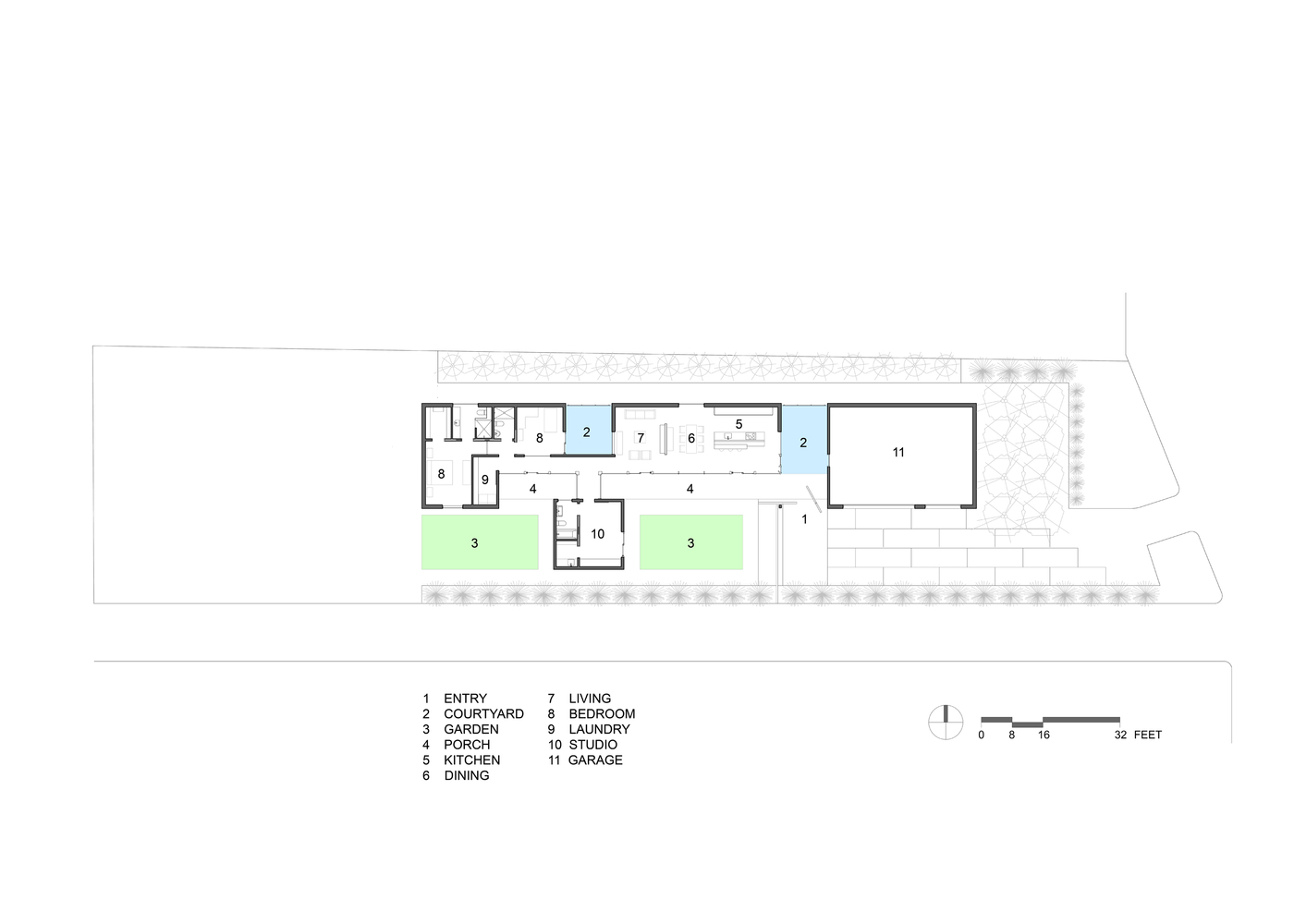
住宅坐落在一块未经开发的、六十英尺宽的场址上,扩展着的三个街区是由两个于二十世纪三十年代合并在了一起的住宅开发项目造成的。为了追赶潮流,住宅都被修建在了三个街区每一端的尽头上。莫雷蒂住宅的起始点就是对这些规模为60’x 300’的场址其中的一块进行的购买,这也是唯一一块本身没有原始住宅的场址。从街道上看,住宅表现的很坚固。一旦穿过绿色的入口大门,就可以看到开向天空的庭院和开向一个充满阳光的私人庭院的生活区域。
住宅主要的建筑体量被包上了一层CMU。两个庭院和走廊都是使用的着色了的网状金属。位于庭院中的工作室使用的是花旗松木包层。住宅主要部分和工作室之间由一个玻璃桥连接在一起。两个立方体花园被插入到了主要住宅的构成中。庭院被当成了“光井”来使用,这也为内部空间带来了充足的光线。庭院北部的墙壁由框架着白色透明面板的钢铁组成。阳光会投射在这些白色的玻璃纤维板上,夕阳也因此持续的在庭院中移动着。
译者:蝈蝈
An undeveloped sixty-foot wide parcel of land, extending three blocks is a result of two residential developments merging in the 1930’s. In time, houses were built on each end of the three blocks. Moretti’s house began with the purchase of one of these 60’ x 300’ lots, the only lot without an existing house.The street elevation gives an appearance of solid. Once past the green entry gate, the courtyards open to the sky and the living areas open to a private garden filled with sunlight.
The main volume of the house is clad in CMU. The two courtyards and porch are clad in paint-grip metal. The studio in the garden is clad with Douglas fir. A glass bridge connects the main house to the studio.Two cubic courtyards are inserted within the main house composition. The courtyards serve as “light wells” filling the interiors with ambient light. The north walls of the courtyards are composed of a steel frame with white translucent panels. The sunlight is cast on the white fiberglass panels and the sunlight is constantly in motion within these courtyards.
美国沃斯堡莫雷蒂住宅外部实景图
美国沃斯堡莫雷蒂住宅外部夜景实景图
美国沃斯堡莫雷蒂住宅内部实景图
美国沃斯堡莫雷蒂住宅局部实景图
美国沃斯堡莫雷蒂住宅草图
美国沃斯堡莫雷蒂
住宅平面图
美国沃斯堡莫雷蒂住宅立面图
美国沃斯堡莫雷蒂住宅剖面图
美国沃斯堡莫雷蒂住宅平面图
客服
消息
收藏
下载
最近






























