查看完整案例

收藏

下载
英文名称:Mexico 9X20 Residential
位置:墨西哥
设计公司:S-AR stacion-ARquitectura
摄影师:Ana Cecilia Garza Villarreal
9X20住宅的名字来源于修建它的场址的规模。住宅坐落在一个工业仓库区域,在过去的几年时间里,这个仓库区域被转换成了住宅开发区,这栋住宅就是一个小开发区的一部分,这个小的开发区中只有两条街道和70块可用的地块。除了那些坐落在边边角角或者是受到地形地貌限制的地块外,大部分的地块都是一样的规模。
这个区域的建筑环境被那些拥有相似建筑理念的住宅定义着,这些住宅的外墙上并没有很多表面上的更改(这是因为他们都是由相同的开发商建造出来的),剩下的一些住宅则显得更加的普通,它们老是受到商业建筑趋向的影响,因为建造他们的目的就是用来出售的,在最近的几年,这种类型的建筑体量遍及了这个城市。这栋住宅的场址是这个开发项目中的最后一块地块。住宅是为一个年轻的家庭设计的,家庭成员包括了夫妻俩和三个儿子。
Casa 9X20 takes it’s name from the dimensions of the plot where it is built. Located in an industrial warehouses area, which has been transforming into housing developments over the years, the house is part of a small development with barely a couple of streets and 70 available plots. Most of these plots have the same dimensions, except for those located in corners or defined by the topography of the site.
The built context of the area is defined mostly by houses that represent a similar housing concept, with few superficial changes on the facades (as a result of them being built by the same developer), and some others that target a more generic taste, always influenced by commercial architectural tendencies with saleable intentions in mind, which have been spreading all over the city in recent years.The plot of the house is one of the last ones to be intervened in this development. The house is for one young family composed by a couple with 3sons.
墨西哥9X20住宅外部实景图
墨西哥9X20住宅内部实景图
墨西哥9X20住宅模型图
墨西哥9X20住宅示意图
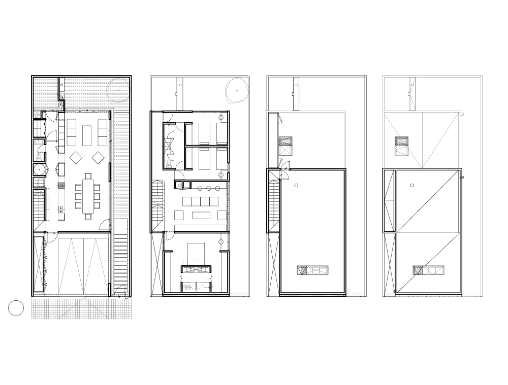
墨西哥9X20
住宅平面图
墨西哥9X20住宅剖面图
客服
消息
收藏
下载
最近



























