查看完整案例


收藏

下载
项目地址:昆明九夏云水
户型面积: 145平米
设计师:张新海
项目经理:殷建铭
客户经理:全秋艳
新的家、新的生活期盼,希望家精致有内涵,希望那一屉一格装满深情。
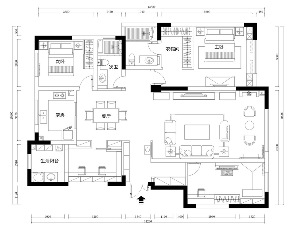
原始户型图分析▼
①入户门右侧的房间门使客厅的背景墙不完整;②阳台隔墙让客厅空间变小;③入户左侧房间开门位置使鞋柜无法完整。
平面布置图分析▼
①拆除阳台隔墙,扩大客厅和次卧室空间;②次卧室开门位置改变,将门往里推,退出的空间做成一个小的储物间;③书房开门位置改变,保留了完整的鞋柜空间;④面向餐厅一侧的墙体上做置物柜,书房门设计成隐形门。
客厅的感觉是高贵且古典的,现代和新古典风格的家具端庄不复杂,整个空间更多以线条来呈现层次感,混搭属性,后期软装上再有补充也不会显得突兀。▼
原本阳台的区域设计成了休闲咖啡区,后现代格调的家具和客厅风格也很相配。▼
餐厅沿用线条来增加空间层次感,家具的搭配也是时尚知性的后现代风格,左侧墙面上都是储物柜,中间是书房的隐形门,保留了空间的完整性,关上门是一幅五彩斑斓的画,热情张扬。▼
卧室里取消主灯,辅助光源也足够营造氛围,床头的灯是壁挂式的,为床头柜节约了空间, 蓝色窗帘对空间的色彩进行了补充,优雅温馨。▼
因为对储物功能要求较高,所以家里能做柜子的地方基本都做了柜子,但这并不影响整个空间的大气,这还得益于灯光的设计,顶面光源用软膜灯,营造天井光源的感觉,使走廊空间宽敞明亮,入户左侧的鞋柜采用分段设计,中间可供换鞋也是一幅画,与顶面灯光相互呼应。▼
客服
消息
收藏
下载
最近
















