查看完整案例


收藏

下载
Chile TH Housing
设计方:SUN arquitectos
位置:智利
分类:居住建筑
内容:实景照片
图片:22张
摄影师:Nico Saieh , Cortesía de SUN arquitectos
这是由SUN arquitectos设计的TH住宅,位于智利的圣地亚哥大都会地区。该住宅采用胶合板作主要建造材料,在5000平方米的场地上选取一片坡度平缓,没有树木遮盖的平地,创造一个356平方米的居住空间,建筑以平层展开,功能空间均分布在一层。房子分为两个主要的空间体块,分别为公共服务空间及卧室,由中间高耸的大厅及起居室串联起来。该建筑外墙厚20厘米,墙壁均采用木结构榫槽,两侧采用彩绘木板墙,结合一系列的高标准保温设计,防止热桥。
译者:筑龙网艾比
From the architect. TH house is located at a 5000 sqm plot in Chicureo, close to Santiago de Chile. The house is designed by requires of use of laminated wood as the main structural material.The plan is organized in 356 sqm, distributed on the ground floor, located so as to conquer a large portion of land in a place with minimum slope, without any presence of trees. The house is divided into two main volumes - service and rooms - connected by a higher central space where the lobby and the living room is located.
The house is built on a plot of agricultural origin with expansive clay, so the foundations are pulled back under a cantilevered slab of 1.5 meters to protect them. A system of pillars of laminated wood with a width of 56 x 13 cm is placed onto the reinforced concrete slab, arranged in opposite directions, braces and supports the large laminated wood beams of 1 meter high and 30 meters long. These beams are arranged in such a way to balance cantilevers over 5 meters at its ends.The walls are all wood structure with tongue and groove and painted wood siding by both side, with a series of high standard heat insulation, preventing thermal bridges. The exterior walls are built of 20 cm thickness.
智利TH住宅外部实景图
智利TH住宅外部夜景实景图
智利TH住宅内部实景图
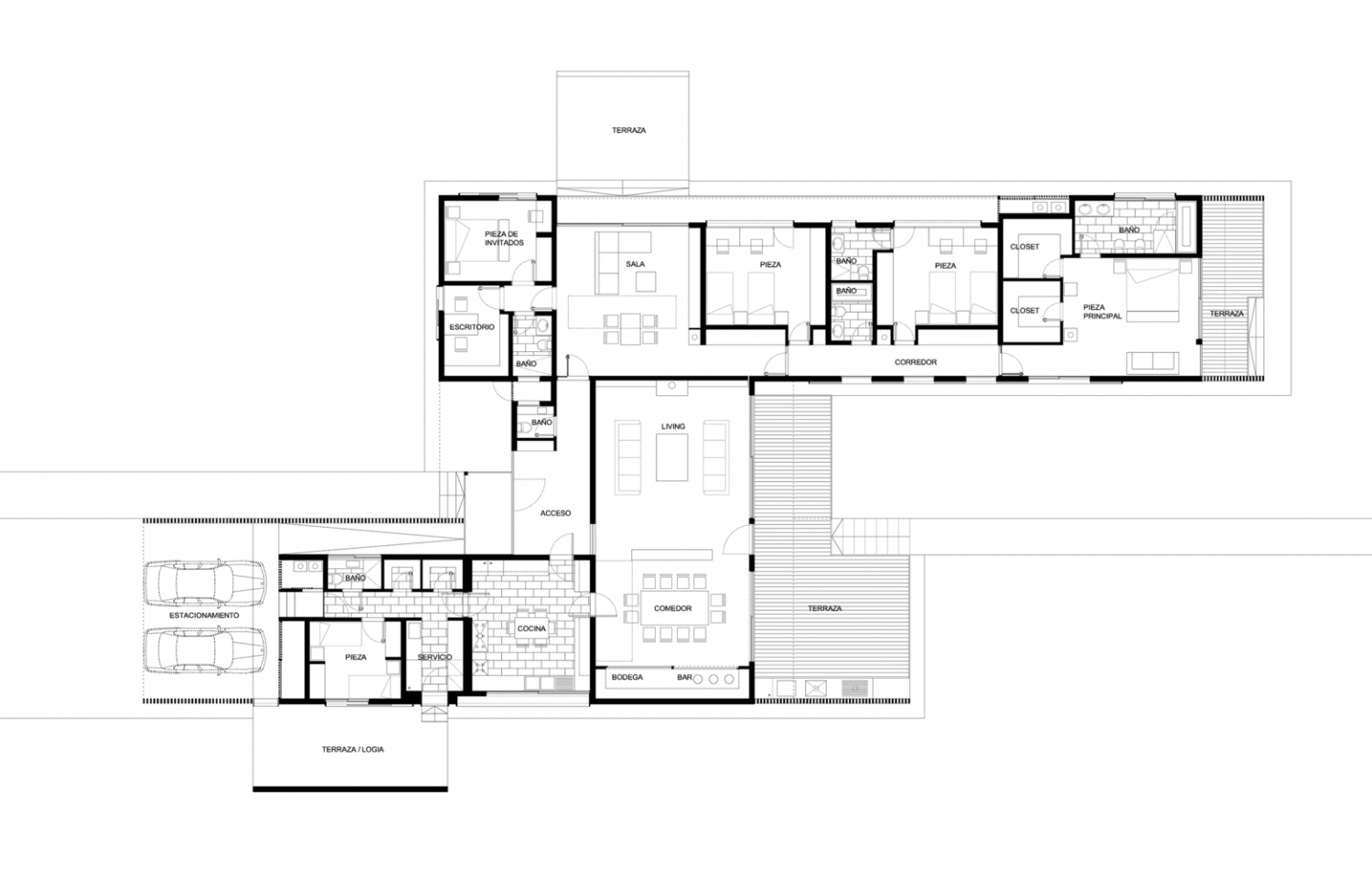
智利TH
住宅平面图
智利TH住宅平面图
智利TH住宅立面图
客服
消息
收藏
下载
最近
























