知末
知末
创作上传
VIP
收藏下载
登录 | 注册有礼
知末案例   /   家装空间   /   平层

素颜的秘密丨中国荆州

2017/07/07 15:43:04
查看完整案例
微信扫一扫
收藏
下载
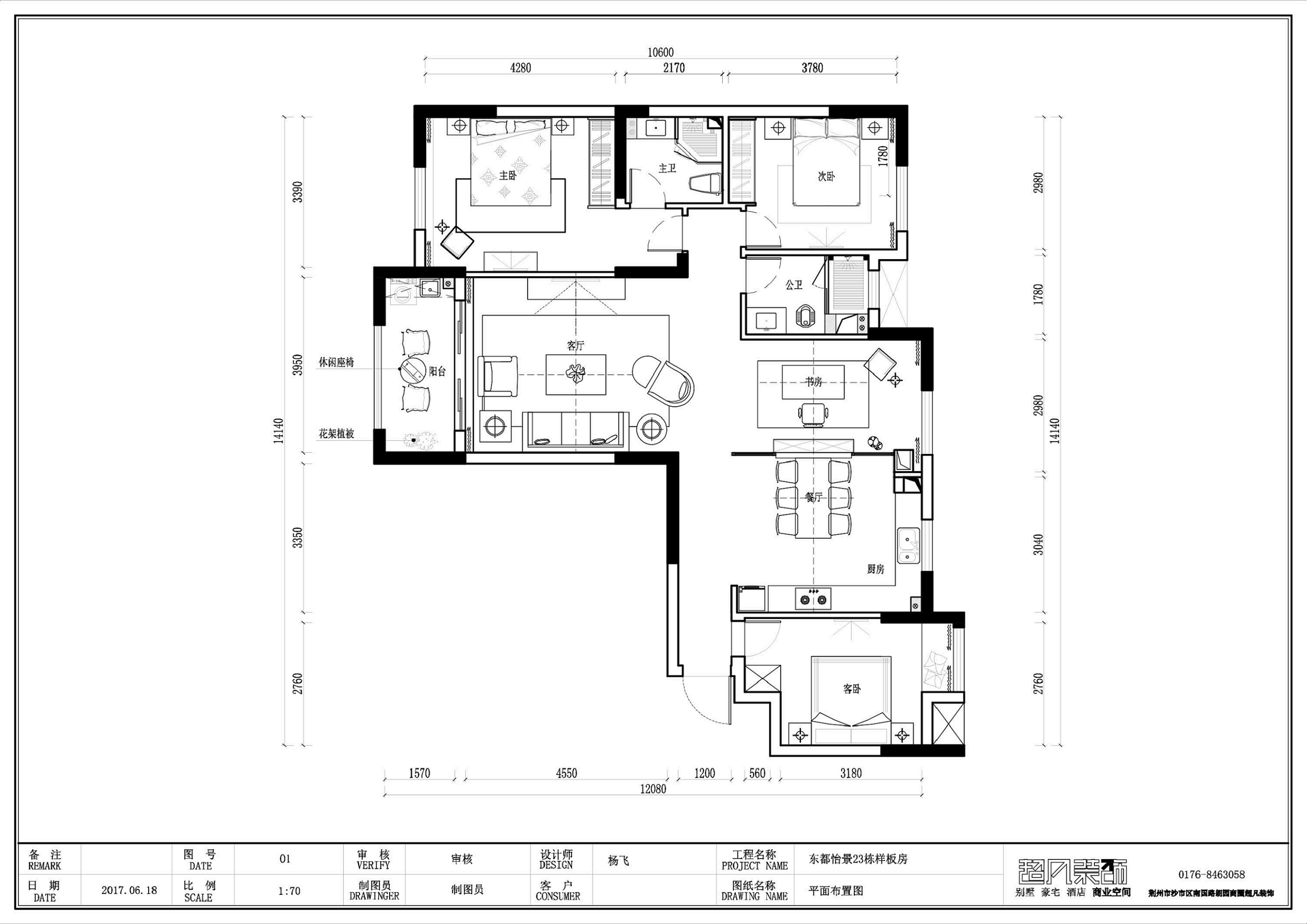
项目名称:素颜的秘密
客户名称:湖北欣帝置业有限公司
设计团队:湖北超凡装饰高端设计机构
项目地点:湖北·荆州
项目面积:140平
【设计说明】
本案设计手法简约,将浪漫的复古气息与美式风格完美结合,深入生活、反复思考、描绘出最丰富浪漫的空间效果。客厅墙面选择浅咖色乳胶漆,搭配米色壁炉电视背景墙,选用现代美式家具,将空间层次搭配的条理有序,沙发背景选择石膏线造型墙,将空间层次分离出来,简单而不失品质。
素颜的秘密丨中国荆州-7
素颜的秘密丨中国荆州-8
素颜的秘密丨中国荆州-9
素颜的秘密丨中国荆州-10
素颜的秘密丨中国荆州-11
素颜的秘密丨中国荆州-12
素颜的秘密丨中国荆州-13
素颜的秘密丨中国荆州-14
素颜的秘密丨中国荆州-15
素颜的秘密丨中国荆州-16
素颜的秘密丨中国荆州-17
素颜的秘密丨中国荆州-18
素颜的秘密丨中国荆州-19
素颜的秘密丨中国荆州-20
素颜的秘密丨中国荆州-21
素颜的秘密丨中国荆州-22
南京喵熊网络科技有限公司 苏ICP备18050492号-4知末 © 2018—2020 . All photos and trademark graphics are copyrighted by their owners.增值电信业务经营许可证(ICP)苏B2-20201444苏公网安备 32011302321234号
客服
消息
收藏
下载
最近