查看完整案例

收藏

下载
Argentina House 131 Residential
设计方:Díaz Varela Sartor
位置:阿根廷
分类:居住建筑
内容:实景照片
图片:24张
摄影师:Javier Agustín Rojas
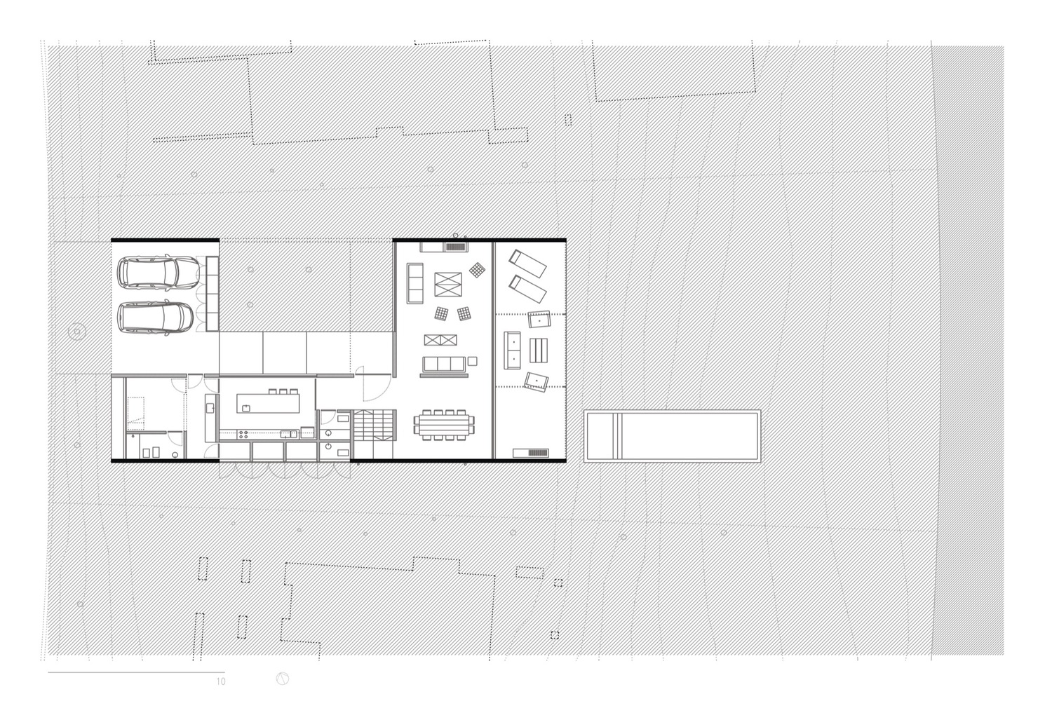
这是由Díaz Varela Sartor设计的House 131住宅。该项目位于大布宜诺斯艾利斯区北部的私人小区里,场地为25 x 50米的用地,面向湖泊。建筑正立面面向西北面的街道,背面则面向东南面的湖泊。建筑的东北面和西南面都是强制性退线设计。功能方面,该住宅平时主要为客户二人使用,到了周末则需要容纳14人。该住宅为矩形的混凝土结构,设有中庭。该住宅首层主要由四道混凝土墙组成,二层则设有两条纵梁以及纵梁上方的四条横梁。
译者:筑龙网艾比
The site, a plot of 25 x 50 meters facing a lake, is located in a private neighborhood in the north area of Greater Buenos Aires. Towards the NW lies the street and the façade and towards the SE the lake and the rear façade. Both the NE and the SW are for mandatory setbacks.The program consists in a house for two people during the week and fourteen during the weekends.The house is a rectangular concrete prism with a patio.
It is basically composed by four concrete walls in the ground floor, two longitudinal beams in the first floor, and over them four transversal beams, from which one of the slabs hangs.Architecture and structure are the same thing.Appearance and essence; context and parti; orientation and patio; vegetation and matter.The house closes itself towards the street and the sides looking for privacy, and opens up towards the lake, taking advantage of the antropic natural-artificial landscape. At the same time, the house opens itself with its patio towards the best orientation, searching for sunlight and cross ventilation.The patio, its vegetation, humidity and aroma, surrounded by the concrete and its forcefulness, configure a space inside-outside that tries to enrich and contrast the repeated form of suburban habitat of the “country-house”. At the same time, it doesn’t cease to –finally– be that.
阿根廷House 131住宅外部实景图
阿根廷House 131住宅内部实景图
阿根廷House 131
住宅平面图
阿根廷House 131住宅平面图
阿根廷House 131住宅示意图
客服
消息
收藏
下载
最近


























