查看完整案例


收藏

下载
Thailand Wind House
设计方:OPENSPACE Design
位置:泰国
分类:居住建筑
内容:实景照片
图片:30张
这是由OPENSPACE Design设计的风之屋。该项目以“度假空间”为理念,是客户所钟爱的风格,同时考虑到场地条件。该项目位于场地边缘,因此获取的自然绿化环境视野更佳,氛围更宁静。该住宅从设计开始就思考“如何与自然共存、舒适生活?”,因此,建筑朝向与住宅空间力求让风流动、让自然光线渗透,而不需太多的热量。同时,用户可以看到户外美丽的花园。该住宅为C型平面布局,在右侧提供了大庭院,建筑三侧的功能区都与绿色空间十分亲近,共享这个令人愉悦的庭院空间。
译者:筑龙网艾比
“Wind House” was created as “Resort Space” which was the owner’s preference style regarding the site conditions. As it was located on the edge of the housing estate project’s boundary, it gained the view of big natural green area beside and certainly, the atmosphere of tranquility.The house planning started from the idea - “How to live comfortably with nature?”.Therefore,the building orientation and the space of the house should allow the wind to flow through and allow natural light to shine in without too much heat. At the same time, the users inside could be able to see nice garden view outside as well.
The house was designed in C-Shape providing big courtyard on the right side, close to big green area beside, where every function from 3 sides could really share this pleasant courtyard together. The building itself could provide privacy to the users as neighbors would not be able to look into the center of the house. The technique to draw the wind flowing through the house perfectly was to provide some big voids of the building mass aligned to the courtyard which were also used as circulation core, stair and relaxation corner. Moreover, even some details such as doors, fences, sunlight screen patterns, etc. were meticulously designed to utilize the wind more efficiently for ventilation purpose.
One of the most significant design strategies was to create “Seamless Boundary” between building and nature, indoor and outdoor. All of the common area as well as circulation were treated as “Semi-Outdoor” space, under the roof but without walls, connecting to the courtyard harmoniously. In addition, some enclosed functions were still optional to get fresh air sometimes by sliding full-height partitions to the sides. These would enable the house space to look wider, more airy and definitely, to welcome the delightful wind to be “Wind House”.
泰国风之屋外部实景图
泰国风之屋局部实景图
泰国风之屋外部夜景实景图
泰国风之屋外部局部实景图
泰国风之屋内部实景图
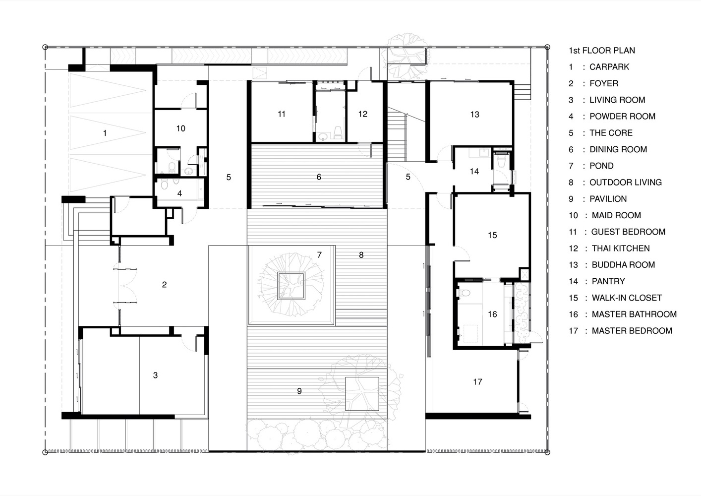
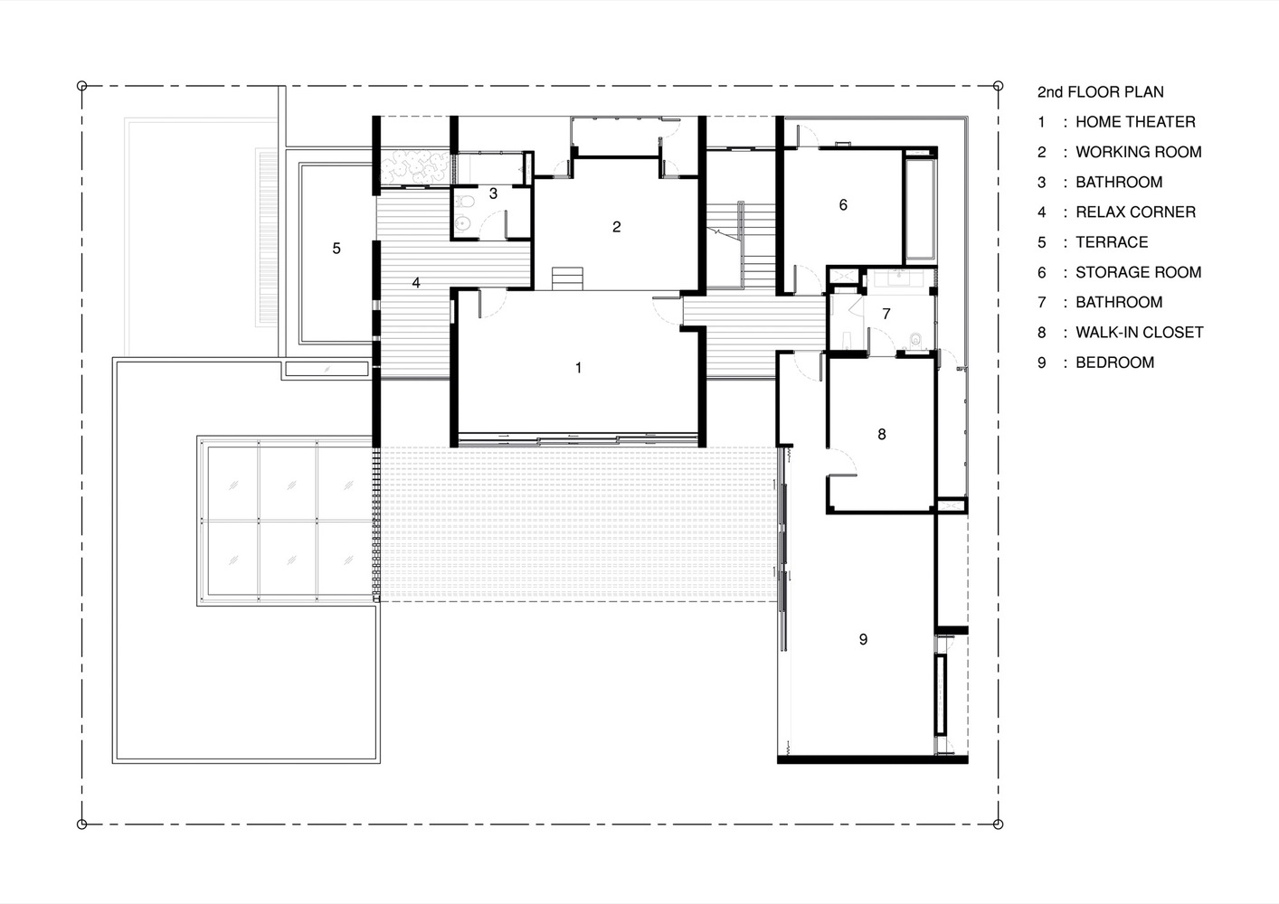
泰国风之屋平面图
泰国风之屋立面图
泰国风之屋剖面图
客服
消息
收藏
下载
最近
































