查看完整案例


收藏

下载
位置:加拿大
设计公司:BONE Structure®
摄影师:UlysseLemerise / OSA
这是由BONE Structure®设计的圣劳伦斯12-249住宅,位于加拿大魁北克的温特沃斯。魁北克以其如画的景观和自然环境而闻名于世,沿着地平线可看见北美洲的人们是如何利用新技术建造他们的家园。BONE Structure®是一家致力于高节能钢结构住宅的设计与建造的公司,该项目位于温特沃斯镇中心,距蒙特利尔西北方向两小时车程,建筑面积为3000平方英尺,主要特色是主楼层的开放式理念以及地下室出入的便捷性。
Quebec is known worldwide for its picturesque landscapes and natural beauty – and along the horizon a new technology is disrupting how North Americans are building their homes. At the forefront of high-performance custom homes lies BONE Structure®, a company devoted to designing and building energy efficient steel structure homes. Situated two hours northwest of Montreal, in the township of Wentworth, this 3,000 sq. ft. home is characterized by its open concept main floor and easy access walk-out basement.
The wrap-around balcony encourages the occupants to step outside and enjoy the natural view of the Laurentians. Indoors, they continue to breathe easy in the completely open-concept main floor. The sense of peace comes from a combination of the open floor plan and the 15’ ceilings above the living and lounge space. The floor to ceiling black aluminum windows allow light to completely flood the social spaces of the main floor and highlight the elegantly simple furnishings of the home. The main floor boasts primarily white furnishings, accented with natural wooden and sandy tones that complement the natural forest outside. Most notably, the kitchen stands out on its own, with its quartz Caesarstone countertop and black walnut natural tone cabinets. The polished concrete flooring that supports this floor is radiant and emits heat as necessary for comfort in the chilly Canadian winter months. The master bedroom has arguably one of the best views in the house and a personal walk-out balcony that allows occupants to completely immerse themselves in it.
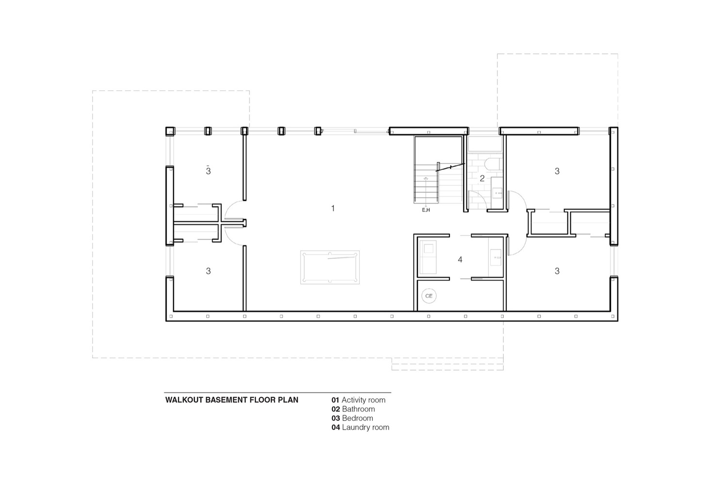
Descending into the walkout basement, guests may find themselves seated in the supplementary lounge space or in one of the two additional bedrooms available in the home. The walkout to the outdoors is an excellent complement to the balcony of the main floor. Guests can now venture outside, unrestricted and as far into the woods as desired.This home would not have been complete without the exterior’s classic finish of wood siding from Maibec, outlined with black metal that gives this home its modern feel. BONE Structure challenges the traditional construction process with its innovative patented steel construction system, allowing a home of this size to be built and ready to move in within a few months. All BONE Structure homes are pre-engineered to the highest standards with incomparable precision and flexibility; while making it simple and fun for their clients.
加拿大圣劳伦斯12-249住宅外部实景图
加拿大圣劳伦斯12-249住宅内部实景图
加拿大圣劳伦斯12-249住宅模型图
加拿大圣劳伦斯12-249
住宅平面图
加拿大圣劳伦斯12-249住宅平面图
加拿大圣劳伦斯12-249住宅示意图
加拿大圣劳伦斯12-249住宅立面图
客服
消息
收藏
下载
最近

















