查看完整案例


收藏

下载
英文名称:Japan Under the original house
位置:日本
设计公司:KOIZUMISEKKEI
摄影师:Toshiyuki Yano
建筑师的话:在项目所包含的区域中有安倍川的河床,北侧有成排的樱花树,远处还可以看见庄严的富士山的全景。从另一方面来说,南侧毗邻着一栋三层楼高的住宅,所以这栋住宅并不能获得很多光线。在这样的情况下,我们制作了一堵像门一样的很宽的开放式墙壁,用它来框架出北边美丽的风景,并同时通过它来与外部连接。在二楼的起居室,透过三楼天窗的阳光会照亮支撑轻量悬臂式楼梯的墙壁。
照射进来的阳光会从大堵的墙壁上反射开来,并因此进入起居室中,即使因为毗邻住宅的原因导致这栋住宅的南侧并没有窗户,柔和的阳光依然会照亮起居室。业主名字的日本特色包含了月亮和太阳之间的对比元素。因此,我们想将这种对比元素融入住宅的建筑风格当中。因此,住宅的内部拥有了这个漂亮的、平滑的、白色的墙壁,与外部粗糙的、外露的RC墙壁形成了鲜明的对比。
From the architect. The project area had the Abe-kawa river bed and row of cherry blossom trees on the north side with the majestic Mt. Fuji in full view beyond that.On the other hand, there was a three-story house adjacent to the south side, so it couldn't expect to get much sunlight. Under such conditions, we made a wide open wall like a door, and designed it to act as a frame for that beautiful scenery to the north and had connection with the outside.In the living room on the second floor, sunlight from a skylight on the third floor shines on the wall that holds lightweight cantilevered stairs.
This sunlight reflects off the big wall and is designed to allow for the entire living room to be brightened with soft sunlight even without windows on the south side where the adjacent house is located. The Japanese characters of the owner's name have the contrasting elements of the moon and the sun. Therefore, we wanted to include contrasting elements into this architecture as well. Thus, we have this beautiful, smooth, white wall on the inside against the rough, exposed, RC wall on the outside
日本下川原住宅外部实景图
日本下川原住宅内部实景图
日本下川原住宅剖面图
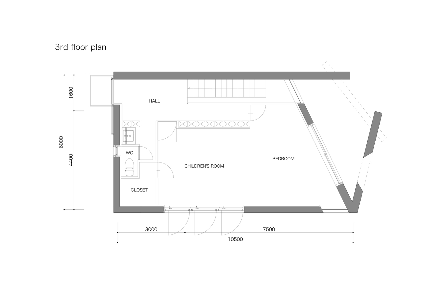
日本下川原
住宅平面图
日本下川原住宅平面图
客服
消息
收藏
下载
最近






















