查看完整案例


收藏

下载
英文名称:America Golden Hall Residence
位置:美国
设计公司:Stephen Phillips Architects
摄影师:Kevin Dole
Stephen Phillips Architects (SPARCHS)为一栋修建于二十世纪六十年代的、位于马里布峡谷的住宅进行了一次整容手术,从而创造出了一颗闪闪发光的、现代的宝石。住宅距离声名狼藉的Piuma Canyon的山火实在太近了,Ted Gold这个电视制作人和他的平面设计师妻子决定挑战去购买一栋周围全部都是树木的、单坡屋顶的现代住宅,并将它转换成某种独创而又美丽的事物。
项目的预算被降到了最低的程度,夫妻俩聘请了加利福尼亚当地的建筑师Phillips去创造一系列的外部设计策略,以期更新、复原和加强他们购买的那栋恼人的、没有任何生气的住宅,从而让它变得优雅又时尚。因为原始的住宅没有位于正面的入口(原始住宅的入口在脱离侧院车道的车库旁),Phillips最大的要求是创造一个两层楼的、经过了环绕式处理的阳台和甲板,它们会引导来客直接通向住宅的前部。
Giving a facelift to an otherwise aged 1960s Malibu Canyon track home, Stephen Phillips Architects (SPARCHS) creates a sparkling contemporary gem. Located all too near the notorious Piuma Canyon Brush fires, executive television producer Ted Gold and his wife Cara Hall, a graphic designer, took on the challenge to purchase an all wood-sided shed-roof modern home and transform it into something original and beautiful.
Working with a minimal budget one step at a time, they hired local California architect Phillips to make a series of strategic surgical design procedures to update, rejuvenate, and fortify their painfully drab house with elegance and style. As the original home had no front entry (it was originally accessed alongside the garage off the side-yard driveway) Phillips most notably created a two-story wrap-around balcony and deck that directed arriving guests to the front of the house.
美国金色大厅住宅外部实景图
美国金色大厅住宅外部夜景实景图
美国金色大厅住宅内部实景图
美国金色大厅住宅效果图
美国金色大厅
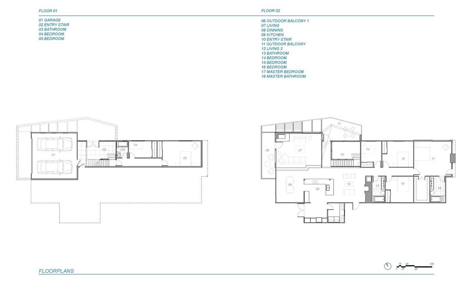
住宅平面图
美国金色大厅住宅示意图
美国金色大厅住宅平面图
美国金色大厅住宅剖面图
美国金色大厅住宅立面图
客服
消息
收藏
下载
最近




























