查看完整案例


收藏

下载
英文名称:Indonesia Sunter District home
位置:印度尼西亚
设计公司:Atelier Cosmas Gozali
摄影师:Fernando Gomulya
这栋坐落在Sunter区域的住宅采用了度假居的概念,即在使用现代几何形状的同时充分考虑住宅所在的位置。住宅场址的面积有限,建筑师尝试着为住宅的设计带入了一个庭院的理念,庭院将会作为建筑体量的中心部分而存在,所以庭院变成了住宅光线和自然的空气流通的一个来源。住宅中的每一间房都朝向了庭院,住宅因此也变得更加的健康和节能。
除此之外,在住宅的门厅区域中同样也可以感觉到度假居的概念,这个门厅区域就是我们“进入”住宅的地方,但是因为庭院/开放空间的存在,门厅看起来仍然像是户外空间,庭院/开放空间的存在给人一种室内空间和室外空间之间是没有界限的印象。建筑师们在这栋住宅中使用了一个斜坡的屋顶,并使用了当地的材料,比如裸露的加拉横石头,使用这些石头的目的是将印度尼西亚当地的特色带入这栋住宅之中。
The Residence that located in Sunter area take a concept of resort that combined with modern geometric shapes but still regarding aspects of the locality.With a limited size of the site, the Architect tried to bring a Courtyard concept into the house as a central mass of the building, so the courtyard become a source of light and natural air circulation. Every room in this house have an orientation to the courtyard, so the house become more healthy and energy saving.
Furthermore the concept resort is also felt in the foyer area where we've been "entered" into the house, but still seem to be outdoors because of the courtyard / open space that creating the impression of there is no boundary between outer space and the inside space. The Architects also applied a sloping roof in this house and used a local material likes exposed karawang stone that intended to bring a locality of Indonesia in this house.
印度尼西亚Sunter区住宅外部实景图
印度尼西亚Sunter区住宅局部实景图
印度尼西亚Sunter区住宅外部夜景实景图
印度尼西亚Sunter区住宅内部实景图
印度尼西亚Sunter区
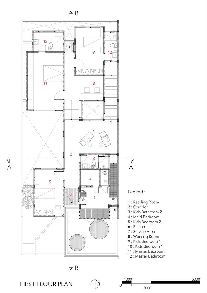
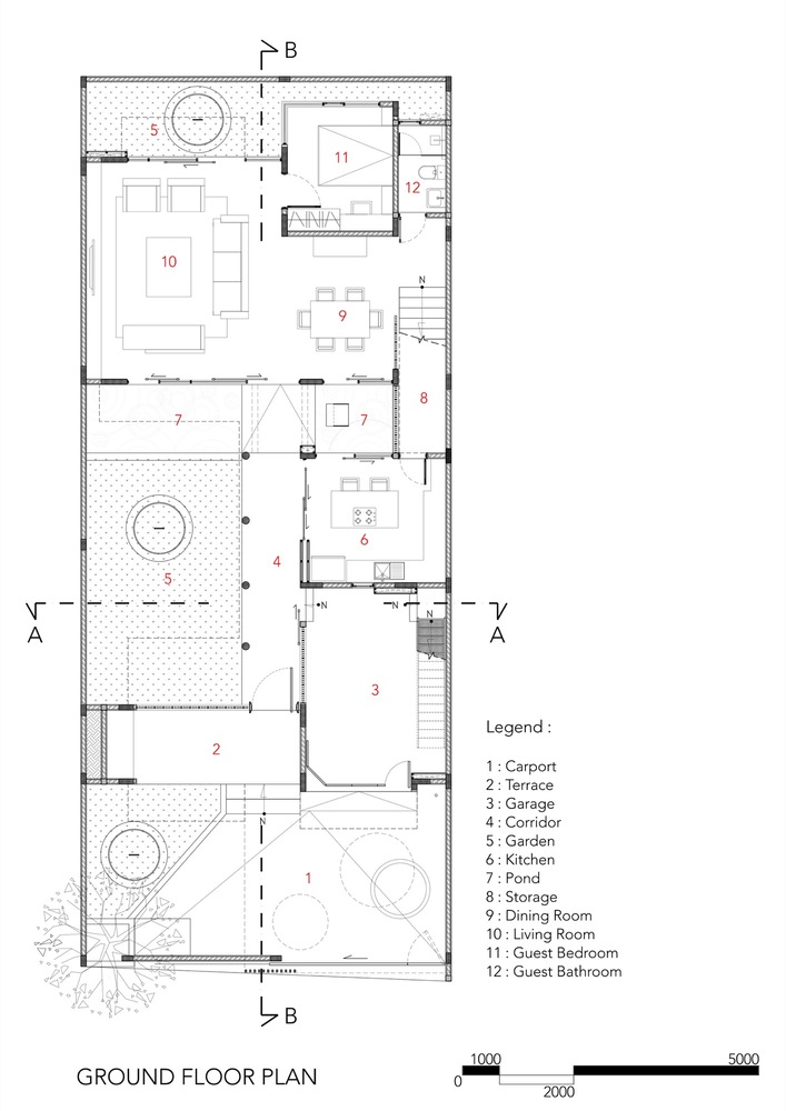
住宅平面图
印度尼西亚Sunter区住宅平面图
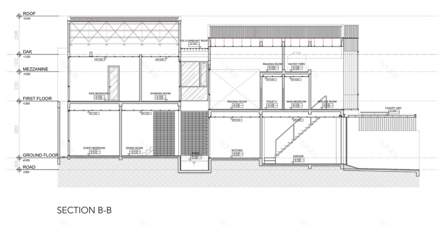
印度尼西亚Sunter区住宅剖面图
客服
消息
收藏
下载
最近



















