查看完整案例


收藏

下载
英文名称:New Zealand Hekerua Bay Bay House
位置:新西兰
设计公司:Archimedia
摄影师:Patrick Reynolds
项目的场址是一个位于多岩石小海湾上的高高的海岬,它坐落在奥克兰,豪拉基湾的一个双重海湾的西部的入口处。住宅的场址是一个东北向的斜坡,朝向对面的一个暗礁和砂质海滩。住宅是我们和客户一起合作完成的,客户是一位工程师,他对于细节一直保持着一丝不苟的态度,他在这个岛屿上有一座葡萄酒酿酒厂。他对材料的敏感性来源于他在塞浦路斯的遗产和他在地中海文化的熏陶下建立起来的感觉经验。
客户的要求使用单线线路的指示来提高居住者们的体验。作为一个结构工程师,混凝土对他有着很大的吸引力,而在住宅的结构中,现浇混凝土成为了核心的材料。在客户的孩提时代就记住了石灰华这种东西,他在海湾和附近岛屿悬崖上黏土色的砂岩中寻找着这种材料,以便于让住宅能够与海滩的颜色相搭配。住宅弯曲的混凝土形式与点缀着豪拉基湾边缘的、二十世纪早期的炮位形成了共鸣。
译者:蝈蝈
The site is an elevated promontory above a rocky cove at the western entrance to a double bay on Waiheke Island in Auckland’s Hauraki Gulf. The site slopes north-east toward a reef and sandy beaches opposite.The house is a collaboration with the Client, an engineer with meticulous attention to detail, who owns a winery on the island. His sensibility for materials is directed by his Cypriot heritage and the sensory experiences founded in his Mediterranean culture.
His brief was a single line instruction to enhance the experience of the occupants. As a structural engineer he has an affinity with concrete and in situ concrete was defined as the core material for the structure. The Client sourced travertine, remembered from his childhood that matched the colour of the beaches across the bay and the clay-coloured sandstone of nearby island cliffs. The curved concrete forms resonate with the early 20th century gun emplacements that dot the margins of the Hauraki Gulf.
新西兰Hekerua Bay海湾住宅外部实景图
新西兰Hekerua Bay海湾住宅内部实景图
新西兰Hekerua Bay海湾
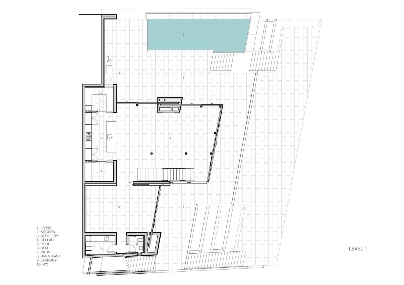
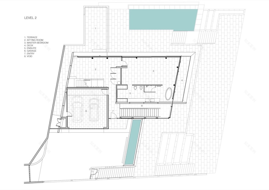
住宅平面图
新西兰Hekerua Bay海湾住宅平面图
新西兰Hekerua Bay海湾住宅立面图
新西兰Hekerua Bay海湾住宅剖面图
客服
消息
收藏
下载
最近


















